449,000,000 Ft
1,255,000 €
- 380m²
Commercial property for sale in Budapest's 14th district – Szugló Street
We are offering for sale a property with excellent features, suitable for industrial and office use, located in the Alsórákos district of Budapest's 14th district, on Szugló Street.
Location, accessibility
The property is accessible via a paved road with excellent transport links:
-bus, tram, trolleybus nearby
-Bosnyák Square: 2 minutes on foot
-Zenit Corso: 5 minutes on foot
The neighborhood is mixed-use: office, industrial, commercial, and residential properties can all be found here, with several newly built condominiums in the immediate vicinity.
Szugló Street has moderate vehicle traffic and low pedestrian traffic, making it ideal for office or industrial activities.
Technical condition, renovations
The building is continuously maintained and in average to good technical condition:
-roof completely replaced approx. 5 years ago (shingle roof)
-basement and ground floor renovated
-washable wall paints
-partially new doors and windows
-cast resin flooring
-entire electrical network renovated
-all rooms air-conditioned with split air conditioning
-security system installed
Key data:
-Power: 3 x 40Ah
-Estimated year of construction: 1970s
-Plot: centrally located, all utilities
-Buildability: 30%
-Permitted building height: 10.5 m
-Minimum plot size: 800 m²
-Total net floor area: 397 m²
-Plot: flat, fenced, open to the street
-Utilities: water, gas, electricity, sewer
-Courtyard: parking for 13 cars
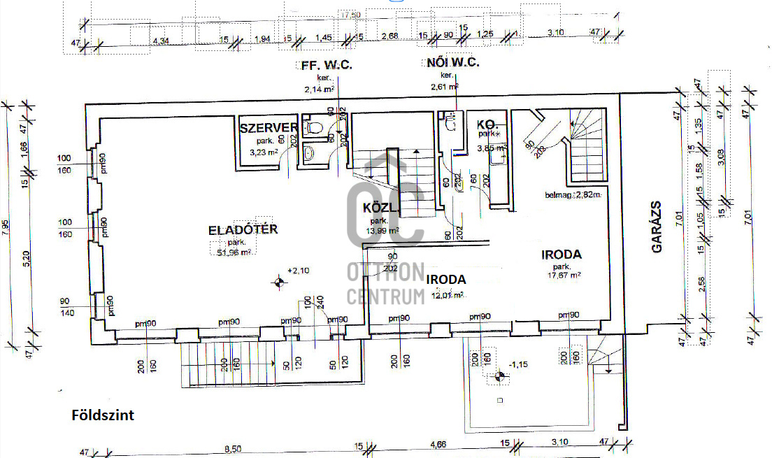
Function and layout
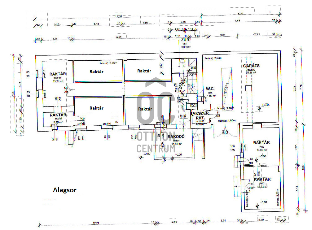
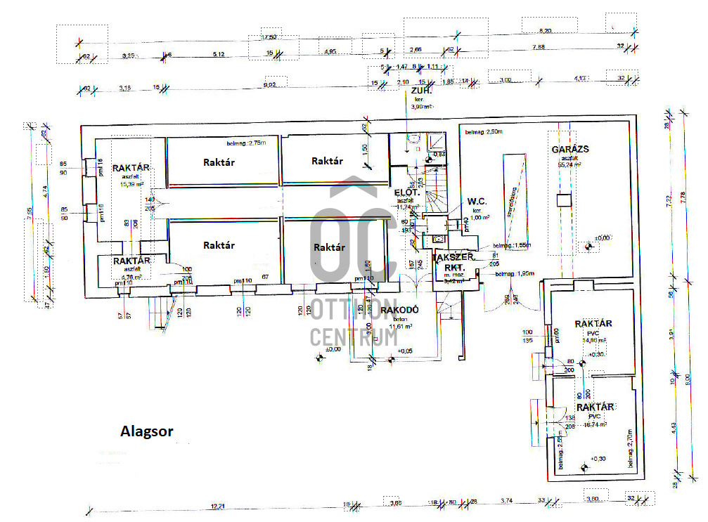
Basement:
-several separate rooms
-washroom
-full comfort, air conditioning
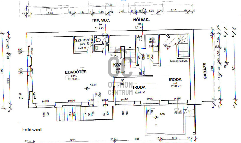
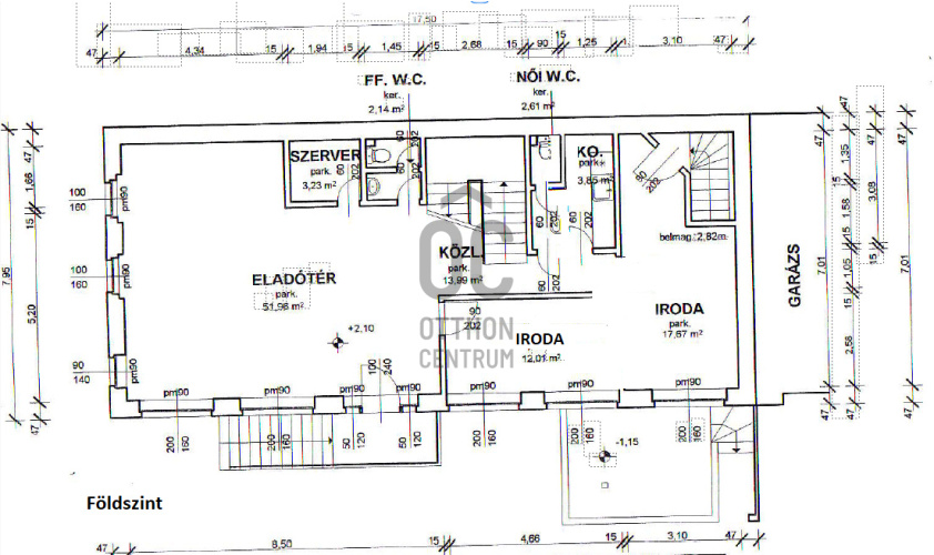
Ground floor:
-2 large rooms
-separate storage rooms
-washroom
First floor:
-2 offices
-dining room
-kitchen
-2 utility rooms
-gallery (suitable for storage)
Annex:
-large storage room
-2 separate rooms
-separate bathroom
-(currently used as a veterinary ultrasound clinic)
Utilization
The property currently functions as a veterinary laboratory, but is also ideal for:
-office center
-laboratory activities
-commercial or industrial purposes
-development site
If you are interested in the property, please call me any day of the week!
Location, accessibility
The property is accessible via a paved road with excellent transport links:
-bus, tram, trolleybus nearby
-Bosnyák Square: 2 minutes on foot
-Zenit Corso: 5 minutes on foot
The neighborhood is mixed-use: office, industrial, commercial, and residential properties can all be found here, with several newly built condominiums in the immediate vicinity.
Szugló Street has moderate vehicle traffic and low pedestrian traffic, making it ideal for office or industrial activities.
Technical condition, renovations
The building is continuously maintained and in average to good technical condition:
-roof completely replaced approx. 5 years ago (shingle roof)
-basement and ground floor renovated
-washable wall paints
-partially new doors and windows
-cast resin flooring
-entire electrical network renovated
-all rooms air-conditioned with split air conditioning
-security system installed
Key data:
-Power: 3 x 40Ah
-Estimated year of construction: 1970s
-Plot: centrally located, all utilities
-Buildability: 30%
-Permitted building height: 10.5 m
-Minimum plot size: 800 m²
-Total net floor area: 397 m²
-Plot: flat, fenced, open to the street
-Utilities: water, gas, electricity, sewer
-Courtyard: parking for 13 cars
Function and layout
Basement:
-several separate rooms
-washroom
-full comfort, air conditioning
Ground floor:
-2 large rooms
-separate storage rooms
-washroom
First floor:
-2 offices
-dining room
-kitchen
-2 utility rooms
-gallery (suitable for storage)
Annex:
-large storage room
-2 separate rooms
-separate bathroom
-(currently used as a veterinary ultrasound clinic)
Utilization
The property currently functions as a veterinary laboratory, but is also ideal for:
-office center
-laboratory activities
-commercial or industrial purposes
-development site
If you are interested in the property, please call me any day of the week!
Registration Number
UZ019344
Property Details
Sales
for sale
Legal Status
used
Character
commercial
Type of Business Property
entire building
Construction Method
brick
Net Size
380 m²
Plot Size
633 m²
Size of Terrace / Balcony
20 m²
Above-Ground Net Size
400 m²
Heating
other
Ceiling Height
286 cm
Number of Levels Within the Property
3
View
city view
Condition
Average
Condition of Facade
Average
Water
Available
Electricity
Available
Sewer
Available
Visibility
Easily visible from busy main road
Accessibility
Entrance from high foot traffic street
Utilization
owner-occupied
Pados - Burján Renáta Zita
Credit Expert