1 049 812 500 Ft
2 750 000 €
- 2 020m²
Fektessen be a jövőbe: Fejlesztési épület a Corvin negyed szívében!
Budapest VIII kerület csodálatosan megújult Corvin negyed városrészében, pár lépés távolságra a Corvin Plázától eladó egy teljes mértékben megépült épület váz.
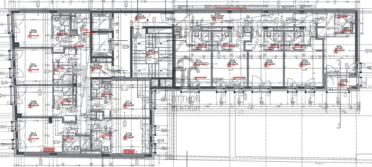
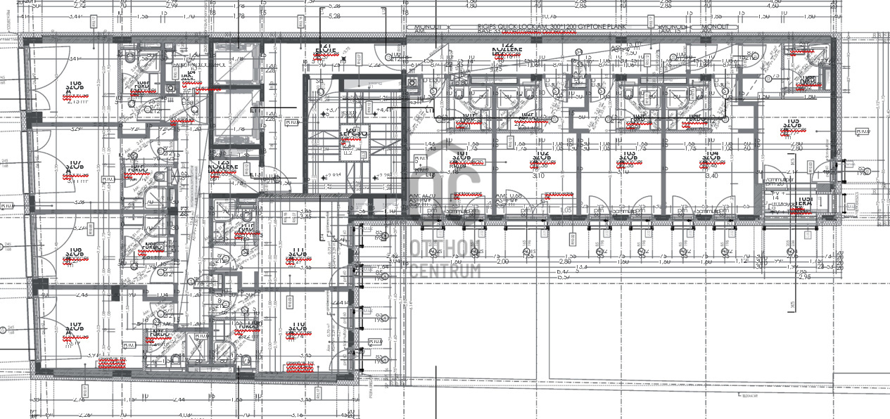
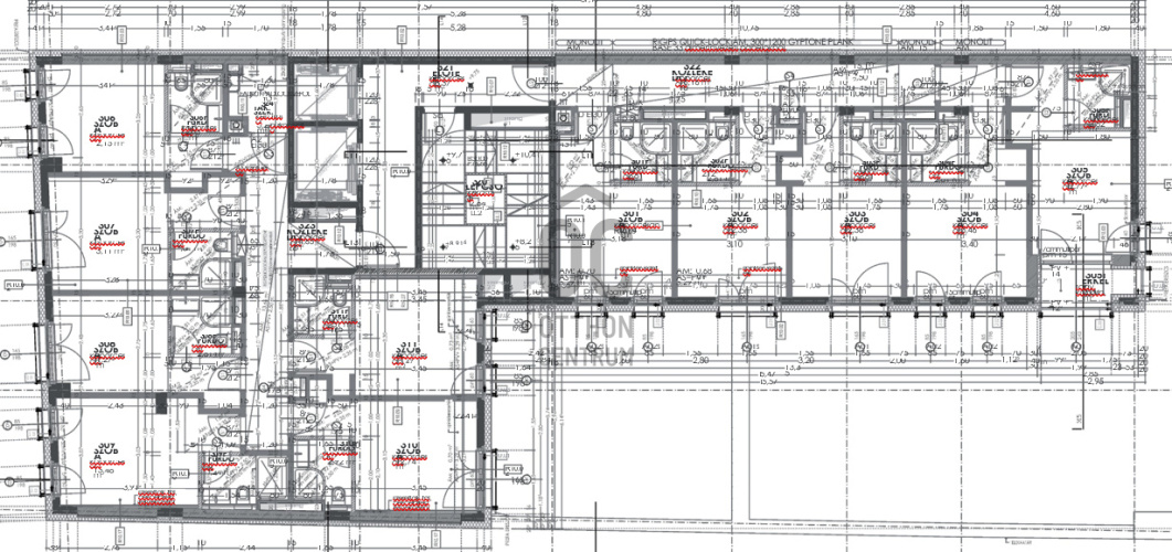
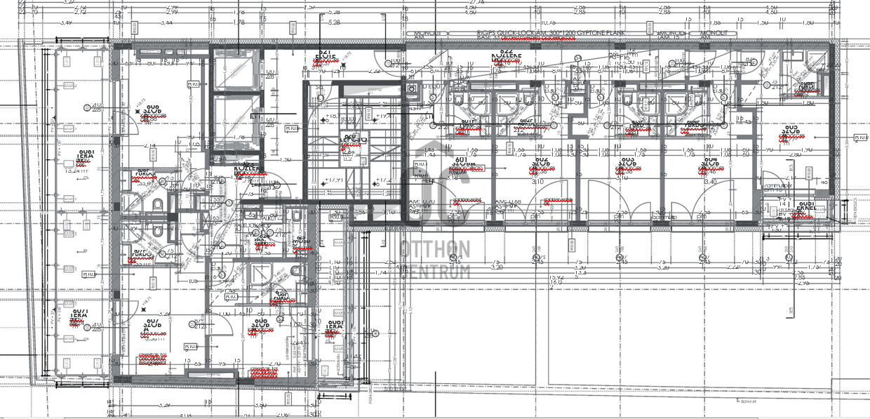
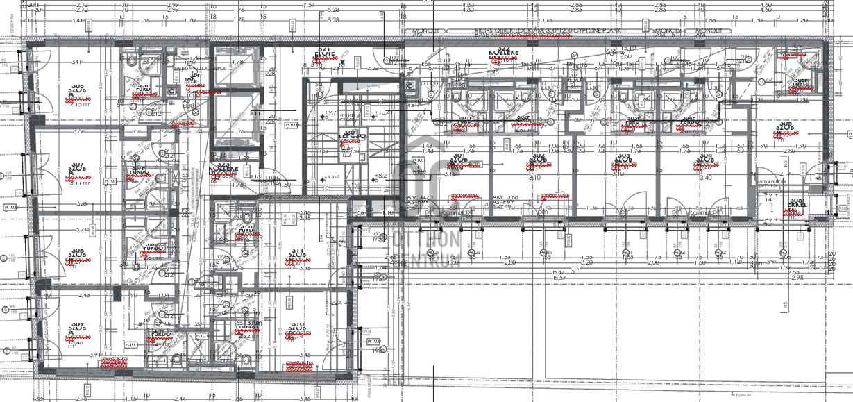
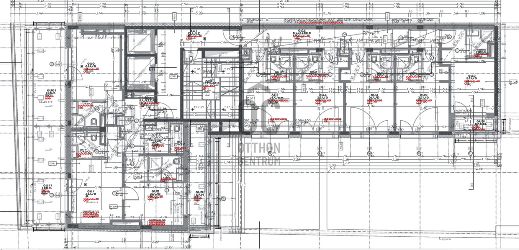
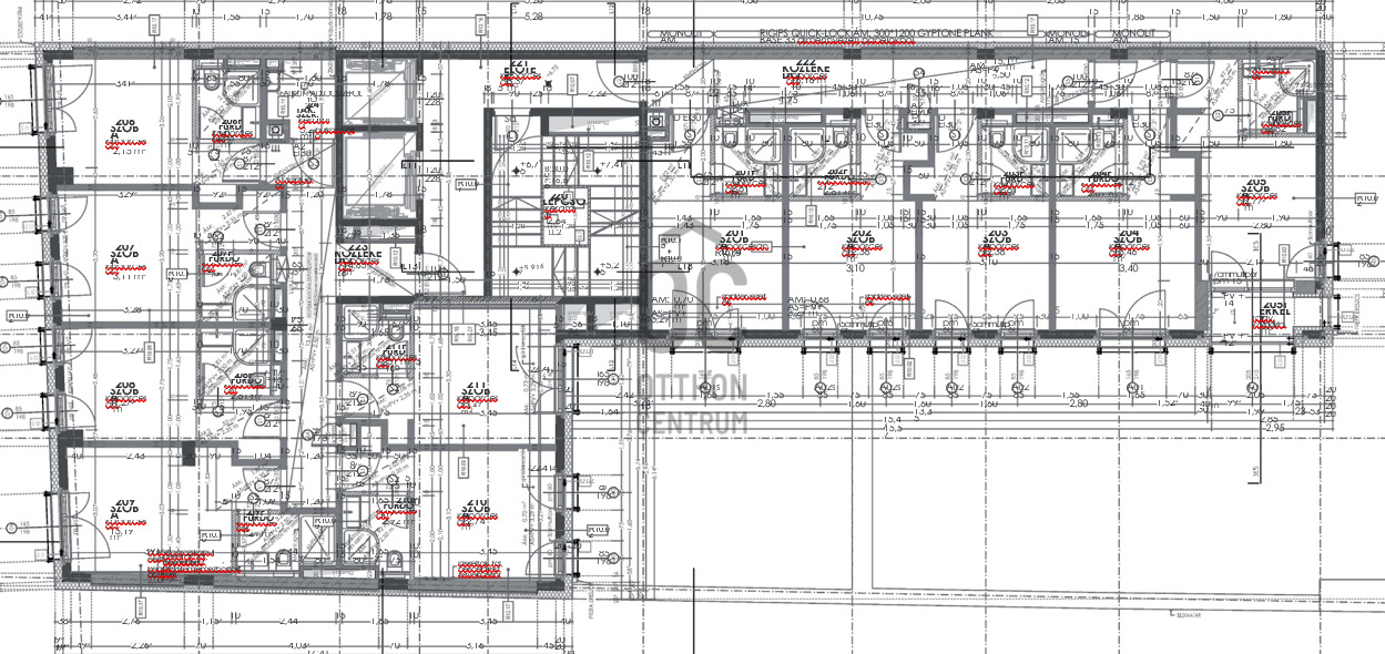
Az ingatlan 68 szobás szállodára kapott építési engedélyt, amely a kor kívánalmai szerint lett kialakítva.
Az épület befejezésre, vagy akár lakóház céljára történő átépítésre vár.
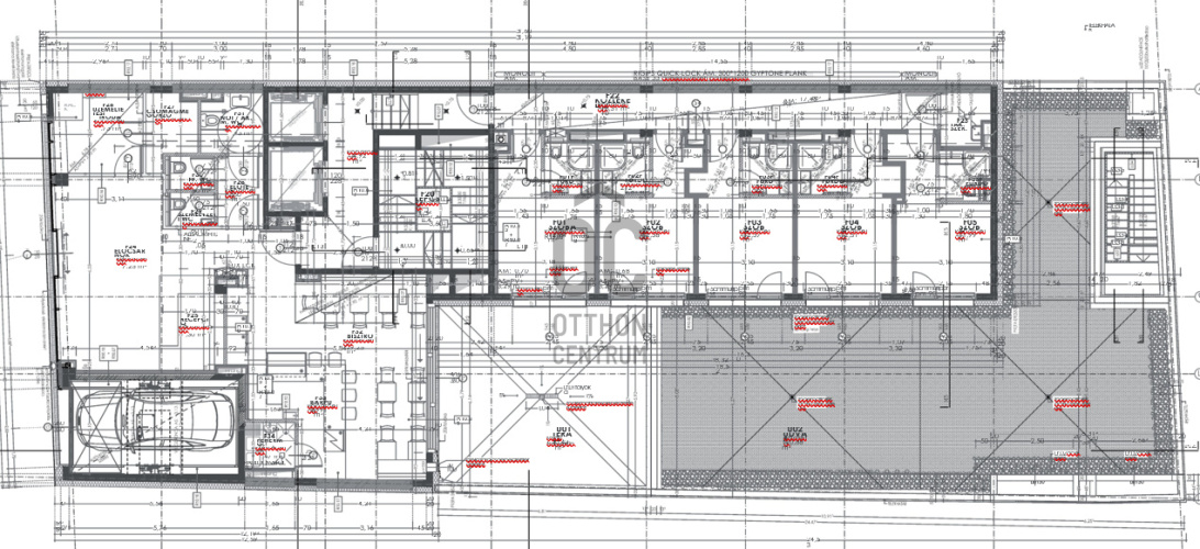
Kialakítsa szerint, garázsszint + földszint + 6 emelet kialakítású.
Telek: 505nm
Garázsszint 430nm 19 autó elhelyezési lehetőséggel
Földszint: Lobbi + 60nm üzlet terület + 5 vendégszoba + 90nm kerthelyiség
1-5 emelet: emeletenként 11db 16-18nm nagyságú szoba
6 emelet: 8 szoba melyből 3 szoba nagy, panorámás terasszal rendelkezik.
Az épületbe 2db nagyméretű lift beépítése lehetséges, a szobák központi hűtő-fűtő berendezésekkel, a kor követelményei szerinti okosmegoldásokkal lett tervezve és ennek megfelelően előkészítve.
Ha szeretne egy kiváló lokációban lévő, könnyen befejezhető szállodai projektet, kellő szobaszámmal, akkor ez a lehetőség kihagyhatatlan az Ön számára!
Az ingatlan 68 szobás szállodára kapott építési engedélyt, amely a kor kívánalmai szerint lett kialakítva.
Az épület befejezésre, vagy akár lakóház céljára történő átépítésre vár.
Kialakítsa szerint, garázsszint + földszint + 6 emelet kialakítású.
Telek: 505nm
Garázsszint 430nm 19 autó elhelyezési lehetőséggel
Földszint: Lobbi + 60nm üzlet terület + 5 vendégszoba + 90nm kerthelyiség
1-5 emelet: emeletenként 11db 16-18nm nagyságú szoba
6 emelet: 8 szoba melyből 3 szoba nagy, panorámás terasszal rendelkezik.
Az épületbe 2db nagyméretű lift beépítése lehetséges, a szobák központi hűtő-fűtő berendezésekkel, a kor követelményei szerinti okosmegoldásokkal lett tervezve és ennek megfelelően előkészítve.
Ha szeretne egy kiváló lokációban lévő, könnyen befejezhető szállodai projektet, kellő szobaszámmal, akkor ez a lehetőség kihagyhatatlan az Ön számára!
Regisztrációs szám
BI000567
Az ingatlan adatai
Értékesités
eladó
Jelleg
fejlesztési célú
Típus
Teljes épület
Altípus
belvárosi bérház
Méret
2 020 m²
Telek méret
505 m²
Terasz / erkély mérete
144 m²
Föld feletti nettó méret
1 565 m²
Kialakítható nettó méret
1 565 m²
Kielakítható föld feletti nettó méret
1 565 m²
Belmagasság
280 cm
Lakáson belüli szintszám
7
Panoráma
városi panoráma
Állapot
Felújítandó
Homlokzat állapota
Kiváló
Garázs férőhely
9
Kialakítható ingatlan
Lakás 10-50 db, Szálloda, Panzió
Láthatóság
Mellékutcában utcafronton lévő
Megközelíthetőseg
Mellékutcára nyíló bejárat
Vitéz Kornél
Hitelszakértő