Eladó fejlesztési célú ingatlan, BI000488
Kiskunfélegyháza

89 000 000 Ft

230 000 €

  • 4 408m²

Excellent 5-story industrial property for sale, can be utilized exceptionally well!

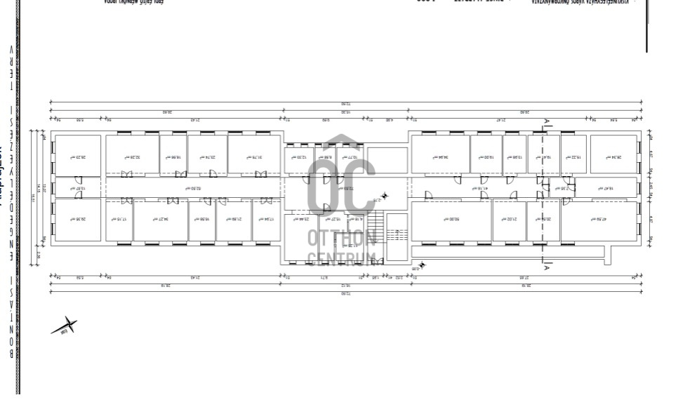
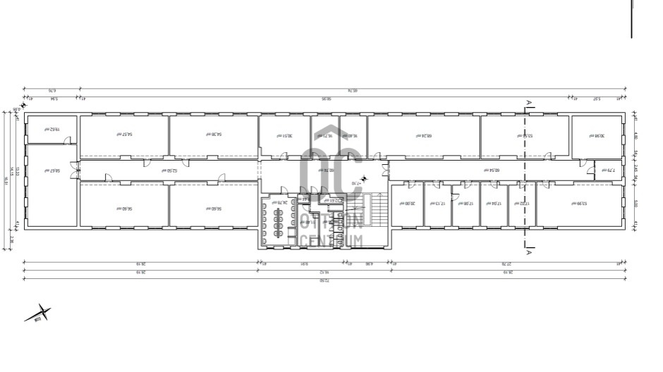
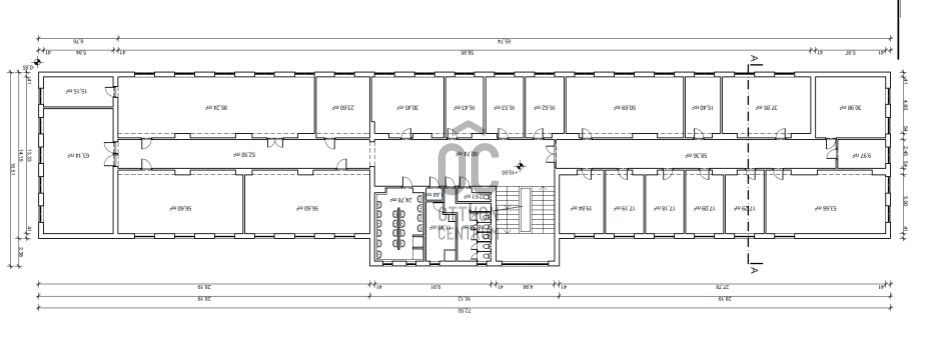
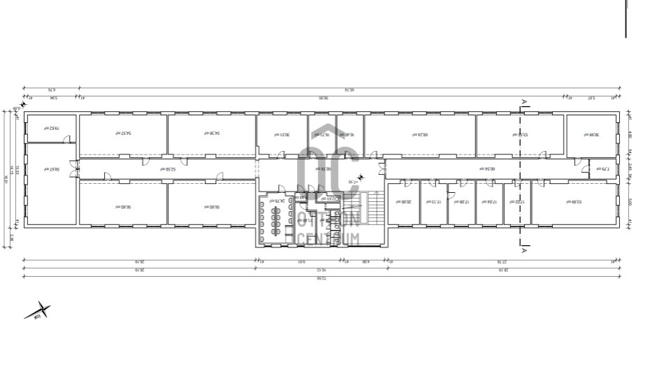
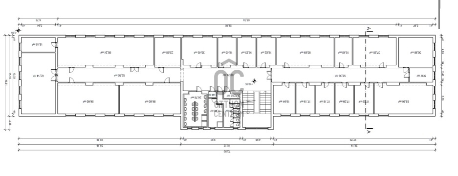
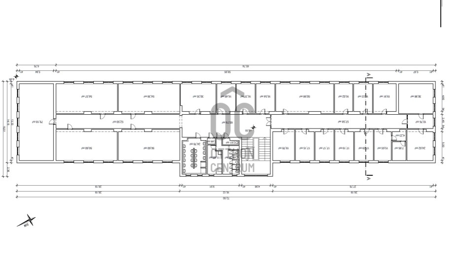
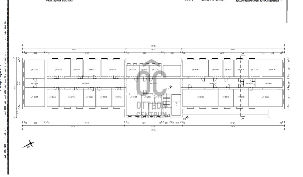
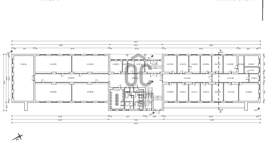
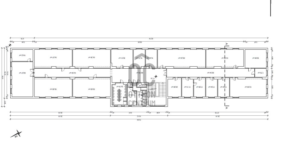
An industrial park in Kiskunfélegyháza is seeking a new owner for a 5-story property with 1000 square meters per floor. The utilities are within the property line and the 6700 square meter plot can be separated. It is located just a few minutes from the highway and has excellent accessibility. It can be used as a hotel, office building, or production facility. Currently, it is without function and in need of renovation, waiting for a new owner. For inquiries, please call 06-70-454-1819.

Regisztrációs szám

BI000488

Az ingatlan adatai

Értékesités
eladó
Jelleg
fejlesztési célú
Típus
Teljes épület
Altípus
ipari
Méret
4 408 m²
Telek méret
6 475 m²
Föld feletti nettó méret
4 408 m²
Kialakítható nettó méret
4 408 m²
Kielakítható föld feletti nettó méret
4 408 m²
Belmagasság
275 cm
Lakáson belüli szintszám
4
Panoráma
Zöldre néző panoráma
Állapot
Felújítandó
Homlokzat állapota
Átlagon aluli
Építés éve
1960
Villany
Van

 

Kialakítható ingatlan
Lakás 10-50 db, Iroda, Szálloda, Panzió
Láthatóság
Forgalmas főútról jól látható
Megközelíthetőseg
Telephelyen belül elhelyezkedő ingatlan

Irodánk kínálatából - XVIII. kerület - Gilice tér

for sale new construction semi-detached house

Index image
data_sheet.details.realestate.section.main.otthonstart_flag.label
8

for sale apartment

Index image
data_sheet.details.realestate.section.main.otthonstart_flag.label
11

for sale row house

Index image
data_sheet.details.realestate.section.main.otthonstart_flag.label
15

for sale family house

Index image
data_sheet.details.realestate.section.main.otthonstart_flag.label
32

for sale apartment

Index image
28

for sale apartment

Index image
14

for sale family house

Index image
31

for sale apartment

Index image
data_sheet.details.realestate.section.main.otthonstart_flag.label
11