EXKLUZÍV OTTHONOK A SZÉCHENYI-KERTBEN

HIHETETLEN, DE IGAZ: ILYEN FELSZERELTSÉGŰ ÚJ ÉPÍTÉSŰ INGATLAN NINCS MÉG EGY JELENLEG A PIACON EBBEN AZ ÁRBAN!

Debrecen Belvárosához közel, a Széchenyi-kert egyirányú utcájában új építésű, igényes otthonok, azonnali költözéssel eladók!

Ezek az Otthonok duplagarázzsal és minőségi gépekkel felszerelt konyhával kerülnek értékesítésre!

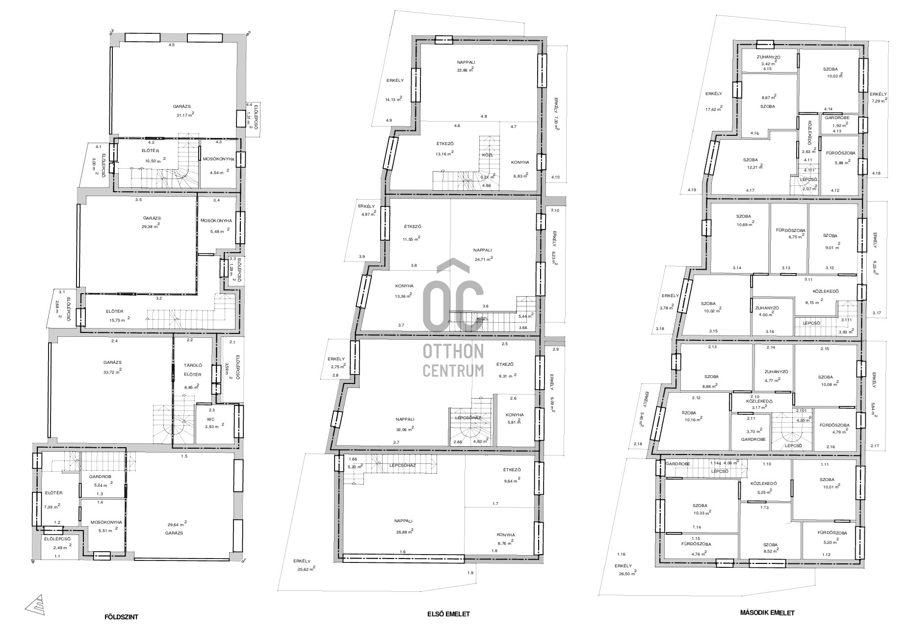
Az egyedi kialakítású, napfényes lakások nappali + 3 szobás, 3 fürdőszobás, háromszintesek és kertkapcsolatosak:
földszinten: duplagarázs, mosókonyha zuhanyzóval, gardróbbal/tárolóval
I. emeleten: nappali, étkező - konyha, erkély vagy teraszkapcsolattal
II. emeleti részen: szülői hálószoba gardróbbal és saját fürdőszobával, valamint 2 hálószoba külön fürdőszobával és erkély vagy teraszkapcsolattal

A magas műszaki tartalmon túl, EXTRA megoldások kerülnek beépítésre:
- külső falak Porotherm 30 cm tégla, 15 cm hőszigeteléssel
- 3 rétegű műanyag nyílászárók
- elektromos redőnyök egyedileg is vezérelhető távirányítással
- 5 db hőszivattyús típusú klíma (hűtő-fűtő)
- gázkazán melegvíz tárolóval (padlófűtés)
- beépített konyhabútor gépesítve (főzőlap,sütő,páraelszívó,hűtő,mosogatógép)
- központi porszívó
- vízlágyító berendezés
- minőségi tapéták
- beépített szekrények/bútorok
- riasztó
- épített kerítés
- beépített led világítások, lámpák.

Minden lakás kertkapcsolatos, melyet kerítés választ el egymástól és a szomszédos telektől.

Jöjjön, tekintse meg személyesen és legyen Ön a következő, aki még választhat és akár azonnal költözhet a luxus otthonok egyikébe!

Hitelügyintézés, CSOK +, banki kollégánk teljeskörűen és díjmentesen bonyolítja Önnek irodánkban, de akár otthonában is!

A projekt ingatlanjai

Újépítésű otthonok a környéken

Józsaközpont Lakópark II.

Index image
data_sheet.details.realestate.section.main.otthonstart_flag.label
4

Belváros közeli prémium lakások

Index image
17