For rent commercial property, UZ018824
Budapest I. kerület, Vár

225,000 Ft

580 €

  • 32.2m²
  • ground floor

KIADÓ KIRAKATOS ÜZLETHELYISÉG A DÉLI-PÁLYAUDVAR ÉS A VÁR KÖZÖTT!

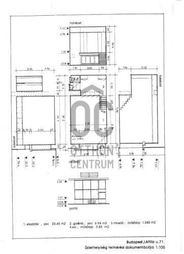
Kiadó kirakatos üzlethelyiség a Déli-pályaudvar mellett a Budai várhoz közel az Attila úton. Forgalmas út mellett, jó környezetben kínál számtalan üzleti lehetőséget új bérlője részére. Kifejezetten alkalmas irodának vagy kereskedelmi célú üzletnek. Korábban sikeresen működött optika és ékszer üzletként, valamint szépségszalonként is.

Egy légtérben, mégis szeparáltan található az üzlet hátsó részében iroda, illetve mosdó, valamint egy 12nm-es álló galéria.

Az üzlethelyiség 3 éve került felújításra. Hűtő-fűtő klíma rendszer, biztonsági kamerák és riasztóberendezés kerültek telepítésre.

Az üzlethelyiség bérbe vehető havi 225.000 Ft + ÁFA és 2 havi kaució ellenében.

Virtuális Websétánkat is tekintse meg, mielőtt személyesen megtekintené az ingatlant:
https://webseta.hu/virtualis-seta/ingatlan/elado/uzlet/budapest-01/32.24m2/uz008481-r1820053

Registration Number

UZ018824

Property Details

Sales
for rent
Legal Status
used
Character
commercial
Type of Business Property
part of building
Construction Method
brick
Net Size
32.2 m²
Above-Ground Net Size
32 m²
Heating
electric fan-coil
Ceiling Height
420 cm
Number of Levels Within the Property
1
Condition
Good
Condition of Facade
Good
Condition of Staircase
Good
Year of Construction
1970
Common Costs
13300
Water
Available
Gas
On the street
Electricity
Available
Sewer
Available
Distance to Waterfront
more than 500 meters

 

Possible Functions
retail, office, office and showroom or shop, office and warehouse, showroom, showroom and service or warehouse, healthcare center, educational center
Visibility
Easily visible from busy main road
Accessibility
Entrance from busy main road
Utilization
vacant

From Our Office Listings - XI. kerület - Szádelő köz

for sale family house

Index image
data_sheet.details.realestate.section.main.otthonstart_flag.label
24

for sale family house

Index image
data_sheet.details.realestate.section.main.otthonstart_flag.label
13

for sale family house

Index image
49

for sale family house

Index image
data_sheet.details.realestate.section.main.otthonstart_flag.label
44

for sale family house

Index image
data_sheet.details.realestate.section.main.otthonstart_flag.label
20

for sale apartment

Index image
60

for sale new construction family house

Index image
29

for sale family house

Index image
data_sheet.details.realestate.section.main.otthonstart_flag.label
29

for sale commercial property

Index image
26