1,500,000 Ft
3,850 €
- 1,328m²




















Warehouse, Office & Workshop Spaces for Rent – 300m from M0 Motorway, Pécel (Budapest Area)
Located just 300 meters from the M0 motorway exit, this fully renovated commercial building in Pécel offers spacious office, warehouse, and workshop areas ideal for a wide range of business activities.
Property Highlights
-Excellent access for logistics – No special permit required for trucks or HGVs.
-Prime location – Immediate connection to M0, perfect for distribution and industrial operations.
-Modernized building – Fully refurbished with clean, functional interiors.
Available Spaces
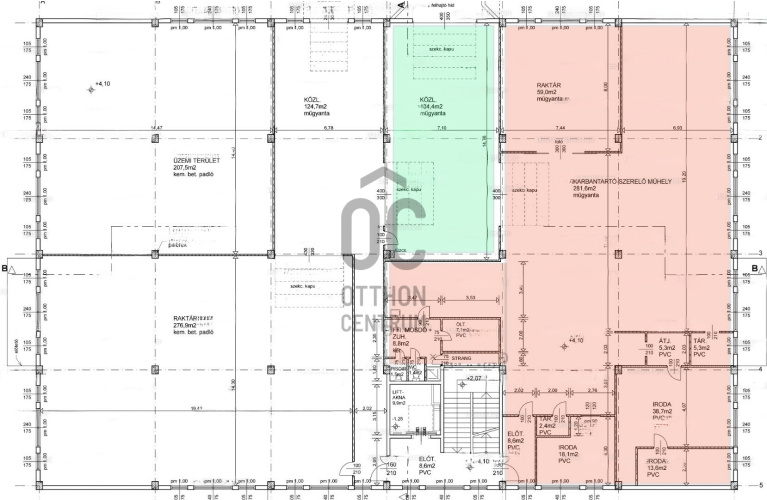
-1st Floor:
-34 m² office + 419 m² workshop/production/warehouse
-Total: 453 m²
-Truck loading access
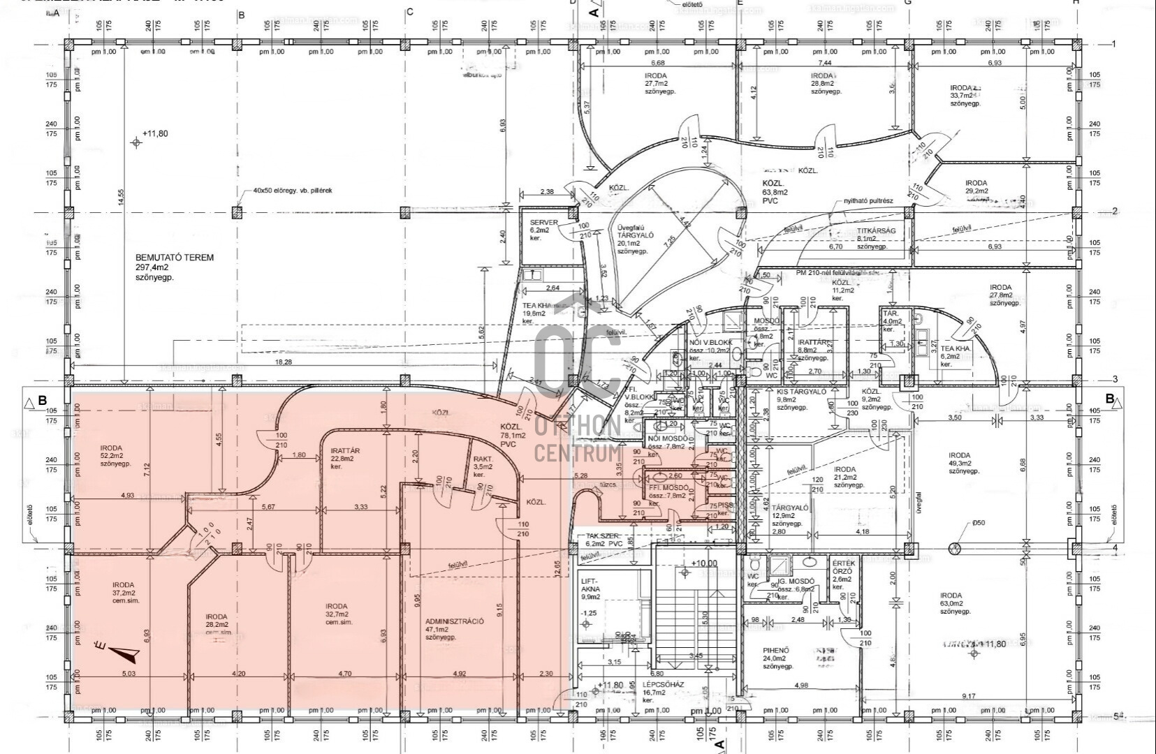
3rd Floor:
-376 m² fully renovated office space (elevator access)
-Multiple large rooms, changing rooms & showers
-Perfect for fitness/yoga studios, physiotherapy, or business offices
Additional Features
-Secure, gated yard with CCTV
-Private parking spaces available for rent
-Suitable for logistics, warehousing, industrial production, and a variety of commercial uses
Lease Conditions
-Minimum rental period: 12 months
-2 months deposit + 1 month rent required Immediate occupancy
-Flexible pricing for renting both units together
Contact us for more details or to arrange a viewing
Property Highlights
-Excellent access for logistics – No special permit required for trucks or HGVs.
-Prime location – Immediate connection to M0, perfect for distribution and industrial operations.
-Modernized building – Fully refurbished with clean, functional interiors.
Available Spaces
-1st Floor:
-34 m² office + 419 m² workshop/production/warehouse
-Total: 453 m²
-Truck loading access
3rd Floor:
-376 m² fully renovated office space (elevator access)
-Multiple large rooms, changing rooms & showers
-Perfect for fitness/yoga studios, physiotherapy, or business offices
Additional Features
-Secure, gated yard with CCTV
-Private parking spaces available for rent
-Suitable for logistics, warehousing, industrial production, and a variety of commercial uses
Lease Conditions
-Minimum rental period: 12 months
-2 months deposit + 1 month rent required Immediate occupancy
-Flexible pricing for renting both units together
Contact us for more details or to arrange a viewing
Registration Number
UZ018785
Property Details
Sales
for rent
Legal Status
used
Character
commercial
Type of Business Property
part of building
Construction Method
brick
Net Size
1,328 m²
Above-Ground Net Size
1,328 m²
Heating
Gas circulator
Ceiling Height
350 cm
Condition
Good
Condition of Facade
Good
Condition of Staircase
Good
Water
Available
Gas
Available
Electricity
Available
Sewer
Available
Elevator
available
Possible Functions
office, office and showroom or shop, office and warehouse, showroom, showroom and service or warehouse, industrial hall or warehouse, logistics center
Accessibility
Property located within a site
Utilization
owner-occupied

Torday Tibor
Credit Expert