257,657 Ft
660 €
- 1,000m²












Office for rent, retail space, hall, warehouse!
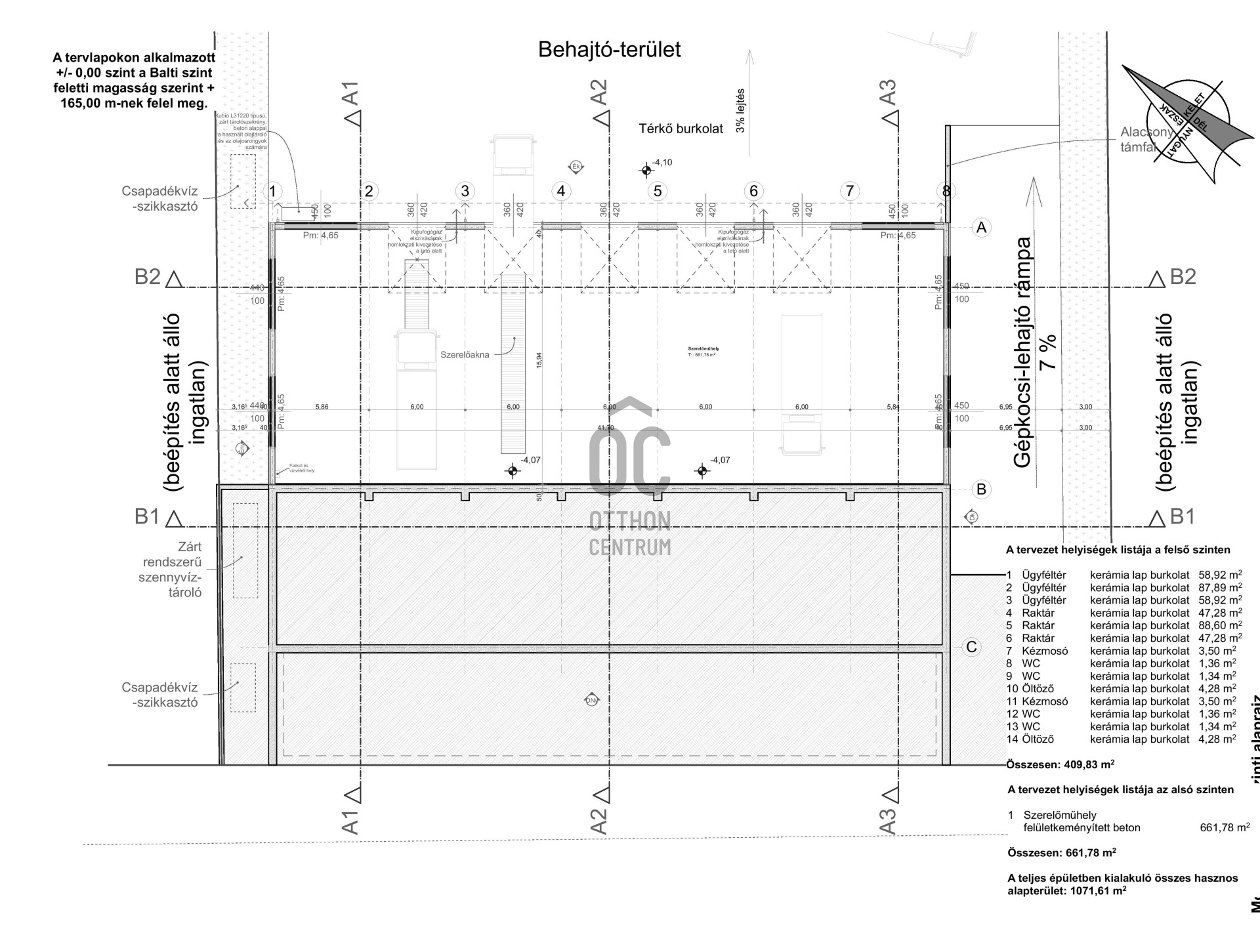
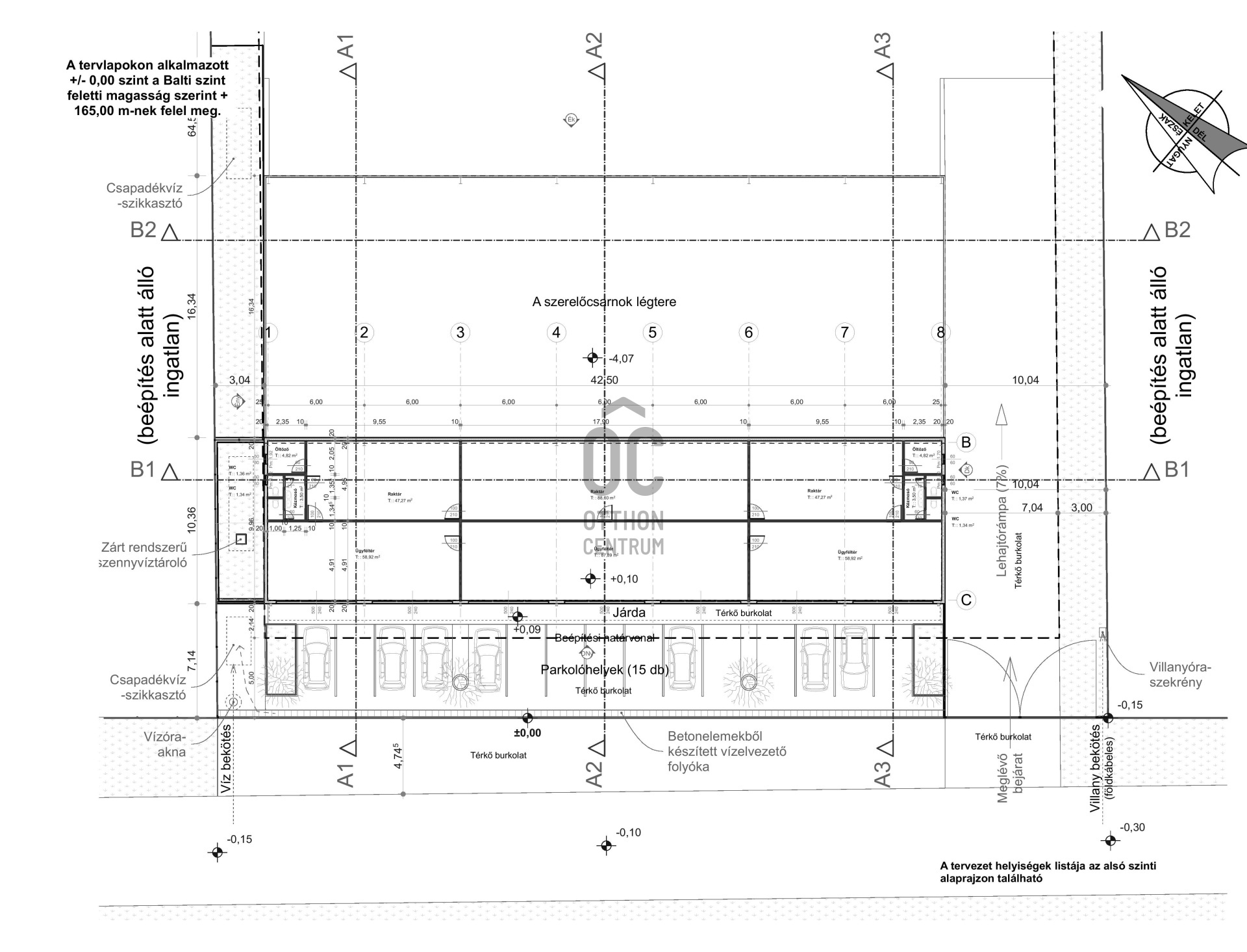
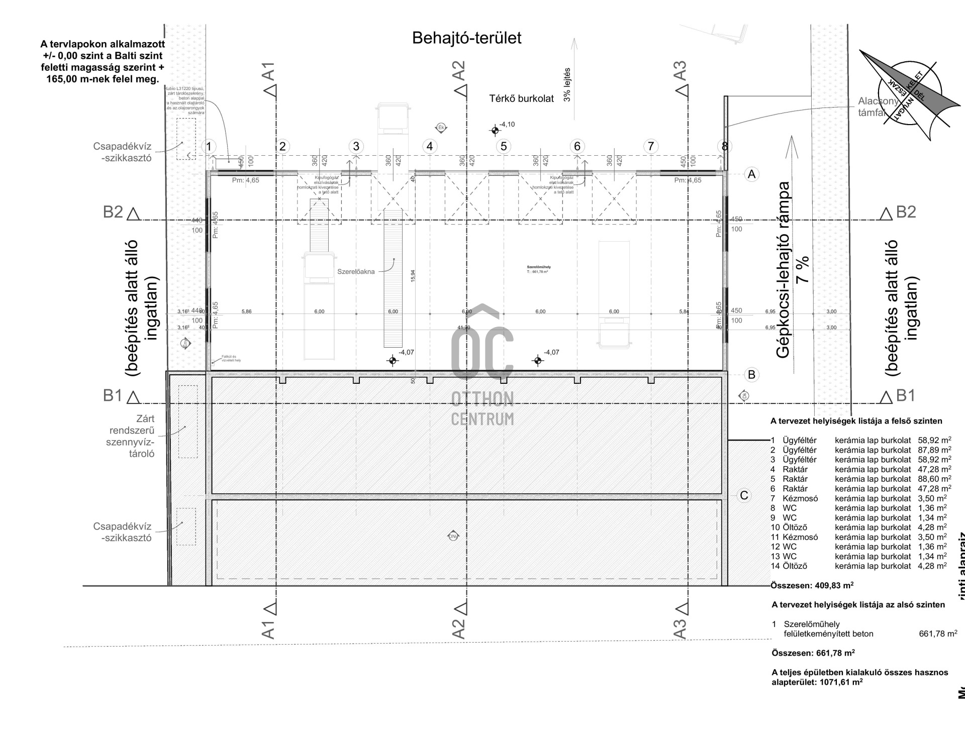
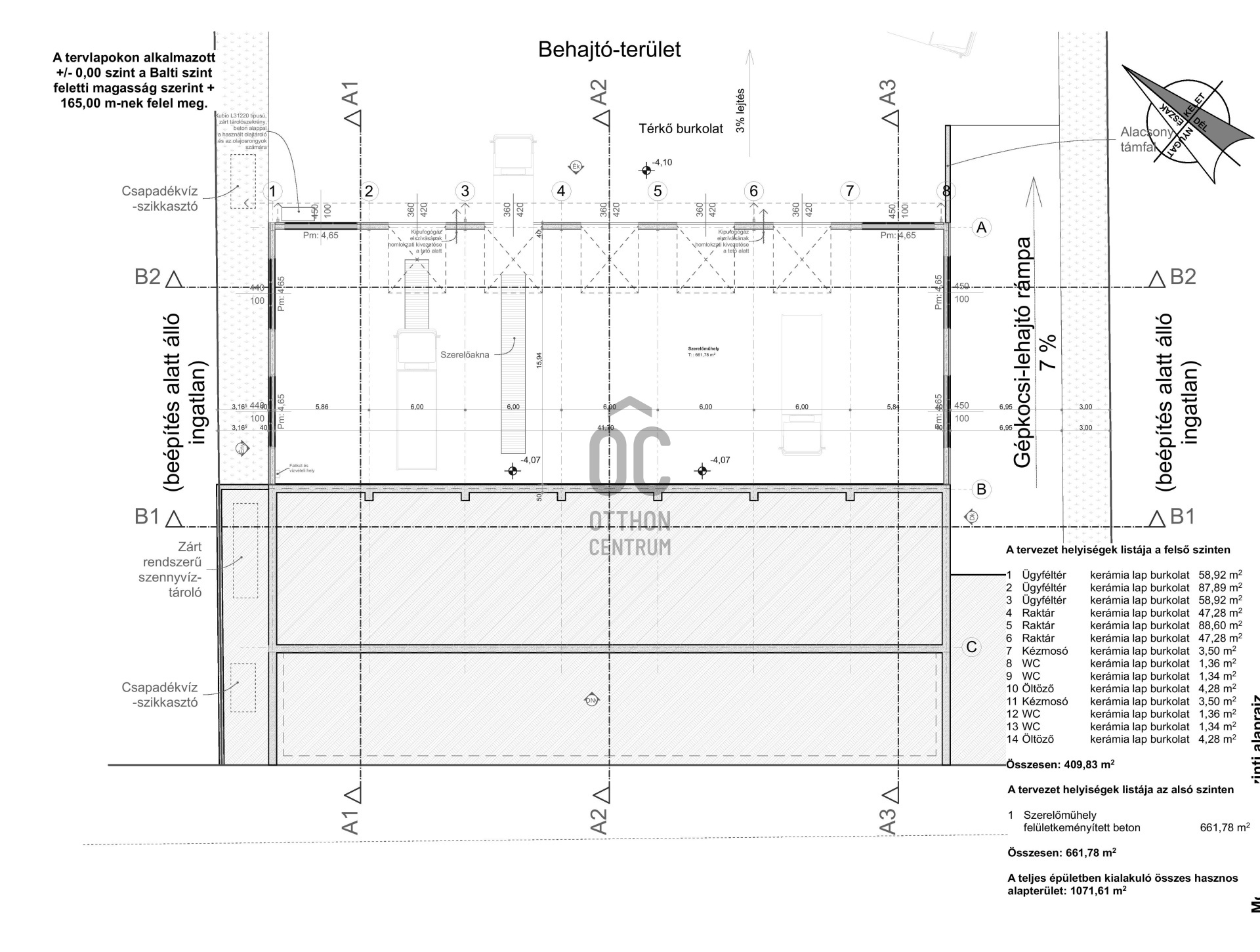
For rent in the largest industrial park of Pilisvörösvár, there are retail spaces ranging from 100 to 300 square meters, plus an additional total of 600 square meters of warehouse space available. The completely newly built property has a direct street front, with a façade featuring large glass surfaces throughout, and it includes its own parking spaces. In the back part of the building, there are large warehouses with a separate entrance that are also available for rent. In the immediate vicinity of the property, there are numerous commercial and service units.
Registration Number
UZ018233
Property Details
Sales
for rent
Legal Status
new
Character
commercial
Type of Business Property
entire building
Construction Method
lightweight
Net Size
1,000 m²
Plot Size
3,000 m²
Above-Ground Net Size
1,000 m²
Ceiling Height
300 cm
Condition
Excellent
Condition of Facade
Excellent
Year of Construction
2025
Water
Available
Gas
On the street
Electricity
Available
Sewer
Available
Possible Functions
retail, showroom, showroom and service or warehouse, industrial hall or warehouse, logistics center
Utilization
vacant

Pfeffer Kinga
Credit Expert