1,551,530 Ft
4,000 €
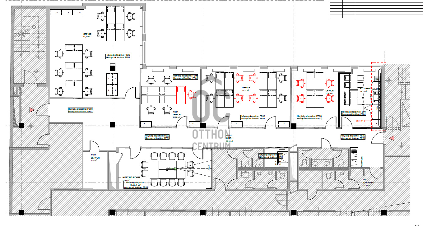
- 266.9m²
- 4th floor






267 m2 kiadó az épület 4. emeletén
KÖRNYEZET:
Az Árpád híd pesti lábánál a Raiffeisen bank új központja mögött egy csendes utcában helyezkedik el ez a különálló épület. Az épület könnyen megközelíthető a Hungária körútról, az Árpád hídról, illetve a Váci útról. Tömegközlekedése kiváló: autóbusszal, villamossal, metróval is könnyen elérhető. Volánbusz pályaudvar az épület szomszédságában található. Az épület környezete folyamatosan megújul és széleskörű szolgáltatásokkal bír, mint gyógyszertár, posta, dohánybolt, étterem, kávézók, szendvicsbárok.
Az irodaház a klasszikus luxust a modern technikával ötvözve nyújt professzionális munkakörnyezetet és kimagasló ügyfél élményt 5.500m2-en.
ÉPÜLET MŰSZAKI JELLEMZŐI:
Mennyezeti hűtés-fűtés
Nyitható ablakok
Érintésmentes beléptető rendszer (QR kód és NFC)
Szünetmentes áramszolgáltatás
Moduláris álpadló és padlószőnyeg
Energiahatékony , jelenlét érzékelős LED-világítás
3 személylift, 1 teherlift
50m3/fő/óra frisslevegő befúvás
IRODAHÁZ SZOLGÁLTATÁSAI:
Konferenciaterem
Étterem
Kávézó terasszal
Díjmentes parkolóövezet
Vendég parkoló
Zuhanyzási lehetőség
Concierge szolgáltatás
Kerékpár tárolók
Székhely szolgáltatás
Fitness terem
Autómosó
Az Árpád híd pesti lábánál a Raiffeisen bank új központja mögött egy csendes utcában helyezkedik el ez a különálló épület. Az épület könnyen megközelíthető a Hungária körútról, az Árpád hídról, illetve a Váci útról. Tömegközlekedése kiváló: autóbusszal, villamossal, metróval is könnyen elérhető. Volánbusz pályaudvar az épület szomszédságában található. Az épület környezete folyamatosan megújul és széleskörű szolgáltatásokkal bír, mint gyógyszertár, posta, dohánybolt, étterem, kávézók, szendvicsbárok.
Az irodaház a klasszikus luxust a modern technikával ötvözve nyújt professzionális munkakörnyezetet és kimagasló ügyfél élményt 5.500m2-en.
ÉPÜLET MŰSZAKI JELLEMZŐI:
Mennyezeti hűtés-fűtés
Nyitható ablakok
Érintésmentes beléptető rendszer (QR kód és NFC)
Szünetmentes áramszolgáltatás
Moduláris álpadló és padlószőnyeg
Energiahatékony , jelenlét érzékelős LED-világítás
3 személylift, 1 teherlift
50m3/fő/óra frisslevegő befúvás
IRODAHÁZ SZOLGÁLTATÁSAI:
Konferenciaterem
Étterem
Kávézó terasszal
Díjmentes parkolóövezet
Vendég parkoló
Zuhanyzási lehetőség
Concierge szolgáltatás
Kerékpár tárolók
Székhely szolgáltatás
Fitness terem
Autómosó
Registration Number
UZ015872
Property Details
Sales
for rent
Legal Status
used
Character
commercial
Type of Business Property
part of building
Construction Method
brick
Net Size
266.9 m²
Above-Ground Net Size
266 m²
Heating
electric fan-coil
Ceiling Height
290 cm
Number of Levels Within the Property
1
Condition
Good
Condition of Facade
Good
Condition of Staircase
Good
Common Costs
2500
Water
Available
Gas
Available
Electricity
Available
Sewer
Available
Elevator
available
Possible Functions
office
Visibility
Located on a side street
Accessibility
Entrance from side street
Utilization
vacant

Ruczek Krisztina
Credit Expert