data_sheet.details.realestate.section.main.otthonstart_flag.label
For sale new construction apartment,
U0049458
Győr, Győr-Sziget
69,900,000 Ft
185,000 €
- 64m²
- 3 Rooms
- 1st floor
Új lakások Győrben!
Új építésű lakások Győr-Szigetben a Bercsényi ligetben!
Ha megfelelő lokációban, kultúrált környezetben keresel új lakást saját részre vagy befektetésre, ez a lehetőség neked szól! Összesen 3db lakás eladó még az 5 lakásos társasházból!
1. lakás: Nappali plusz 2 szobás, 1. emeleti, erkélyes lakás, zöldre néző kilátással! Ne habozz legyen a tiéd!
Átadás várhatóan 2026. év vége emeltszintű fűtéskész állapotban. Kulcsrakész kivitelezés, megállapodás kérdése.
A lakás 7,9 nm erkéllyel rendelkezik ami zöldövezetre néz.
Fűtését kondenzációs gázkazán szolgáltatja PADLÓFŰTÉSES hőleadással. Illetve 1 db klíma kerül beszerelésre.
Műszaki jellemzők:
- Külső falszerkezetek LEIERTHERM 38 N+F és LEIERTHERM
- 30 N+F falazóelemekkel
- Tetőhéjazat: Antracit színű BRAMAC Tectura cserépfedés készül
- Válaszfalak: LEIERTHERM 10 N+F válaszfalelemekből készülnek 10 cm vastagságban
- Hőszigetelés: A tetőtér ferde síkjainak hőszigetelése 25 cm Rockwool Multirock ásványgyapot hőszigeteléssel készül, míg a tetőtér feletti padlásfödém összesen 35 cm Rockwool Multirock ásványgyapot hőszigetelést kap.
- A külső falszerkezeteket 10 cm AUSTROTHERM GRAFIT hőszigetelés egészít ki.
- A padlók hő- és hangszigetelése AUSTROTHERM AT-N100 anyagból lépésálló kivitelben készül, a rétegrendek szerinti vastagságban.
A lakásokhoz 1db zárt udvari (elektromos kapus) nyitott beálló is tartozik melynek ára 3,5 M Ft.
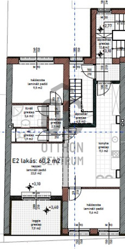
1. lakás 60,2 nm +7,9 nm terasz, fűtéskész ára: 69.900.000 Ft
2. lakás: 64,8 nm + 6,9 nm terasz, fűtéskész ára: 69.900.000 Ft
3. lakás: br. 79,2 nm nettó 63,8 nm, fűtéskész ára: 64.900.000 Ft
Ha felkeltettem érdeklődését telefonáljon mihamarabb! A lakások csak nálam elérhetőek!
Hitelre van szüksége??
Az Otthon Centrum az ország egyik legnagyobb és legmegbízhatóbb hitelközvetítőjeként, teljes körű és díjmentes hitelügyintézéssel, biztosításkötéssel áll rendelkezésére!
Kérje személyre szabott ajánlatunkat Kollégáinktól!
Ha megfelelő lokációban, kultúrált környezetben keresel új lakást saját részre vagy befektetésre, ez a lehetőség neked szól! Összesen 3db lakás eladó még az 5 lakásos társasházból!
1. lakás: Nappali plusz 2 szobás, 1. emeleti, erkélyes lakás, zöldre néző kilátással! Ne habozz legyen a tiéd!
Átadás várhatóan 2026. év vége emeltszintű fűtéskész állapotban. Kulcsrakész kivitelezés, megállapodás kérdése.
A lakás 7,9 nm erkéllyel rendelkezik ami zöldövezetre néz.
Fűtését kondenzációs gázkazán szolgáltatja PADLÓFŰTÉSES hőleadással. Illetve 1 db klíma kerül beszerelésre.
Műszaki jellemzők:
- Külső falszerkezetek LEIERTHERM 38 N+F és LEIERTHERM
- 30 N+F falazóelemekkel
- Tetőhéjazat: Antracit színű BRAMAC Tectura cserépfedés készül
- Válaszfalak: LEIERTHERM 10 N+F válaszfalelemekből készülnek 10 cm vastagságban
- Hőszigetelés: A tetőtér ferde síkjainak hőszigetelése 25 cm Rockwool Multirock ásványgyapot hőszigeteléssel készül, míg a tetőtér feletti padlásfödém összesen 35 cm Rockwool Multirock ásványgyapot hőszigetelést kap.
- A külső falszerkezeteket 10 cm AUSTROTHERM GRAFIT hőszigetelés egészít ki.
- A padlók hő- és hangszigetelése AUSTROTHERM AT-N100 anyagból lépésálló kivitelben készül, a rétegrendek szerinti vastagságban.
A lakásokhoz 1db zárt udvari (elektromos kapus) nyitott beálló is tartozik melynek ára 3,5 M Ft.
1. lakás 60,2 nm +7,9 nm terasz, fűtéskész ára: 69.900.000 Ft
2. lakás: 64,8 nm + 6,9 nm terasz, fűtéskész ára: 69.900.000 Ft
3. lakás: br. 79,2 nm nettó 63,8 nm, fűtéskész ára: 64.900.000 Ft
Ha felkeltettem érdeklődését telefonáljon mihamarabb! A lakások csak nálam elérhetőek!
Hitelre van szüksége??
Az Otthon Centrum az ország egyik legnagyobb és legmegbízhatóbb hitelközvetítőjeként, teljes körű és díjmentes hitelügyintézéssel, biztosításkötéssel áll rendelkezésére!
Kérje személyre szabott ajánlatunkat Kollégáinktól!
Registration Number
U0049458
Property Details
Sales
for sale
Legal Status
new
Character
apartment
Construction Method
brick
Net Size
64 m²
Gross Size
64 m²
Size of Terrace / Balcony
7.9 m²
Heating
Gas circulator
Ceiling Height
265 cm
Orientation
West
View
Green view
Staircase Type
enclosed staircase
Condition
Excellent
Condition of Facade
Excellent
Condition of Staircase
Excellent
Neighborhood
quiet, good transport, green
Year of Construction
2026
Number of Bathrooms
1
Position
garden-facing
Water
Available
Gas
Available
Electricity
Available
Sewer
Available
Rooms
open-plan kitchen and living room
30.1 m²
room
9.5 m²
room
9.6 m²
bathroom
3.6 m²
toilet-washbasin
1.9 m²
entryway
2.5 m²
terrace
7.9 m²
Dr. Táncos Mónika
Credit Expert