data_sheet.details.realestate.section.main.otthonstart_flag.label
For sale new construction semi-detached house,
U0049056
Budapest X. kerület, Újhegy
129,900,000 Ft
363,000 €
- 122m²
- 4 Rooms
- ground floor
Modern, újépítésű kétszintes ikerház Budapest X. kerületének egyik legkedveltebb környékén!
Exkluzív lehetőség azok számára, akik minőségi, XXI. századi otthont keresnek a belvároshoz közel, mégis egy nyugodt, családias környezetben!
A projektben még több lakás is elérhető!
A csendes mellékutcában elhelyezkedő, prémium műszaki tartalommal rendelkező ikerház minden igényt kielégít – a modern életstílus jegyében.
Kiemelkedő adottságok és átgondolt tervezés
Az ingatlan a legmodernebb műszaki elvárások szerint készül, kiváló minőségű anyagok és prémium gépészeti megoldások alkalmazásával. A telek adottságai maximálisan kihasználásra kerültek, így egy esztétikus, funkcionális és hosszú távon értékálló családi otthon születik.
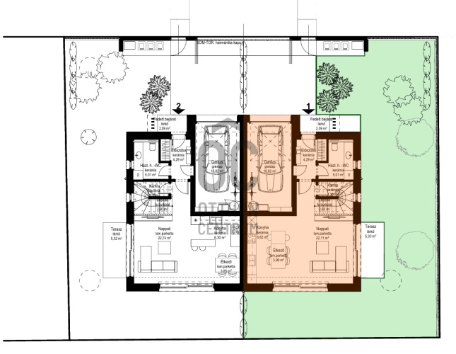
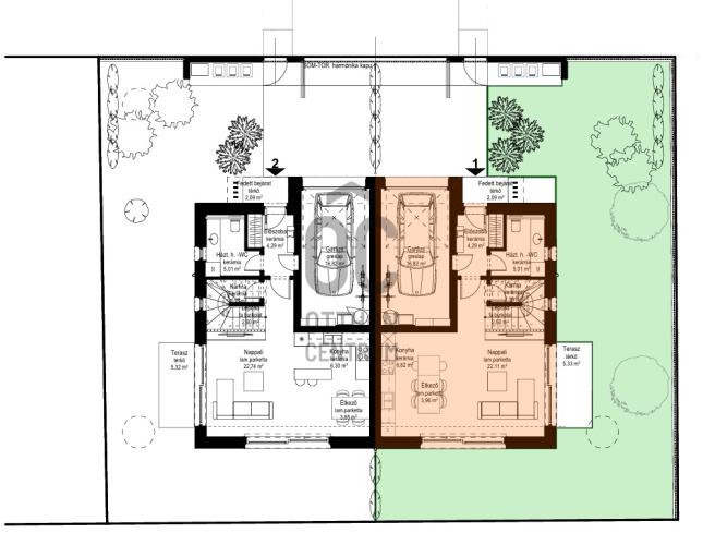
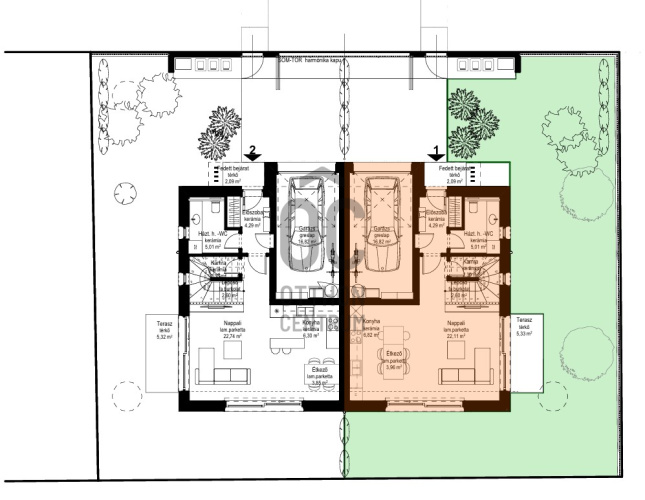
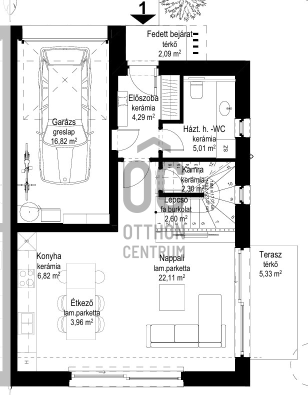
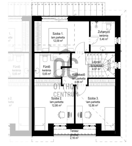
A hasznos alapterület 122 m², két szinten:
Földszint:
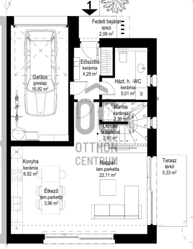
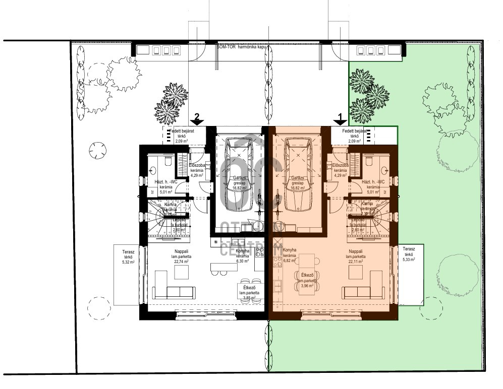
- Tágas, 33 m²-es amerikai konyhás nappali, közvetlen teraszkapcsolattal és kerttel
- Zuhanyzó + WC
- Háztartási helyiség
- Nagyméretű, fedett garázs – akár nagyobb autó számára is ideális
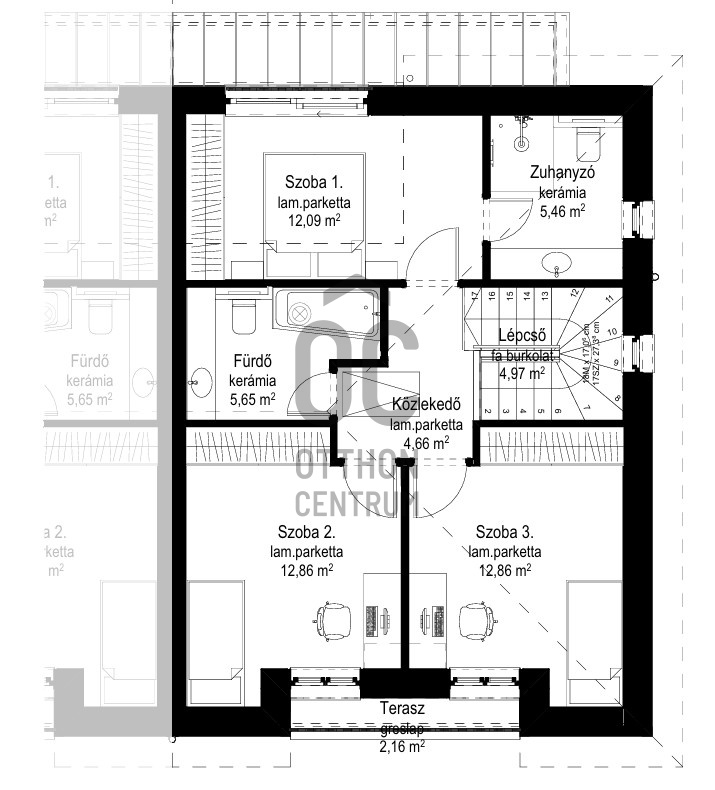
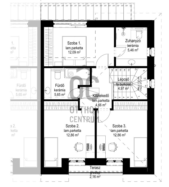
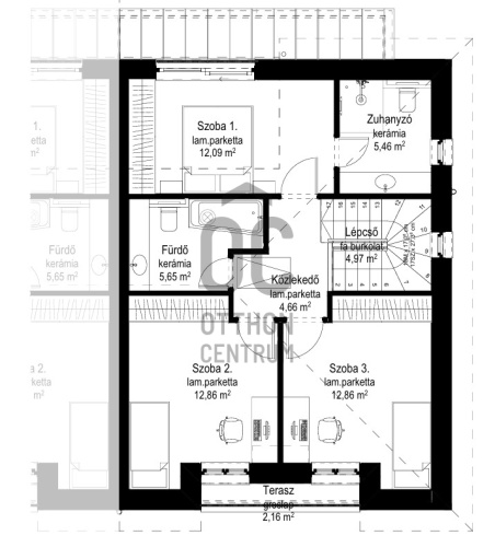
Emelet:
- 3 kényelmes hálószoba
- 2 modern fürdőszoba
A házhoz tartozó 231 m²-es privát kert igazi oázis, mely teljes intimitást biztosít, így tökéletes lehet családoknak, pihenéshez vagy akár kertészkedéshez is.
Prémium műszaki tartalom
- 30 cm Porotherm főfalak
- 3 rétegű, hőszigetelt műanyag nyílászárók
- Monolit vasbeton födém
- Terrán Zenit Max Carbon tetőcserép
- 15 cm homlokzati hőszigetelés, korszerű energetikai besorolással
- Hőszivattyús rendszer: mindenhol padlófűtés, nappaliban fan-coil és az emeleten mennyezeti fűtés-hűtés
- Minőségi burkolatok, térkövezett udvar
Extrák, amelyek valódi kényelmet adnak
- Okosotthon rendszer
- Elektromos redőnyök
- Kamera- és riasztórendszer előkészítés
- Videókaputelefon
- Elektromos kapu
- Öntözőrendszer
- Elektromos autótöltő kiépítése
- Garázsban temperáló fűtés + 5 cm belső szigetelés
- WPC kerítés
- Rejtett- és udvarvilágítás
- Beépített bútorok megegyezés alapján
- Teljes digitális átláthatóság az építkezés során
A PlanRadar rendszernek köszönhetően Ön:
- Valós időben követheti az építkezés minden lépését kamerán keresztül
- Kéthetente részletes, fotókkal ellátott jelentést kap
- A projekt végén minden dokumentumot digitálisan átvehet egy biztonságos felületen
Finanszírozás
Az ingatlan hitelre is megvásárolható, ügyfeleink számára díjmentes hitelügyintézéssel, minden hazai bank kínálatából.
Állami támogatások is igénybe vehetők!
Várható átadás: 2026. IV. negyedév
Ne maradjon le!
Ilyen színvonalú, modern és biztonságos otthon ritkán kerül a piacra. Kiváló választás családoknak, pároknak és mindenkinek, aki igényes, hosszú távon értékálló ingatlant keres.
Forduljon hozzám bizalommal a hét bármely napján!
A projektben még több lakás is elérhető!
A csendes mellékutcában elhelyezkedő, prémium műszaki tartalommal rendelkező ikerház minden igényt kielégít – a modern életstílus jegyében.
Kiemelkedő adottságok és átgondolt tervezés
Az ingatlan a legmodernebb műszaki elvárások szerint készül, kiváló minőségű anyagok és prémium gépészeti megoldások alkalmazásával. A telek adottságai maximálisan kihasználásra kerültek, így egy esztétikus, funkcionális és hosszú távon értékálló családi otthon születik.
A hasznos alapterület 122 m², két szinten:
Földszint:
- Tágas, 33 m²-es amerikai konyhás nappali, közvetlen teraszkapcsolattal és kerttel
- Zuhanyzó + WC
- Háztartási helyiség
- Nagyméretű, fedett garázs – akár nagyobb autó számára is ideális
Emelet:
- 3 kényelmes hálószoba
- 2 modern fürdőszoba
A házhoz tartozó 231 m²-es privát kert igazi oázis, mely teljes intimitást biztosít, így tökéletes lehet családoknak, pihenéshez vagy akár kertészkedéshez is.
Prémium műszaki tartalom
- 30 cm Porotherm főfalak
- 3 rétegű, hőszigetelt műanyag nyílászárók
- Monolit vasbeton födém
- Terrán Zenit Max Carbon tetőcserép
- 15 cm homlokzati hőszigetelés, korszerű energetikai besorolással
- Hőszivattyús rendszer: mindenhol padlófűtés, nappaliban fan-coil és az emeleten mennyezeti fűtés-hűtés
- Minőségi burkolatok, térkövezett udvar
Extrák, amelyek valódi kényelmet adnak
- Okosotthon rendszer
- Elektromos redőnyök
- Kamera- és riasztórendszer előkészítés
- Videókaputelefon
- Elektromos kapu
- Öntözőrendszer
- Elektromos autótöltő kiépítése
- Garázsban temperáló fűtés + 5 cm belső szigetelés
- WPC kerítés
- Rejtett- és udvarvilágítás
- Beépített bútorok megegyezés alapján
- Teljes digitális átláthatóság az építkezés során
A PlanRadar rendszernek köszönhetően Ön:
- Valós időben követheti az építkezés minden lépését kamerán keresztül
- Kéthetente részletes, fotókkal ellátott jelentést kap
- A projekt végén minden dokumentumot digitálisan átvehet egy biztonságos felületen
Finanszírozás
Az ingatlan hitelre is megvásárolható, ügyfeleink számára díjmentes hitelügyintézéssel, minden hazai bank kínálatából.
Állami támogatások is igénybe vehetők!
Várható átadás: 2026. IV. negyedév
Ne maradjon le!
Ilyen színvonalú, modern és biztonságos otthon ritkán kerül a piacra. Kiváló választás családoknak, pároknak és mindenkinek, aki igényes, hosszú távon értékálló ingatlant keres.
Forduljon hozzám bizalommal a hét bármely napján!
Registration Number
U0049056
Property Details
Sales
for sale
Legal Status
new
Character
house
Construction Method
brick
Net Size
122 m²
Gross Size
122 m²
Plot Size
231 m²
Size of Terrace / Balcony
7 m²
Garden Size
231 m²
Heating
heat pump (air-to-air)
Ceiling Height
280 cm
Number of Levels Within the Property
2
Orientation
South-East
View
city view, Green view
Condition
Excellent
Condition of Facade
Excellent
Neighborhood
quiet, good transport, green
Year of Construction
2025
Number of Bathrooms
2
Position
street-facing
Condominium Garden
yes
Garage
Included in the price
Garage Spaces
1
Water
Available
Gas
On the street
Electricity
Available
Sewer
Available
Rooms
living room
22.11 m²
dining room
3.96 m²
kitchen
6.82 m²
utility room
5.01 m²
entryway
4.29 m²
pantry
2.3 m²
staircase
2.6 m²
terrace
5.33 m²
garage
16.82 m²
room
12.09 m²
room
12.86 m²
room
12.86 m²
bathroom-toilet
5.65 m²
corridor
4.66 m²
staircase
4.97 m²
bathroom-toilet
5.46 m²
balcony
2.16 m²
Horváth Eleonóra
Credit Expert