data_sheet.details.realestate.section.main.otthonstart_flag.label
For sale new construction semi-detached house,
U0048791
Hajdúsámson
67,700,000 Ft
179,000 €
- 103.1m²
- 4 Rooms
Tágas, modern, energiatakarékos és kedvező áron – pont, amire vágyott!
Álomotthon Hajdúsámsonban – ne maradjon le róla!
Új építésű, modern ikerház eladó, amely minden igényt kielégít: tágas, világos, energiatakarékos és családbarát. Legyen Ön az első lakója!
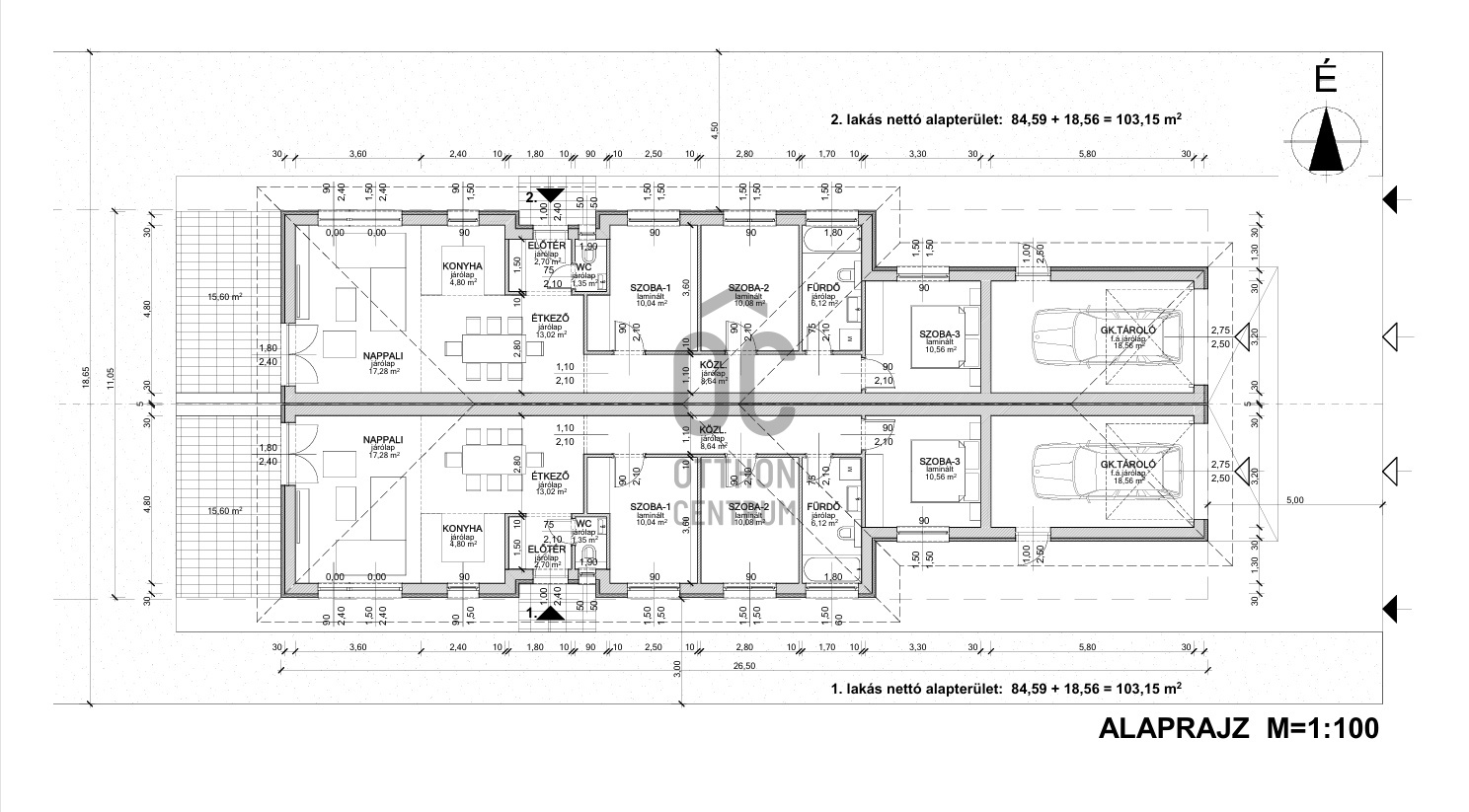
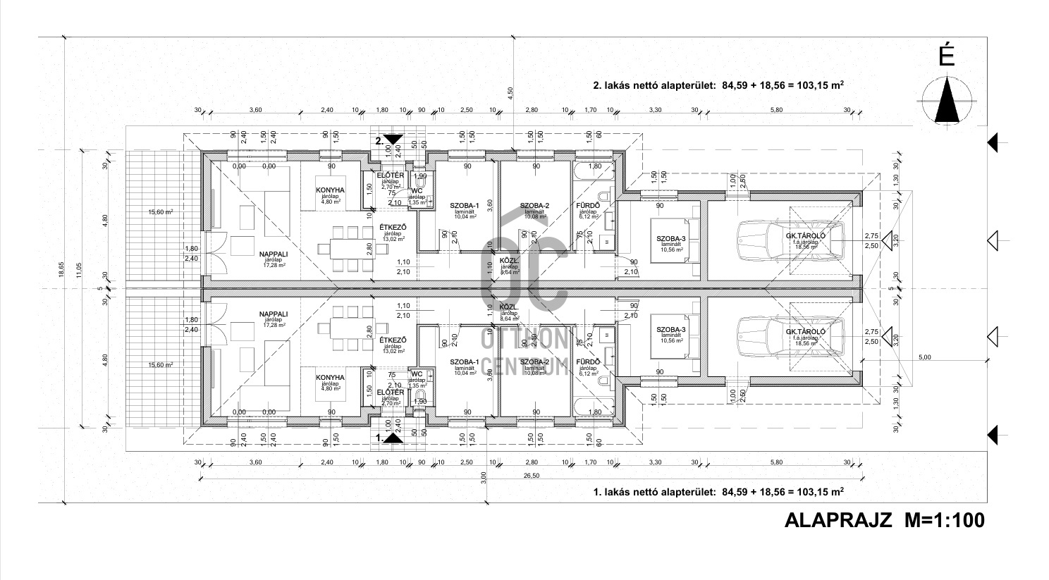
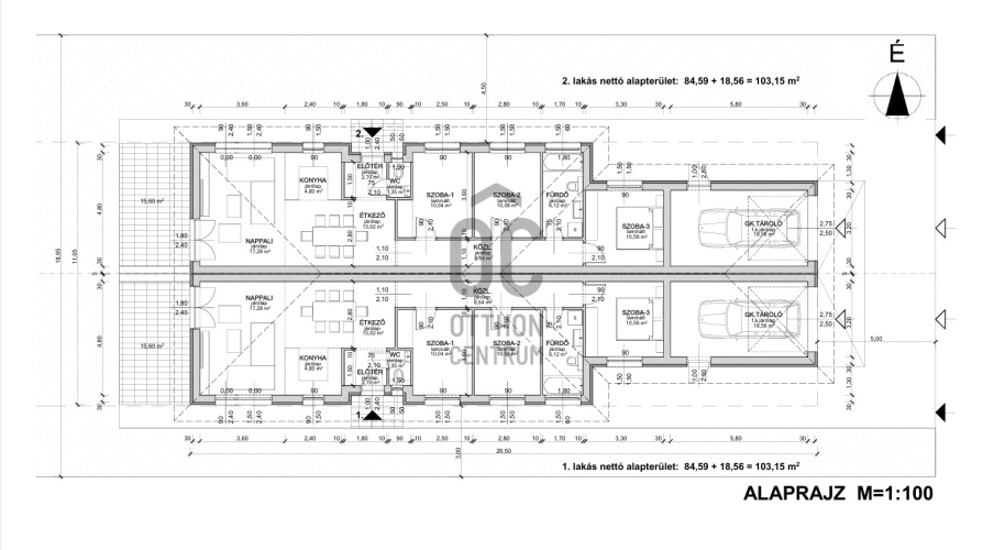
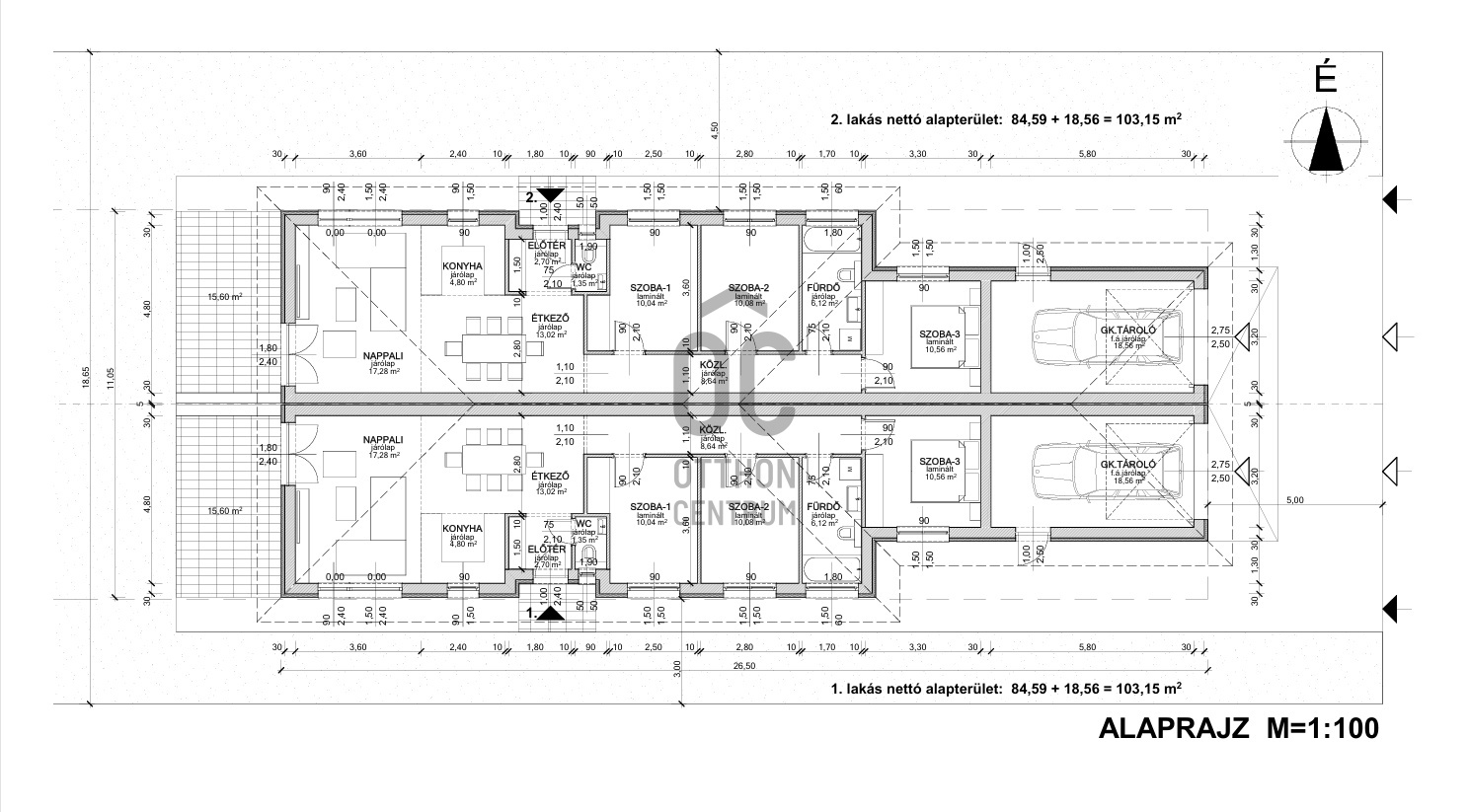
Lakótér és elrendezés:
- 84,59 m² nettó hasznos lakóterület + 18,56 m²-es garázs
- amerikai konyhás, hatalmas nappali, ahol a család és barátok együtt lehetnek
- 3 különnyíló, kényelmes hálószoba
- fürdőszoba + külön WC
- tágas terasz (igény szerint fedett kialakítással)
- igény esetén plusz fürdő, mosókonyha vagy kamra
Műszaki tartalom:
- ikerházfelek közt saját főfal + profi hang- és hőszigetelés
- külön utcafronti bejárat minden lakóegységhez
- masszív beton alap és ácsolt tetőszerkezet betoncseréppel
- 30-as N+F tégla falazat, 15 cm homlokzati hőszigeteléssel
- 25 cm födémszigetelés és 10 cm aljzatszigetelés
- 3 rétegű üvegezésű, hőhídmentes nyílászárók
- padlófűtés hőszivattyúval a teljes lakásban – alacsony rezsi, magas komfort
- választható belső nyílászárók, burkolatok, szaniterek és csaptelepek – alakítsa saját ízlésére!
- szabadon variálható belső elrendezés
Telek és környezet:
- saját, 406 m²-es telek
- új építésű ingatlanok környezetében, barátságos lakóövezet
- a főút mindössze 550 m-re – csend és nyugalom, de könnyű közlekedés
- bevásárlás és szolgáltatások 7 percnyire (LIDL, Rossmann, Tedi, KIK, EcoFamily, konditerem stb.)
- kisbolt pár perces sétára a mindennapi kényelmet szolgálva
Miért érdemes most lépni?
Ez a ház ideális választás pároknak, családoknak és mindazoknak, akik modern, energiatakarékos és kényelmes otthonra vágynak Hajdúsámsonban. Az ár-érték arány kivételes, a környék fejlődő és barátságos.
Ne hagyja ki, mert hamar elkel!
Érdeklődjön még ma, hogy Ön választhassa ki elsőként álmai otthonát!
Új építésű, modern ikerház eladó, amely minden igényt kielégít: tágas, világos, energiatakarékos és családbarát. Legyen Ön az első lakója!
Lakótér és elrendezés:
- 84,59 m² nettó hasznos lakóterület + 18,56 m²-es garázs
- amerikai konyhás, hatalmas nappali, ahol a család és barátok együtt lehetnek
- 3 különnyíló, kényelmes hálószoba
- fürdőszoba + külön WC
- tágas terasz (igény szerint fedett kialakítással)
- igény esetén plusz fürdő, mosókonyha vagy kamra
Műszaki tartalom:
- ikerházfelek közt saját főfal + profi hang- és hőszigetelés
- külön utcafronti bejárat minden lakóegységhez
- masszív beton alap és ácsolt tetőszerkezet betoncseréppel
- 30-as N+F tégla falazat, 15 cm homlokzati hőszigeteléssel
- 25 cm födémszigetelés és 10 cm aljzatszigetelés
- 3 rétegű üvegezésű, hőhídmentes nyílászárók
- padlófűtés hőszivattyúval a teljes lakásban – alacsony rezsi, magas komfort
- választható belső nyílászárók, burkolatok, szaniterek és csaptelepek – alakítsa saját ízlésére!
- szabadon variálható belső elrendezés
Telek és környezet:
- saját, 406 m²-es telek
- új építésű ingatlanok környezetében, barátságos lakóövezet
- a főút mindössze 550 m-re – csend és nyugalom, de könnyű közlekedés
- bevásárlás és szolgáltatások 7 percnyire (LIDL, Rossmann, Tedi, KIK, EcoFamily, konditerem stb.)
- kisbolt pár perces sétára a mindennapi kényelmet szolgálva
Miért érdemes most lépni?
Ez a ház ideális választás pároknak, családoknak és mindazoknak, akik modern, energiatakarékos és kényelmes otthonra vágynak Hajdúsámsonban. Az ár-érték arány kivételes, a környék fejlődő és barátságos.
Ne hagyja ki, mert hamar elkel!
Érdeklődjön még ma, hogy Ön választhassa ki elsőként álmai otthonát!
Registration Number
U0048791
Property Details
Sales
for sale
Legal Status
new
Character
house
Construction Method
brick
Net Size
103.1 m²
Gross Size
103.1 m²
Plot Size
406 m²
Heating
heat pump
Ceiling Height
275 cm
Orientation
South
Condition
Excellent
Condition of Facade
Excellent
Neighborhood
quiet, good transport, green, central
Year of Construction
2026
Number of Bathrooms
1
Garage
Included in the price
Water
Available
Electricity
Available
Sewer
Available
Rooms
open-plan kitchen and living room
35.1 m²
room
10.56 m²
room
10.08 m²
room
10.04 m²
bathroom
6.12 m²
toilet-washbasin
1.35 m²
corridor
8.64 m²
entryway
2.7 m²
garage
18.56 m²
Czellér András
Credit Expert