data_sheet.details.realestate.section.main.otthonstart_flag.label
For sale new construction apartment,
U0048613
Paks, Óváros
77,000,000 Ft
202,000 €
- 59.7m²
- 3 Rooms
- 1st floor
Luxury quality newly built apartment for sale in Pakson.
In the quiet street of Paks, a luxury quality, newly built apartment is for sale.
Do you love comfort and tranquility, spacious, bright spaces? Would you like a quality home for your family with extras? I recommend this apartment to you! The property is constructed from brick, using quality materials, executed by a multiple award-winning company. What should the atmosphere of the apartment be like? This decision is in your hands. I have attached a few photos for inspiration.
Key features:
- Built from Porotherm 38 X-therm bricks with proper insulation (A+ energy rating)
- Windows and doors have 3-layer, wooden structure with thermal insulating glazing, equipped with electric shutters and insect screens
- Roof windows are Velux, with 3-layer safety, thermal insulating glazing, and external heat-protective roller blinds
- Floor heating and ceiling cooling powered by a heat pump system ensure the comfort of the residents
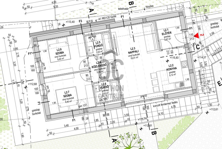
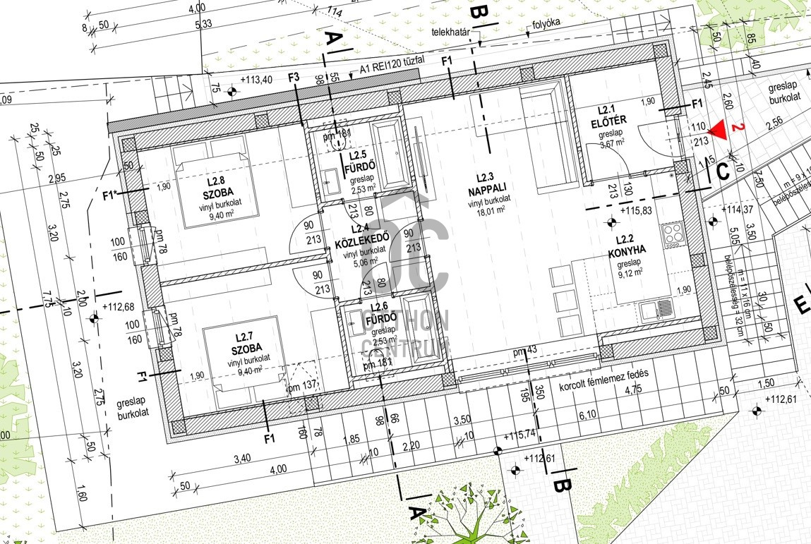
- The nearly 60 sqm apartment is divided into: two bedrooms, two bathrooms, living room - kitchen, and terrace
- The apartment will be delivered with built-in kitchen furniture valued at 1,000,000 HUF
- A parking space in a garage equipped with a Hörmann garage door can be purchased with the apartment, as well as a parking spot in the yard. The total for both is 8,000,000 HUF
- And what should the interior appearance of the apartment be like???
We can assist you with that too! Don't miss out on this opportunity!
For more information, call today so that this excellent value-for-money property can be yours. Comprehensive financial solutions management is free of charge: * Our independent loan center will competitively assess offers from all banks and financial institutions at no cost. * You only need to talk to our colleague and then choose the most suitable long-term option from the competitive offers. * Our expert has over 20 years of professional experience and offers customized, consumer-friendly home loans, baby waiting loans, and full CSOK management. * By appointment only.
In Paks, a 60 sqm newly built brick apartment is for sale.
Do you love comfort and tranquility, spacious, bright spaces? Would you like a quality home for your family with extras? I recommend this apartment to you! The property is constructed from brick, using quality materials, executed by a multiple award-winning company. What should the atmosphere of the apartment be like? This decision is in your hands. I have attached a few photos for inspiration.
Key features:
- Built from Porotherm 38 X-therm bricks with proper insulation (A+ energy rating)
- Windows and doors have 3-layer, wooden structure with thermal insulating glazing, equipped with electric shutters and insect screens
- Roof windows are Velux, with 3-layer safety, thermal insulating glazing, and external heat-protective roller blinds
- Floor heating and ceiling cooling powered by a heat pump system ensure the comfort of the residents
- The nearly 60 sqm apartment is divided into: two bedrooms, two bathrooms, living room - kitchen, and terrace
- The apartment will be delivered with built-in kitchen furniture valued at 1,000,000 HUF
- A parking space in a garage equipped with a Hörmann garage door can be purchased with the apartment, as well as a parking spot in the yard. The total for both is 8,000,000 HUF
- And what should the interior appearance of the apartment be like???
We can assist you with that too! Don't miss out on this opportunity!
For more information, call today so that this excellent value-for-money property can be yours. Comprehensive financial solutions management is free of charge: * Our independent loan center will competitively assess offers from all banks and financial institutions at no cost. * You only need to talk to our colleague and then choose the most suitable long-term option from the competitive offers. * Our expert has over 20 years of professional experience and offers customized, consumer-friendly home loans, baby waiting loans, and full CSOK management. * By appointment only.
In Paks, a 60 sqm newly built brick apartment is for sale.
Registration Number
U0048613
Property Details
Sales
for sale
Legal Status
new
Character
apartment
Construction Method
brick
Net Size
59.7 m²
Gross Size
78 m²
Heating
values.realestate.futes.26
Ceiling Height
270 cm
Orientation
South
Staircase Type
none
Condition
Excellent
Condition of Facade
Excellent
Condition of Staircase
Excellent
Neighborhood
quiet
Year of Construction
2026
Number of Bathrooms
1
Position
courtyard-facing
Garage
Included in the price
Water
Available
Electricity
Available
Sewer
Available
Storage
Independent
Rooms
entryway
3.67 m²
kitchen
9.12 m²
living room
18 m²
corridor
5.06 m²
bathroom
2.53 m²
room
9.4 m²
room
9.4 m²
bathroom
2.53 m²
parking space
16 m²
Fábián Sándorné
Credit Expert