data_sheet.details.realestate.section.main.otthonstart_flag.label
For sale new construction semi-detached house, U0048461
Kistarcsa

109,990,000 Ft

286,000 €

  • 94.2m²
  • 4 Rooms

NEWLY BUILT duplex house for sale in Kistarcsa!

Newly built duplex house for sale in Kistarcsa! - Net area of 111.9 square meters - 3 bedrooms + open-plan living room with American kitchen - Heat pump heating system - Triple-glazed heat-insulated windows with plastic frames - Garage + 20 square meter terrace A modern energy-efficient home in a quiet suburban environment. The property is currently still under construction, allowing for customization to meet your internal needs. We recommend it for families and couples looking for a long-term home! Quality construction, excellent layout - reserve your new home in time! I look forward to your call any day of the week!

Registration Number

U0048461

Property Details

Sales
for sale
Legal Status
new
Character
house
Construction Method
brick
Net Size
94.2 m²
Gross Size
146.2 m²
Plot Size
730 m²
Heating
heat pump
Ceiling Height
270 cm
Number of Levels Within the Property
1
Orientation
East
Condition
Excellent
Condition of Facade
Excellent
Neighborhood
quiet, good transport, green, central
Year of Construction
2025
Number of Bathrooms
2
Garage
Included in the price
Water
Available
Gas
On the street
Electricity
Available
Sewer
Available

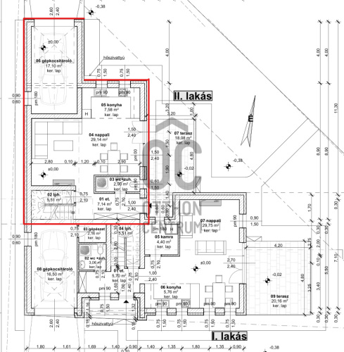
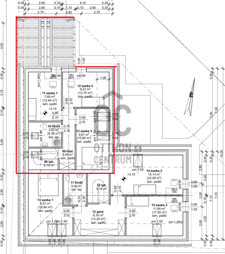
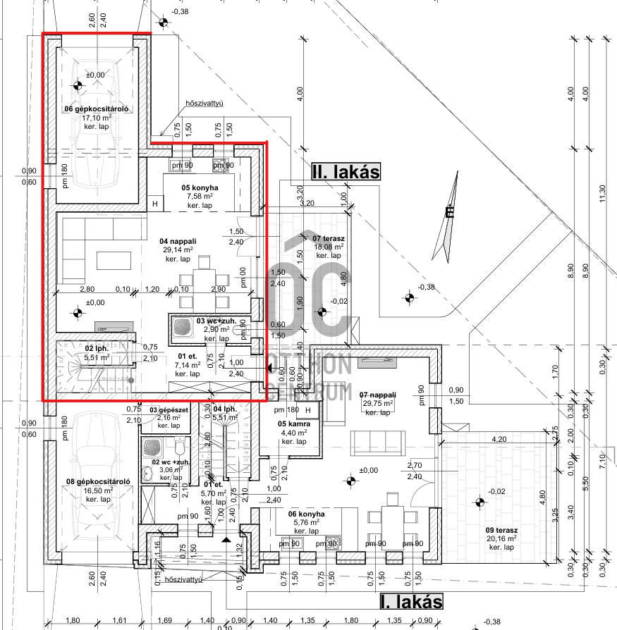
Rooms

entryway
7.14 m²
staircase
5.51 m²
shower
2.9 m²
living room
29.14 m²
kitchen
7.58 m²
garage
17.1 m²
terrace
18.08 m²
staircase
5.19 m²
corridor
6.45 m²
bathroom-toilet
3.62 m²
bedroom
7.5 m²
bedroom
9.23 m²
bedroom
9.81 m²
Pados - Burján Renáta Zita
Pados - Burján Renáta Zita

Credit Expert

From Our Office Listings - Kistarcsa

for sale semi-detached house

Index image
data_sheet.details.realestate.section.main.otthonstart_flag.label
21

for sale family house

Index image
21

for sale family house

Index image
data_sheet.details.realestate.section.main.otthonstart_flag.label
37

for sale family house

Index image
25

eladó lakás

Index image
14

for sale apartment

Index image
data_sheet.details.realestate.section.main.otthonstart_flag.label
20

for sale semi-detached house

Index image
30