data_sheet.details.realestate.section.main.otthonstart_flag.label
For sale new construction semi-detached house, U0048458
Kistarcsa

123,000,000 Ft

320,000 €

  • 111.9m²
  • 4 Rooms

ÚJ ÉPÍTÉSŰ, modern ikerházfél eladó Kistarcsán.

Új építésű ikerház eladó Kistarcsán!

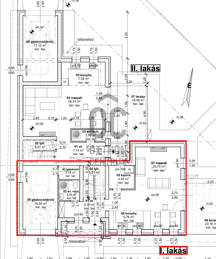
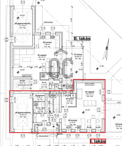
-Nettó 111,9 négyzetméter
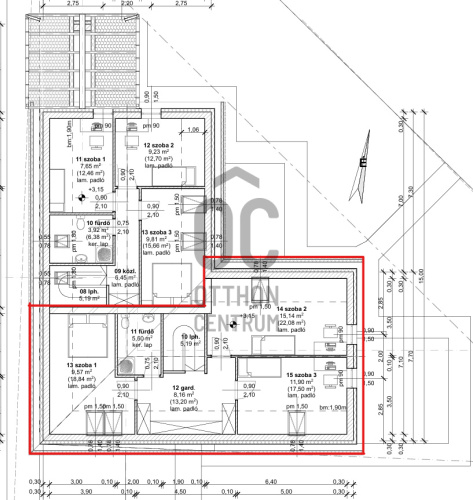
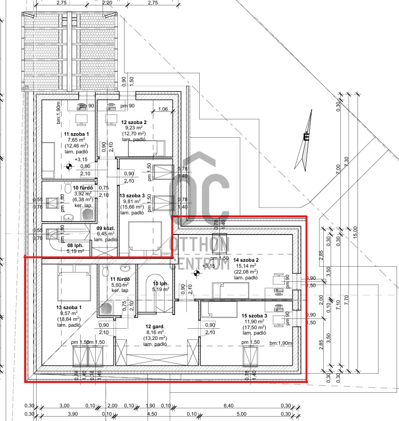
-3 hálószoba + amerikaikonyhás nappali
-Hőszivattyús fűtésrendszer
-3 rétegű hőszigetelt nyílászárók, műanyag tokozatban
-Garázs + 20 négyzetméter terasz

Modern energiatakarékos otthon, csendes kertvárosias környezetben.
Az ingatlan jelenleg még építés alatt áll, így lehetőség van belső igényekhez igazítani.

Ajánljuk családok és pároknak, akik hosszú távú otthont keresnek!

Minőségi kivitelezés, kiváló elrendezés - foglalja le időben Új Otthonát!
Várom megtisztelő hívását a hét bármely napján!

Registration Number

U0048458

Property Details

Sales
for sale
Legal Status
new
Character
house
Construction Method
brick
Net Size
111.9 m²
Gross Size
175.4 m²
Plot Size
730 m²
Size of Terrace / Balcony
20.1 m²
Heating
heat pump
Ceiling Height
280 cm
Number of Levels Within the Property
1
Orientation
East
Condition
Excellent
Condition of Facade
Excellent
Year of Construction
2025
Number of Bathrooms
2
Garage
Included in the price
Garage Spaces
1
Water
Available
Gas
On the street
Electricity
Available
Sewer
Available

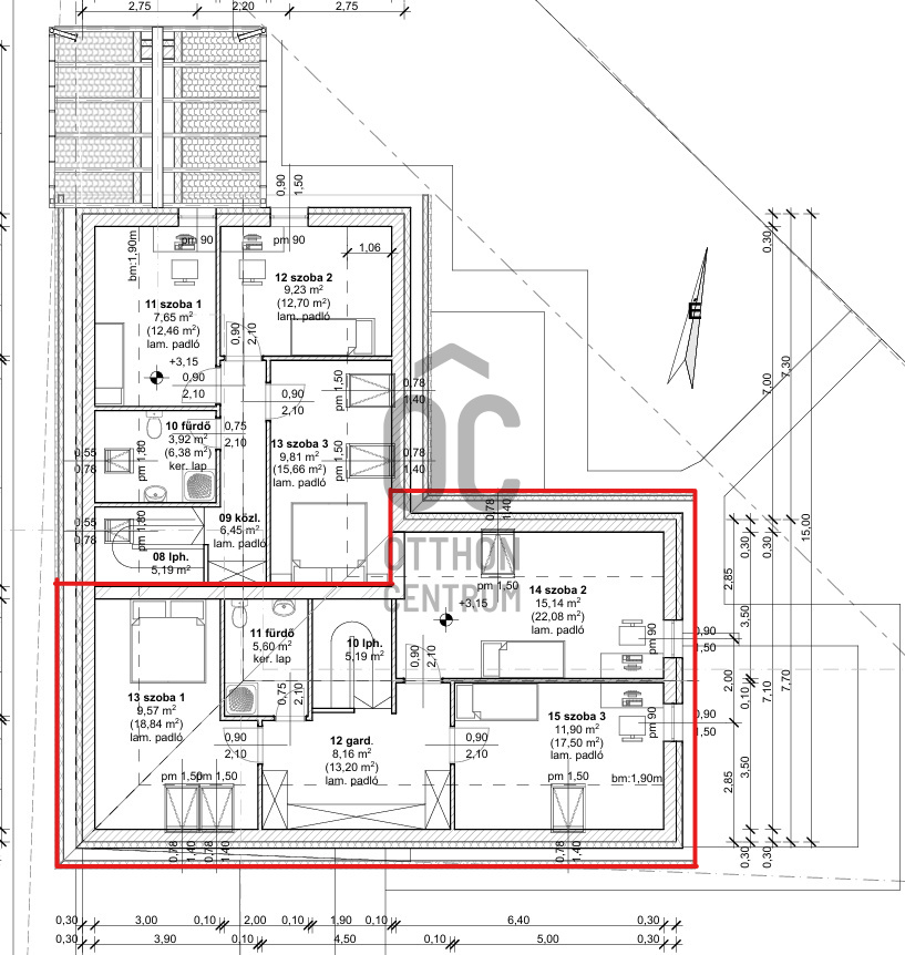
Rooms

living room
29.75 m²
kitchen
5.76 m²
pantry
4.4 m²
staircase
5.51 m²
corridor
5.7 m²
shower
3.06 m²
utility room
2.16 m²
bedroom
15.14 m²
bedroom
11.9 m²
bedroom
9.57 m²
bathroom-toilet
5.6 m²
wardrobe
8.16 m²
garage
16.5 m²
terrace
20.16 m²
Pados - Burján Renáta Zita
Pados - Burján Renáta Zita

Credit Expert

From Our Office Listings - Kistarcsa

for sale semi-detached house

Index image
data_sheet.details.realestate.section.main.otthonstart_flag.label
21

for sale family house

Index image
21

for sale family house

Index image
data_sheet.details.realestate.section.main.otthonstart_flag.label
37

for sale family house

Index image
25

eladó lakás

Index image
14

for sale apartment

Index image
data_sheet.details.realestate.section.main.otthonstart_flag.label
20

for sale semi-detached house

Index image
30