data_sheet.details.realestate.section.main.otthonstart_flag.label
For sale new construction semi-detached house, U0048443
Vácrátót, Szent István-lakópark

96,500,000 Ft

251,000 €

  • 76m²
  • 4 Rooms

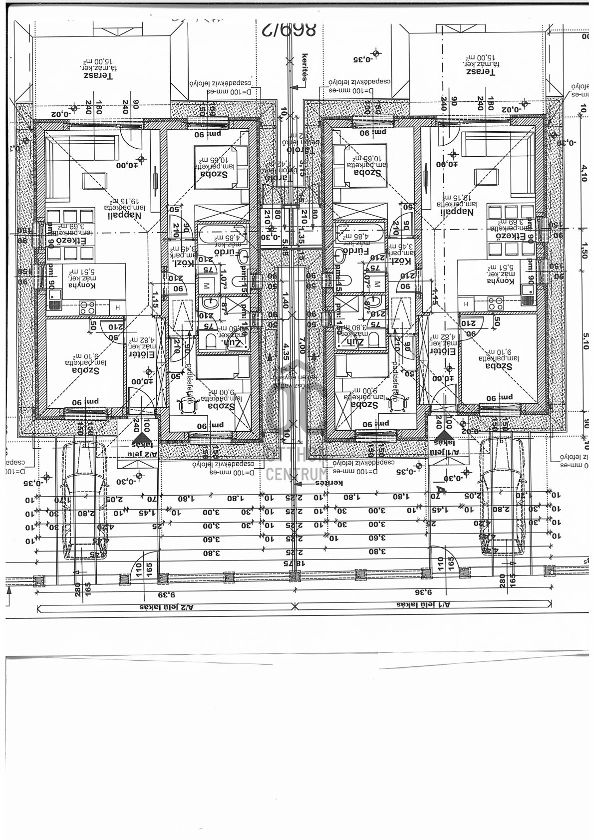
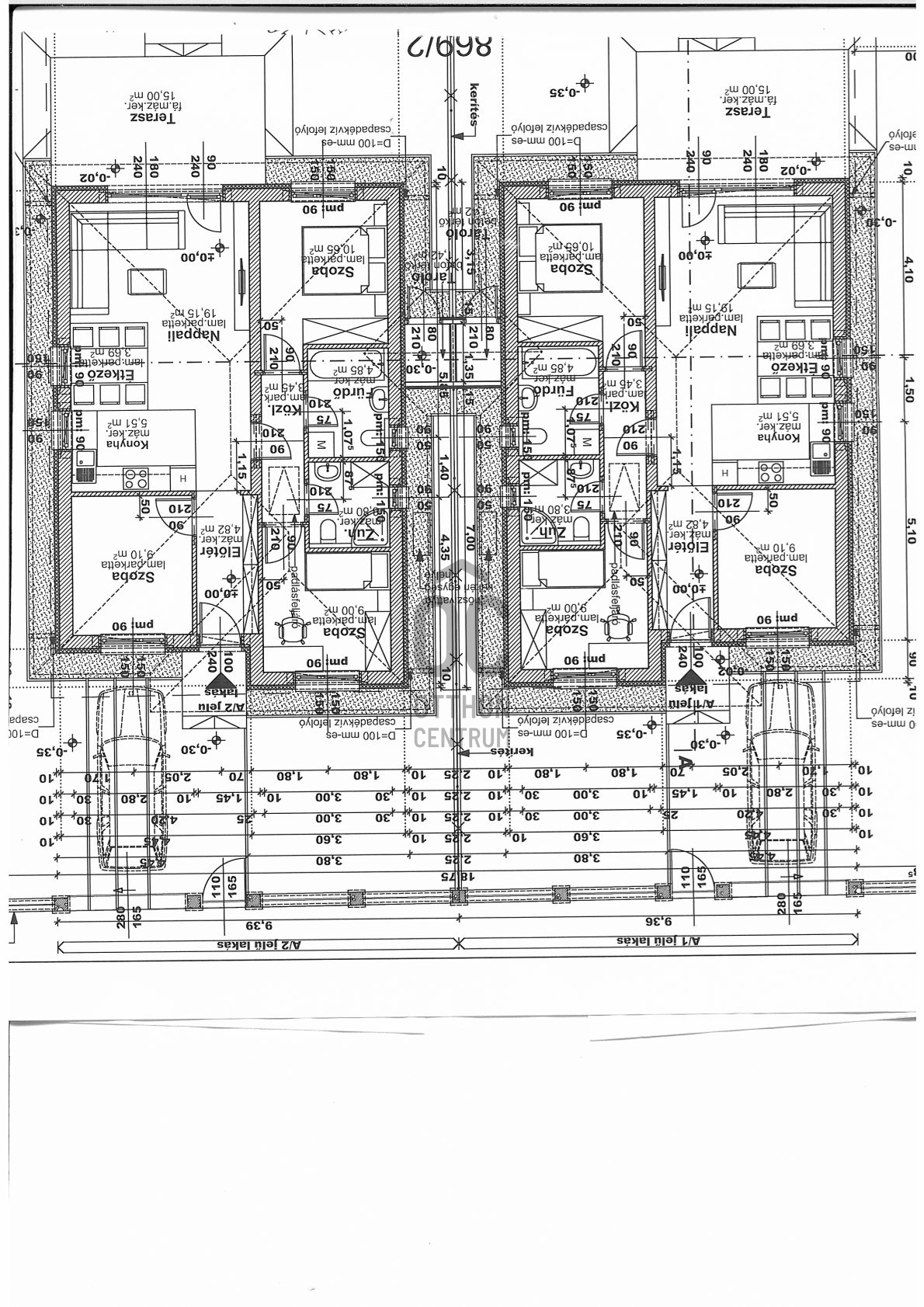
Vácrátót-3 szoba+nappali-ikerház

A Szent-István lakóparkban tárolóval kapcsolódó új építésű ikerház költözhető 2026 tavaszán.

A ház elrendezése

- amerikai konyhás nappali 28 nm-terasz 15nm
- hálószobák 9nm- 9.10 nm- 10.65
- 2 fürdöszba káddal, illetve zuhanyzóval
- közlekedők
- külső tároló
-gépkocsi beálló- térkővel burkolt
- telek mérete 380 nm

Referencákkal rendelkező igényes kivitelezőtől.

Műszaki tartalom:

- hőszivattyús padlófűtés
- 30 cm-es téglafalazat-10 cm-es grafitos kivitelezés
- beton födém-pakolható padlástér
- klíma kiállások minden helyiségben
-H tarifás villanyóra
- napelem előkészítés
- redőny előkészítés
- riasztó előkészítés
- 3 rétegű meleg peremes nyílászárók

A lakópark csendes, nyugod életteret nyújt. A gyerekek elhelyezését Vácrátóton bölcsöde, óvoda, általános iskola biztosítja.
A település szomszédságában található Őrbottyán és Veresegyház szolgáltatásai minden igényt kielégítenek.
Budapest busszal könnyen elérhető.
Egy évben többször is felkereshetjük a Nemzeti Botanikus Kertet.

Registration Number

U0048443

Property Details

Sales
for sale
Legal Status
new
Character
house
Construction Method
brick
Net Size
76 m²
Gross Size
75 m²
Plot Size
380 m²
Heating
heat pump
Ceiling Height
270 cm
Orientation
East
Condition
Excellent
Condition of Facade
Excellent
Neighborhood
quiet
Year of Construction
2025
Number of Bathrooms
2
Water
Available
Electricity
Available
Sewer
Available

Rooms

living room
19 m²
kitchen
5.5 m²
dining room
4 m²
room
9.1 m²
room
9 m²
room
10.65 m²
bathroom-toilet
4.85 m²
shower
3.8 m²
corridor
3.45 m²
entryway
3.82 m²
storage
2.5 m²
Bán Marianna
Bán Marianna

Credit Expert

From Our Office Listings - Vác

for sale panel apartment

Index image
data_sheet.details.realestate.section.main.otthonstart_flag.label
29

for sale family house

Index image
data_sheet.details.realestate.section.main.otthonstart_flag.label
19

for sale family house

Index image
data_sheet.details.realestate.section.main.otthonstart_flag.label
20

for sale family house

Index image
data_sheet.details.realestate.section.main.otthonstart_flag.label
12

for sale family house

Index image
20

for sale panel apartment

Index image
data_sheet.details.realestate.section.main.otthonstart_flag.label
15

for sale family house

Index image
data_sheet.details.realestate.section.main.otthonstart_flag.label
29

for sale family house

Index image
data_sheet.details.realestate.section.main.otthonstart_flag.label
18

for sale apartment

Index image
data_sheet.details.realestate.section.main.otthonstart_flag.label
21

for sale family house

Index image
data_sheet.details.realestate.section.main.otthonstart_flag.label
22

for sale family house

Index image
data_sheet.details.realestate.section.main.otthonstart_flag.label
29