data_sheet.details.realestate.section.main.otthonstart_flag.label
For sale new construction family house,
U0048330
Kiskunlacháza
82,464,000 Ft
212,000 €
- 103m²
- 5 Rooms




Új Építésű, Energiatakarékos Otthon Kiskunlacháza Fejlődő Részén!
Nappali + 4 hálószobás, modern kialakítás – kizárólagos kerthasználattal, 2025 IV. negyedévi átadással!
Ha olyan otthont keres, amely a kényelem, a minőség és a fenntarthatóság hármasát kínálja, ne menjen tovább! Ez a kiváló műszaki tartalommal készülő, új építésű családi ház tökéletes választás családoknak, pároknak vagy akár tudatos befektetőknek is.
Főbb jellemzők:
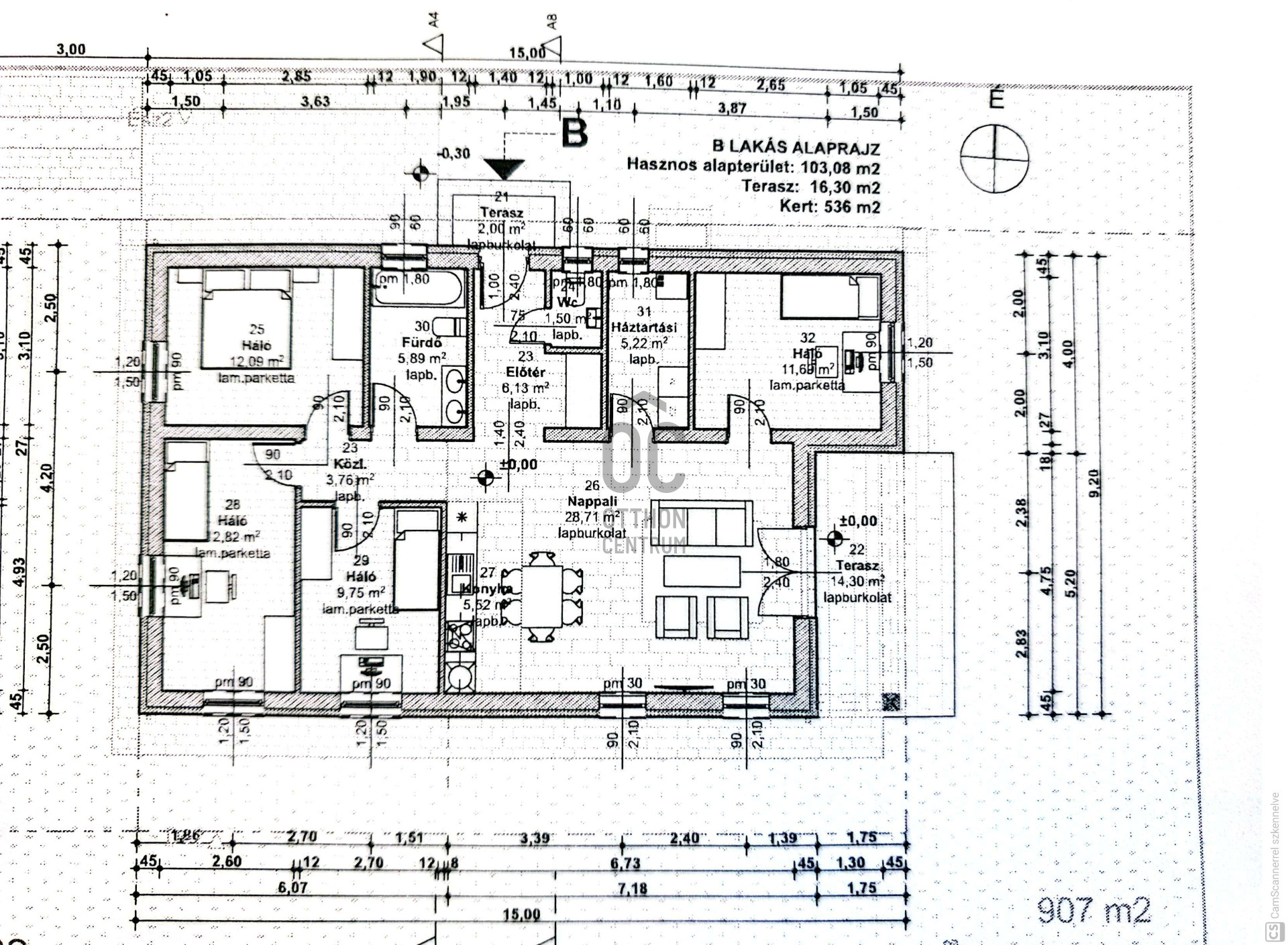
Lakótér: 103,08 m²
Elosztás: Nappali + 4 tágas hálószoba
Terasz: kertkapcsolatos, ideális pihenéshez
Telekrész: 536 m² saját, kizárólagos használatban
Teljesen különálló épület – nincs ikerház, nincs közös fal!
Átadás: 2025. IV. negyedév – még van lehetőség egyedi belső kialakításra!
Modern technológia, hosszú távú megtérülés:
Porotherm 30 X-THERM tégla + 15 cm grafitos hőszigetelés
Háromrétegű, hőszigetelt nyílászárók
Austrotherm padlószigetelés + cellulóz födém szigetelés
Hőszivattyús fűtésrendszer (radiátor + padlófűtés)
Helyiségenkénti termosztátos szabályozás
Bramac tetőfedés, biztonsági fóliázással
Alacsony fenntartási költségek, energiahatékony működés!
Kiváló lokáció:
Kiskunlacháza legújabb, folyamatosan fejlődő lakóövezetében
Csendes környék, mégis mindenhez közel:
✅ Iskola
✅ Bevásárlási lehetőségek
✅ Orvosi rendelő
✅ Közlekedés pár perc távolságra
Otthon és befektetés egyben!
Ez az ingatlan CSOK Plusz és államilag támogatott hitelek igénybevételével is megvásárolható, így nemcsak kényelmes otthon, hanem biztos értékmegőrző befektetés is egy dinamikusan fejlődő térségben.
Ne várjon a kereslet csúcsáig – foglalja le időben új otthonát, és alakítsa saját ízlése szerint!
Keressen bizalommal további információért és személyes konzultációért!
Nappali + 4 hálószobás, modern kialakítás – kizárólagos kerthasználattal, 2025 IV. negyedévi átadással!
Ha olyan otthont keres, amely a kényelem, a minőség és a fenntarthatóság hármasát kínálja, ne menjen tovább! Ez a kiváló műszaki tartalommal készülő, új építésű családi ház tökéletes választás családoknak, pároknak vagy akár tudatos befektetőknek is.
Főbb jellemzők:
Lakótér: 103,08 m²
Elosztás: Nappali + 4 tágas hálószoba
Terasz: kertkapcsolatos, ideális pihenéshez
Telekrész: 536 m² saját, kizárólagos használatban
Teljesen különálló épület – nincs ikerház, nincs közös fal!
Átadás: 2025. IV. negyedév – még van lehetőség egyedi belső kialakításra!
Modern technológia, hosszú távú megtérülés:
Porotherm 30 X-THERM tégla + 15 cm grafitos hőszigetelés
Háromrétegű, hőszigetelt nyílászárók
Austrotherm padlószigetelés + cellulóz födém szigetelés
Hőszivattyús fűtésrendszer (radiátor + padlófűtés)
Helyiségenkénti termosztátos szabályozás
Bramac tetőfedés, biztonsági fóliázással
Alacsony fenntartási költségek, energiahatékony működés!
Kiváló lokáció:
Kiskunlacháza legújabb, folyamatosan fejlődő lakóövezetében
Csendes környék, mégis mindenhez közel:
✅ Iskola
✅ Bevásárlási lehetőségek
✅ Orvosi rendelő
✅ Közlekedés pár perc távolságra
Otthon és befektetés egyben!
Ez az ingatlan CSOK Plusz és államilag támogatott hitelek igénybevételével is megvásárolható, így nemcsak kényelmes otthon, hanem biztos értékmegőrző befektetés is egy dinamikusan fejlődő térségben.
Ne várjon a kereslet csúcsáig – foglalja le időben új otthonát, és alakítsa saját ízlése szerint!
Keressen bizalommal további információért és személyes konzultációért!
Registration Number
U0048330
Property Details
Sales
for sale
Legal Status
new
Character
house
Construction Method
brick
Net Size
103 m²
Gross Size
130 m²
Plot Size
536 m²
Size of Terrace / Balcony
14.3 m²
Heating
heat pump
Ceiling Height
259 cm
Orientation
South-West
Condition
Excellent
Condition of Facade
Excellent
Neighborhood
quiet, green
Year of Construction
2025
Number of Bathrooms
1
Water
Available
Electricity
Available
Sewer
Available
Rooms
terrace
2 m²
entryway
6.13 m²
toilet
1.5 m²
utility room
5.22 m²
room
11.69 m²
living room
28.71 m²
open-plan kitchen and dining room
5.52 m²
bathroom-toilet
5.89 m²
corridor
3.76 m²
room
12.09 m²
room
12.82 m²
room
9.75 m²
terrace
13.3 m²

Joó Krisztina
Credit Expert