data_sheet.details.realestate.section.main.otthonstart_flag.label
For sale new construction semi-detached house,
U0048228
Debrecen, Felső-Józsa
99,350,000 Ft
256,000 €
- 99m²
- 4 Rooms



Fedezze fel új otthonát Debrecenben – 4 szobás, A+ energetikai besorolású családi ház várja Önt Felső-Józsán!
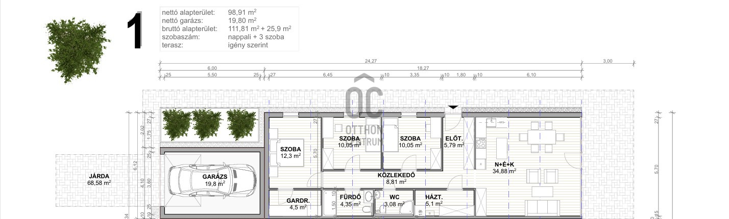
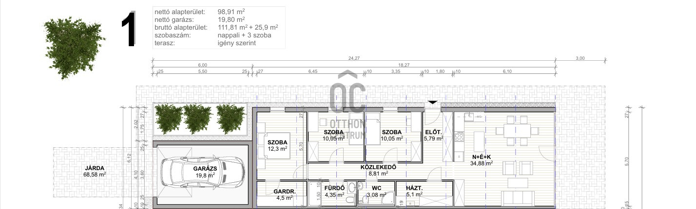
Debrecen Felső-Józsa városrészében egy új építésű, energiatakarékos családi ikerház, 977 m2-es telekkel eladó ! Ha szeretne biztos lenni abban, hogy otthona minimális rezsiköltséggel hosszú távon fenntartható, akkor ez a hirdetés önnek szól! Az ingatlan nettó 99 m2 lakótérrel + 20 m2-es garázzsal rendelkezik . 3 szoba+ amerikai konyhás nappali+ étkező, dupla fürdőszoba, tágas terek jellemzik, kiváló választás akár nagycsaládosok részére is!
Az egyedi tervezésű, nagy üvegfelülethez nagy belmagasság párosul a nappali-konyha -étkező részen. Fűtése hőszivattyúval történik, amely a legmodernebb technológiát képviseli, így nemcsak környezetbarát, hanem gazdaságos megoldást is nyújt. A hűtésről klímaberendezés gondoskodik, amely a nyári hónapokban kellemes hőmérsékletet biztosít. A 3 fázis bevezetésre kerül, így kellő napelemekkel akár teljesen 0-ás rezsiköltséggel is fenntartható! Az ikerházak önálló falazattal , hangszigeteléssel ellátva.
Közlekedési lehetőségek kiválóak, az autópálya pillanatok alatt elérhető. Debrecen központja mindössze néhány percnyi autóútra található, tömegközlekedés is a közelben. A városrész jól ellátott, élelmiszerüzletek, bevásárló központok, iskolák, óvodák és minden más üzlet a központban.
Csok+-ra alkalmas, hitelezhető! Költözzön szeretteivel már idén ősszel!
Ez az ingatlan nem csupán egy új otthon, hanem egy életstílus, amely a modern kényelmet és a természet közelségét ötvözi minimális fenntartási költséggel!
További felvilágosításért várom megkeresését!
Debrecen, Józsa, eladó, ház, ikerház, 4 szoba, új építésű, A+, energiatakarékos, földszintes
Az egyedi tervezésű, nagy üvegfelülethez nagy belmagasság párosul a nappali-konyha -étkező részen. Fűtése hőszivattyúval történik, amely a legmodernebb technológiát képviseli, így nemcsak környezetbarát, hanem gazdaságos megoldást is nyújt. A hűtésről klímaberendezés gondoskodik, amely a nyári hónapokban kellemes hőmérsékletet biztosít. A 3 fázis bevezetésre kerül, így kellő napelemekkel akár teljesen 0-ás rezsiköltséggel is fenntartható! Az ikerházak önálló falazattal , hangszigeteléssel ellátva.
Közlekedési lehetőségek kiválóak, az autópálya pillanatok alatt elérhető. Debrecen központja mindössze néhány percnyi autóútra található, tömegközlekedés is a közelben. A városrész jól ellátott, élelmiszerüzletek, bevásárló központok, iskolák, óvodák és minden más üzlet a központban.
Csok+-ra alkalmas, hitelezhető! Költözzön szeretteivel már idén ősszel!
Ez az ingatlan nem csupán egy új otthon, hanem egy életstílus, amely a modern kényelmet és a természet közelségét ötvözi minimális fenntartási költséggel!
További felvilágosításért várom megkeresését!
Debrecen, Józsa, eladó, ház, ikerház, 4 szoba, új építésű, A+, energiatakarékos, földszintes
Registration Number
U0048228
Property Details
Sales
for sale
Legal Status
new
Character
house
Construction Method
proconcept
Net Size
99 m²
Gross Size
143 m²
Plot Size
977 m²
Heating
values.realestate.futes.26
Ceiling Height
250 cm
Orientation
South
Condition
Excellent
Condition of Facade
Excellent
Neighborhood
quiet, good transport
Year of Construction
2025
Number of Bathrooms
2
Garage
Included in the price
Water
Available
Electricity
Available
Sewer
Available
Rooms
open-plan kitchen and living room
34.9 m²
room
12.3 m²
room
10.5 m²
room
10.5 m²
bathroom-toilet
4.35 m²
bathroom-toilet
3.8 m²
wardrobe
4.5 m²
utility room
5.1 m²

Czellér András
Credit Expert