data_sheet.details.realestate.section.main.otthonstart_flag.label
For sale new construction family house,
U0048017
Diósd, Diósdliget
135,000,000 Ft
347,000 €
- 277m²
- 5 Rooms


















Diósd Rózsadombján félkész ház eladó!
Méltán kedvelt és látvány szempontjából is kivételes környezetben kínálunk egy 2+ tetőteraszos (ennek egy része zöld terasz) családi házat.
A bruttó 277nm-es (garázzsal együtt) ingatlan építési munkálatai 2022-ben kezdődtek, melynek készültségi szintje jelenleg 50%-os.
Az időközben történt munkálatok miatt változások:
- magasabb nyílászáró nyílások kialakítása (ha netán a vevő más redőnytokot, vagy a szabványtól eltérő beltéri ajtókat kívánna beépíteni)
- tetőterasznál plusz WC helyiség kialakítás,
- telken plusz garázsépítési lehetőség.
A tervezett fűtés hószivattyús rendszerrel és padlófűtéses technológiával kerül kivitelezésre.
Ingatlan jellemzői:
- telek méret 558nm (összközműves)
- 2 beállásos garázs,
- tárolók a garázs szinten,
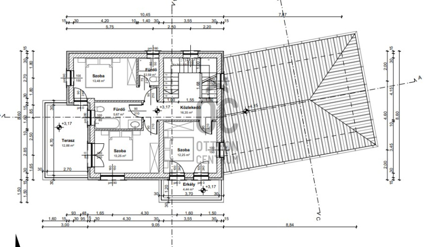
- földszint: nappali, szoba, konyha-étkező, közlekedő, gardrób, előtér, terasz,
- emelet: 3 szoba, közlekedő,
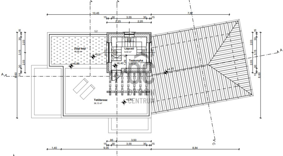
- tetőszint: teakonyha, zöld tető, tetőterasz.
Egyéb jellemzők:
- övezet: Lke-4,
- maximális beépítés: 30%,
- tervezett beépítés: 145,14m2 (26,01%)
- minimális zöldterület: 50%,
- tervezett zöldterület: 288,08m2 (51,63%),
- maximális épületmagasság: 5,5m,
- tervezett épületmagasság: 5,49m.
Méltán kedvelt és látvány szempontjából is kivételes környezetben kínálunk egy 2+ tetőteraszos (ennek egy része zöld terasz) családi házat.
A bruttó 277nm-es (garázzsal együtt) ingatlan építési munkálatai 2022-ben kezdődtek, melynek készültségi szintje jelenleg 50%-os.
Az időközben történt munkálatok miatt változások:
- magasabb nyílászáró nyílások kialakítása (ha netán a vevő más redőnytokot, vagy a szabványtól eltérő beltéri ajtókat kívánna beépíteni)
- tetőterasznál plusz WC helyiség kialakítás,
- telken plusz garázsépítési lehetőség.
A tervezett fűtés hószivattyús rendszerrel és padlófűtéses technológiával kerül kivitelezésre.
Ingatlan jellemzői:
- telek méret 558nm (összközműves)
- 2 beállásos garázs,
- tárolók a garázs szinten,
- földszint: nappali, szoba, konyha-étkező, közlekedő, gardrób, előtér, terasz,
- emelet: 3 szoba, közlekedő,
- tetőszint: teakonyha, zöld tető, tetőterasz.
Egyéb jellemzők:
- övezet: Lke-4,
- maximális beépítés: 30%,
- tervezett beépítés: 145,14m2 (26,01%)
- minimális zöldterület: 50%,
- tervezett zöldterület: 288,08m2 (51,63%),
- maximális épületmagasság: 5,5m,
- tervezett épületmagasság: 5,49m.
Registration Number
U0048017
Property Details
Sales
for sale
Legal Status
new
Character
house
Construction Method
brick
Net Size
277 m²
Gross Size
277 m²
Plot Size
558 m²
Size of Terrace / Balcony
60 m²
Heating
values.realestate.futes.26
Ceiling Height
280 cm
Number of Levels Within the Property
4
Orientation
South
View
city view, river or lake view, Green view
Condition
Excellent
Condition of Facade
Excellent
Neighborhood
quiet, green
Year of Construction
2021
Number of Bathrooms
3
Garage
Included in the price
Garage Spaces
2
Number of Covered Parking Spots
1
Storage
Independent
Rooms
room
1 m²
study
1 m²
bathroom-toilet
1 m²
entryway
1 m²
kitchen
1 m²
terrace
1 m²
bathroom
1 m²
balcony
1 m²

Horváth Szabina
Credit Expert