data_sheet.details.realestate.section.main.otthonstart_flag.label
For sale new construction family house,
U0047765
Keszthely, Északi városrész
114,900,000 Ft
296,000 €
- 175m²
- 6 Rooms


























MODERN KÉTSZINTES SORHÁZI INGATLAN KESZTHELYEN – EMELT SZINTŰ SZERKEZETKÉSZ VAGY KULCSRAKÉSZ ÁLLAPOTBAN IS ELÉRHETŐ!
CSAK AZ OTTHON CENTRUM KIEMELT KÍNÁLATÁBAN !
Ha egy tágas, kényelmes, jövőbe mutató otthont keres Keszthely kedvelt részén, ne menjen tovább ! Eladásra kínálom Keszthely városközponthoz közeli részén , egy sorház bal szélső lakóegységét !
Ez a 2024-ben épült, emelt szintű szerkezetkész ingatlan remek alapot biztosít ahhoz, hogy saját ízlése szerint alakíthassa ki álmai otthonát.
Ez a hirdetés Önöknek szól, amennyiben modern, tágas, jól megtervezett ingatlanban képzelik el jövőjüket – és értékelik a praktikus, kis karbantartást igénylő telekméretet.
Az ingatlan tökéletes választás lehet otthont nyújtva nagy családosok számára , többgeneráció zavartalan együttélésre vagy akár nyaralóként használva is , ugyanakkor befektetési célra is alkalmas.
Keszthely központja és a Balaton part elérhető sétatávolságra található.
Továbbá a környéken könnyen elérhető távolságra iskola, óvoda, orvosi rendelő, bevásárló központok, buszmegálló .
FŐBB JELLEMZŐK – 114,9 M Ft-ért (emelt szintű szerkezetkész állapot):
-acélszerkezetes építésmód
-szigetelt
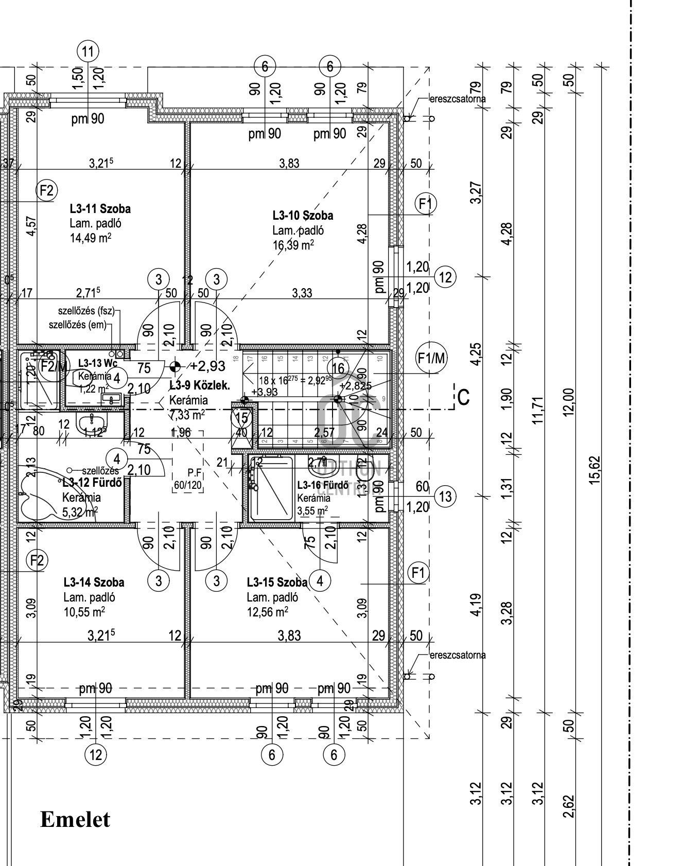
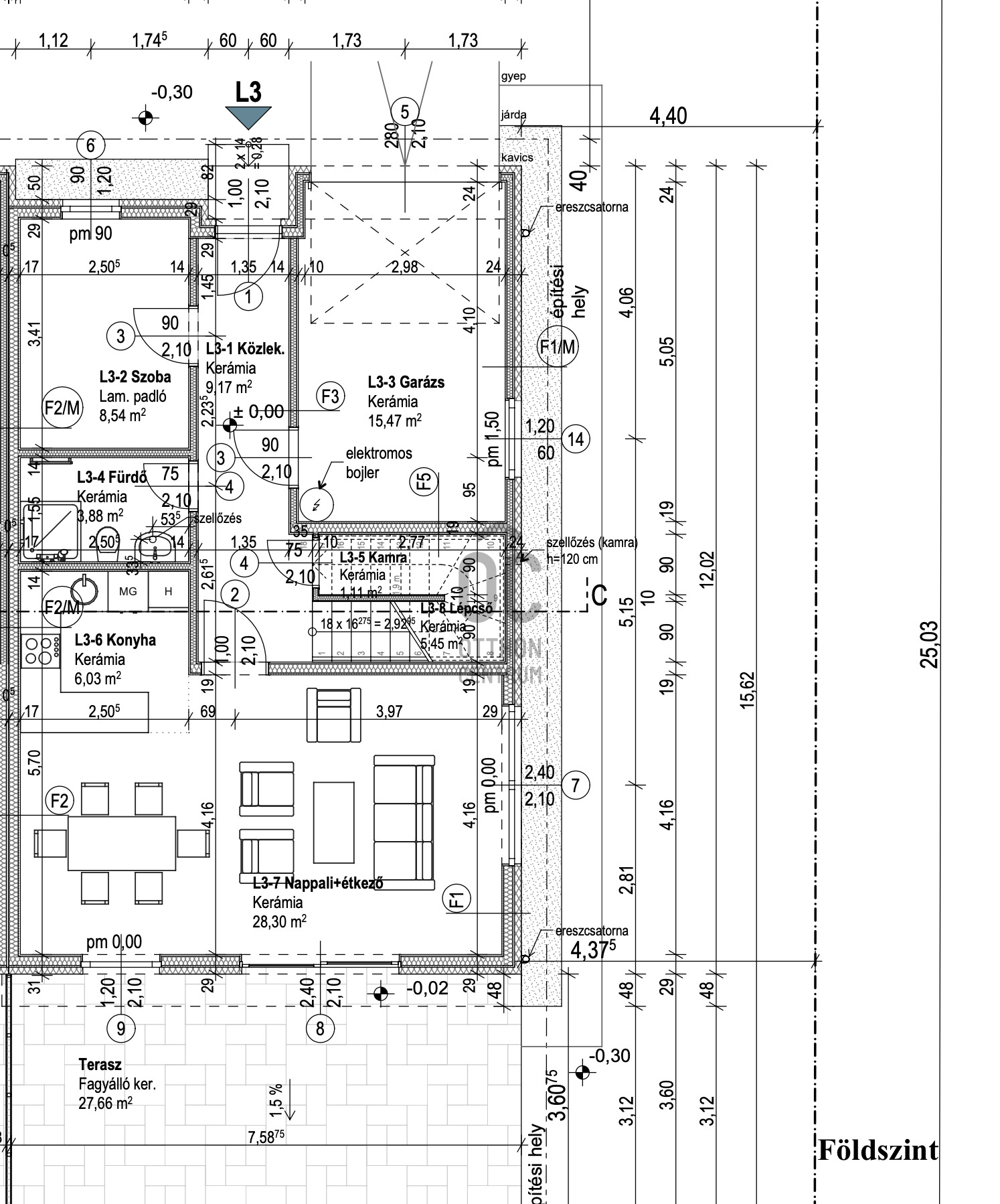
- Lakótér: 150 m² + 27,66 m² fedett terasz + 15,47 m² garázs elektromos garázskapuval
-két szintes , sorházi ingatlan
- Földszinten:
▫️ dny -i fekvésű amerikai konyhás nappali + étkező
▫️ kamra
▫️ 1 szoba
▫️ 1 fürdőszoba
▫️ fűtött garázs
▫️ közlekedő
▫️ 27,66 m²-es fedett terasz pergolával – ideális pihenéshez, kerti vacsorákhoz
-Emeleten:
▫️ 1 szoba saját fürdőszobával
▫️ további 3 hálószoba
▫️ 1 fürdőszoba
▫️ külön WC
-Parkolás: fűtött garázs kialakítással + 2 felszíni autóbeálló
-Telek területe: 300 m² – füvesített, könnyen karbantartható
- gépészet kialakítva
-fűtés : padlófűtéses kialakítással
-3 rétegű nyílászárók , motoros alumínium redőnyökkel
- 27,66 m2 terasz bioklimatikus pergolával fedett , amely akár üvegezhető is
⸻
KULCSRAKÉSZ VÁLTOZAT – 126,9 M Ft
Az ár továbbá tartalmazza:
✔ Hőszivattyú beszerelését
✔ 5kW Napelemrendszer (szaldós elszámolással ) kiépítését – modern, gazdaságos üzemeltetés
✔Szellőzés kialakítása Vent Axia Centra TH100 típusú elszívó ventilátorokkal.
✔ Hidegburkolatok – 10.500 Ft/m² értékhatárig szabadon választhatók
✔ Laminált padlóburkolat a hálószobákban
✔ Egyedi igények szerint választható belső ajtók
A belváros közelsége, az energiatakarékos kialakítás és a testre szabhatóság együttesen teszik igazán vonzóvá ezt a lehetőséget.
Érdeklődés esetén keressen bizalommal, és beszéljük át, hogyan lehet ez az ingatlan az Ön új otthona!
Ha egy tágas, kényelmes, jövőbe mutató otthont keres Keszthely kedvelt részén, ne menjen tovább ! Eladásra kínálom Keszthely városközponthoz közeli részén , egy sorház bal szélső lakóegységét !
Ez a 2024-ben épült, emelt szintű szerkezetkész ingatlan remek alapot biztosít ahhoz, hogy saját ízlése szerint alakíthassa ki álmai otthonát.
Ez a hirdetés Önöknek szól, amennyiben modern, tágas, jól megtervezett ingatlanban képzelik el jövőjüket – és értékelik a praktikus, kis karbantartást igénylő telekméretet.
Az ingatlan tökéletes választás lehet otthont nyújtva nagy családosok számára , többgeneráció zavartalan együttélésre vagy akár nyaralóként használva is , ugyanakkor befektetési célra is alkalmas.
Keszthely központja és a Balaton part elérhető sétatávolságra található.
Továbbá a környéken könnyen elérhető távolságra iskola, óvoda, orvosi rendelő, bevásárló központok, buszmegálló .
FŐBB JELLEMZŐK – 114,9 M Ft-ért (emelt szintű szerkezetkész állapot):
-acélszerkezetes építésmód
-szigetelt
- Lakótér: 150 m² + 27,66 m² fedett terasz + 15,47 m² garázs elektromos garázskapuval
-két szintes , sorházi ingatlan
- Földszinten:
▫️ dny -i fekvésű amerikai konyhás nappali + étkező
▫️ kamra
▫️ 1 szoba
▫️ 1 fürdőszoba
▫️ fűtött garázs
▫️ közlekedő
▫️ 27,66 m²-es fedett terasz pergolával – ideális pihenéshez, kerti vacsorákhoz
-Emeleten:
▫️ 1 szoba saját fürdőszobával
▫️ további 3 hálószoba
▫️ 1 fürdőszoba
▫️ külön WC
-Parkolás: fűtött garázs kialakítással + 2 felszíni autóbeálló
-Telek területe: 300 m² – füvesített, könnyen karbantartható
- gépészet kialakítva
-fűtés : padlófűtéses kialakítással
-3 rétegű nyílászárók , motoros alumínium redőnyökkel
- 27,66 m2 terasz bioklimatikus pergolával fedett , amely akár üvegezhető is
⸻
KULCSRAKÉSZ VÁLTOZAT – 126,9 M Ft
Az ár továbbá tartalmazza:
✔ Hőszivattyú beszerelését
✔ 5kW Napelemrendszer (szaldós elszámolással ) kiépítését – modern, gazdaságos üzemeltetés
✔Szellőzés kialakítása Vent Axia Centra TH100 típusú elszívó ventilátorokkal.
✔ Hidegburkolatok – 10.500 Ft/m² értékhatárig szabadon választhatók
✔ Laminált padlóburkolat a hálószobákban
✔ Egyedi igények szerint választható belső ajtók
A belváros közelsége, az energiatakarékos kialakítás és a testre szabhatóság együttesen teszik igazán vonzóvá ezt a lehetőséget.
Érdeklődés esetén keressen bizalommal, és beszéljük át, hogyan lehet ez az ingatlan az Ön új otthona!
Registration Number
U0047765
Property Details
Sales
for sale
Legal Status
new
Character
house
Construction Method
prefabricated
Net Size
175 m²
Gross Size
190 m²
Plot Size
300 m²
Size of Terrace / Balcony
27.6 m²
Heating
heat pump
Ceiling Height
270 cm
Number of Levels Within the Property
2
Orientation
South-West
Condition
Excellent
Condition of Facade
Excellent
Year of Construction
2024
Number of Bathrooms
3
Garage
Included in the price
Garage Spaces
1
Water
Available
Gas
On the street
Electricity
Available
Sewer
Available
Rooms
corridor
9.17 m²
room
8.54 m²
garage
15.47 m²
bathroom-toilet
3.88 m²
pantry
1.11 m²
kitchen
6.03 m²
open-plan living and dining room
28.3 m²
staircase
5.45 m²
corridor
7.33 m²
room
16.39 m²
room
14.49 m²
bathroom
5.32 m²
toilet-washbasin
1.22 m²
room
10.55 m²
room
12.56 m²
bathroom-toilet
3.55 m²