2,900,000,000 Ft
7,446,000 €
- 650m²
- 6 Rooms
Páratlan, minden igényt kielégítő újépítésű villa a XII. kerületben!
Az utóbbi években a luxus új szintje kezd kibontakozni belföldön is és íme a legújabb példája.
A telek a 12. kerület Kútvölgyi részén, csendes mellék utcájában található és páratlan előnye, hogy 2 utcafronttal rendelkezik.
A vendégek számára a felső utcában került kialakításra egy vendégparkoló, ahonnan a ház gyalogosan is megközelíthető.
Az épület 650 m2 ami 350 m2-nyi terasszal társul es egy 1500 m2-es telken helyezkedik el.
A főbejárat az alsó utcáról nyílik, és már a kapun begurulva is kivételes építészeti megoldásokkal találkozunk.
A kert épített travertin mészkővel borított támfalai már a kapunk begurulva jelzik a kivételes igényességet. A ház különleges modern mégis otthonos külső megjelenését a ház külső fundermax burkolata biztosítja, amely a legújabb homlokzat burkolati technológiák egyike. A kubatúra nem a szokványos kocka minimál ház, mind alakzatban, mind a színezésben van egy kis játék.
A kivételes japánkert távolkeleti növényei pedig egyedülállóan harmónikus összhatást biztosítanak az ott tartózkodók számára.
Az épület összességében 5 szintből áll és a telek adottságainak köszönhetően szinteltolással került kialakításra, így több épületszint is rendelkezik kertszinttel - valamint a lakótér illetve a közösségi és funkcionális terek, teljesen elkülönülnek egymástól (akár több generáció is kényelmesen elfér).
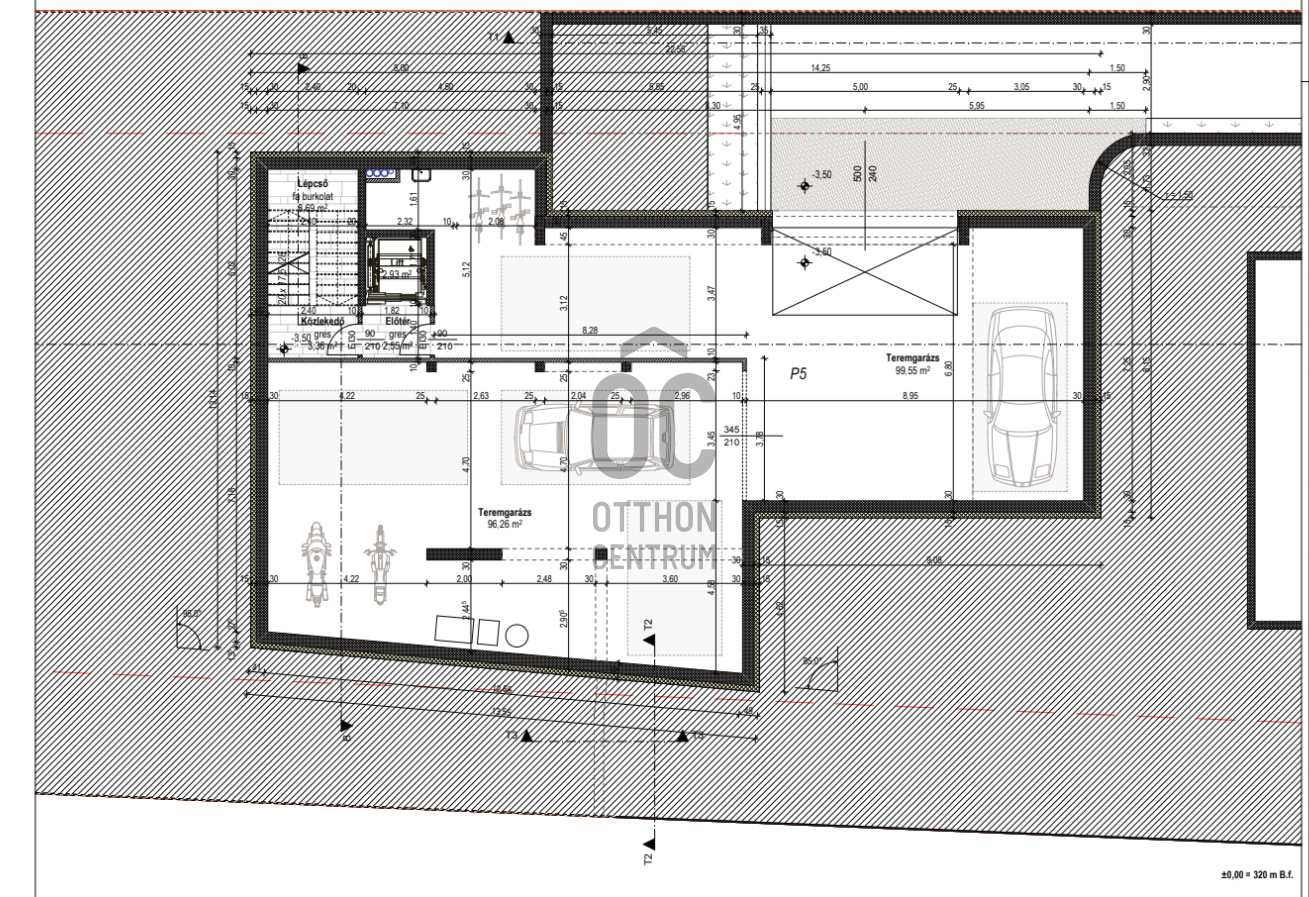
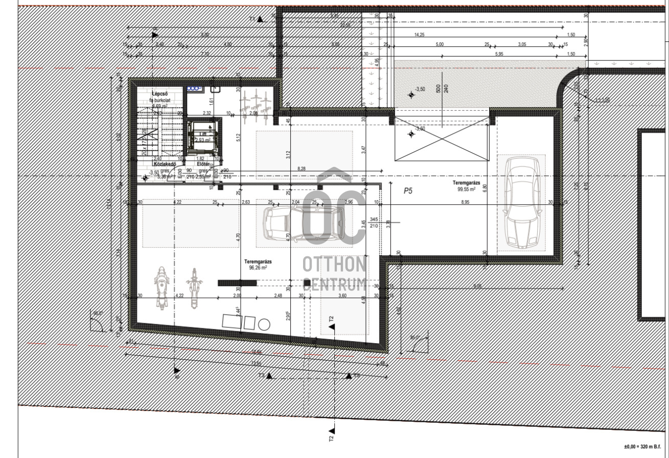
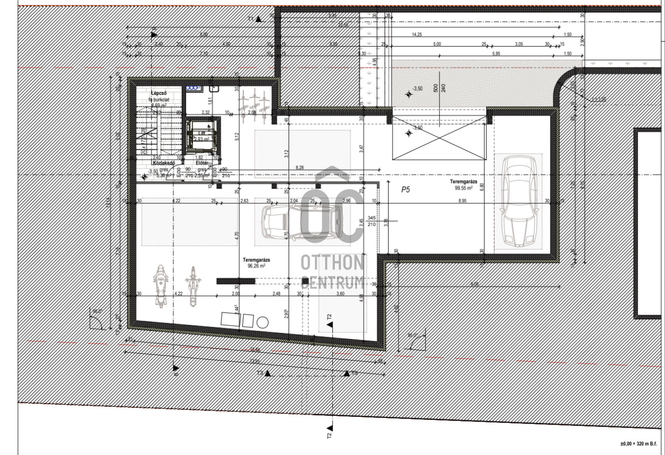
A garázsban 5 SUV is kényelmesen elfér, és a garázsszinten helyet kap egy további helyiség, amely igény szerint Wellness helyiség is lehet Jacuzzival és szaunával.
Az épületen belül a lakók LIFTTEL is közlekedhetnek,amellyel az összes épületszint elérhető.
Bár valószínűleg a garázsszintre történő megérkezés prioritást fog élvezni, de a gyalogos főbejárati ajtó is kiemelt szerepet kapott a tervezés során - az egyedileg gyártott bejárati ajtó, majd 3 méter magas!
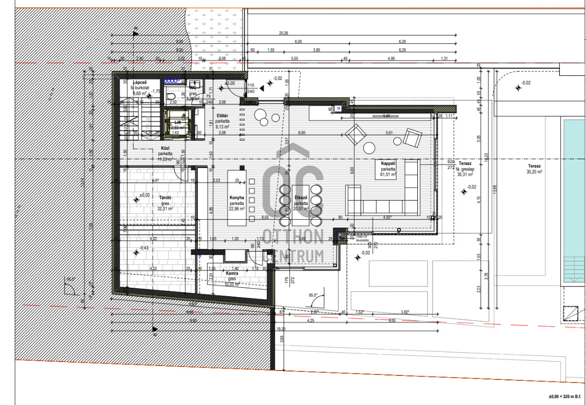
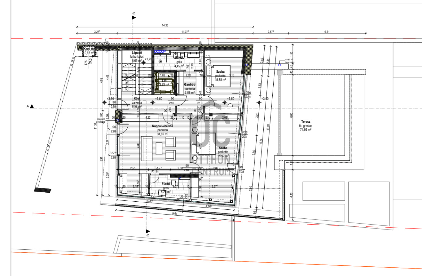
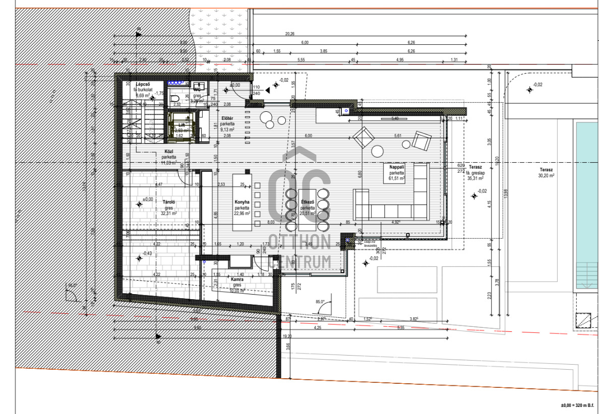
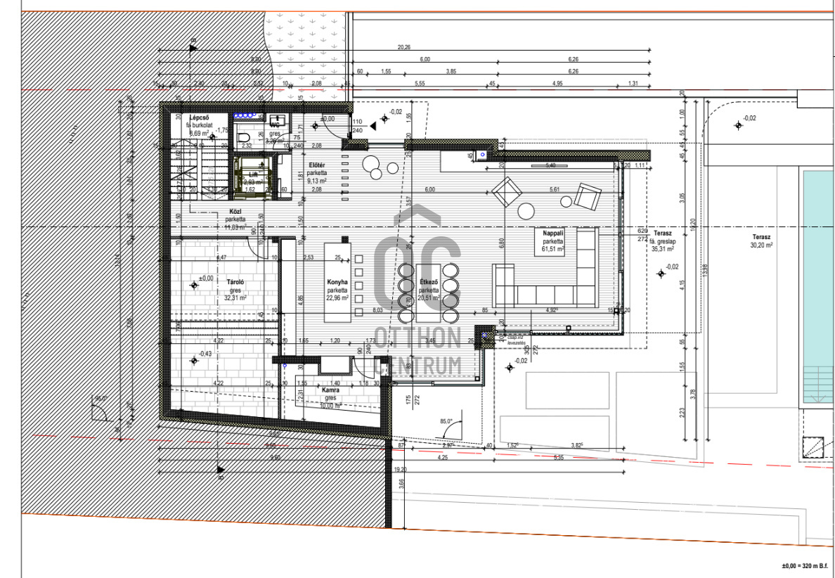
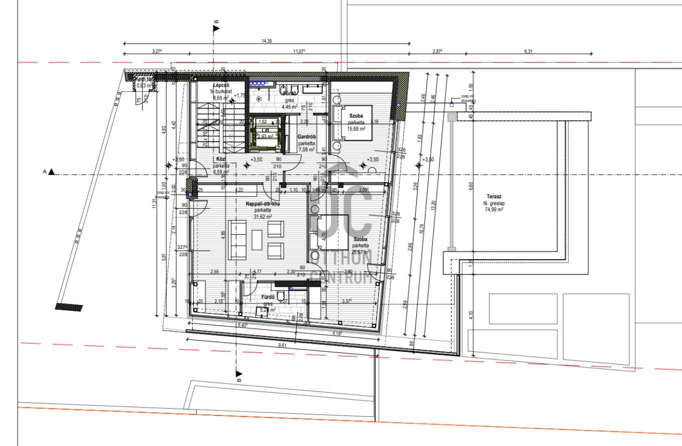
A földszinten kialakított konyha-nappali - étkező, több mint 100 m2- az élhető terekben itt nincs hiány!
A térérzetet tovább növeli az egyedülálló 330 cm-es belmagasság!
A hatalmas konyha-nappali térből kiléphetünk az óriás teraszra, ahol rövidesen feltöltésére kerül a feszített víztükrű Infinity medence.
A medence intimitása érdekében kialakításra került egy kerti pergola, a másik szomszéd felől pedig a buja növényzet védi a ház lakóit.
A nappali az alsó kertszinten található, ahol kivételes távol-keleti növényfajok között megtalálható japán selyem fenyő és rövidesen helyet kap a balinéz faragott Buddha is, de az eredeti helyén maradt vérbükk is, amely őrzi a környék jellegzetes növényfajainak egyikét.
A nappali szinten kialakításra kerül egy moziterem is hibátlan akkusztikával, moziterem építésére szakosodott cég bevonásával.
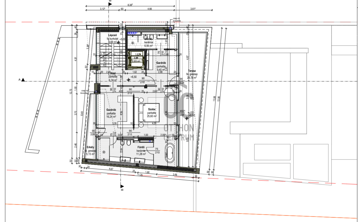
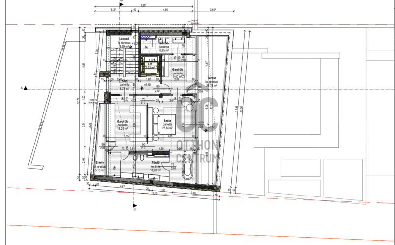
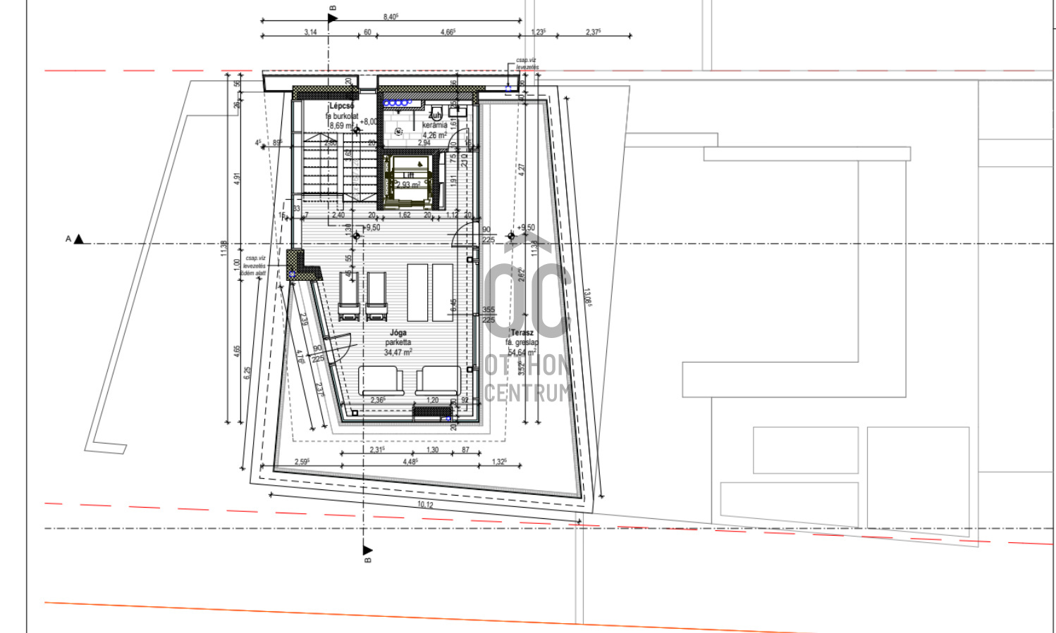
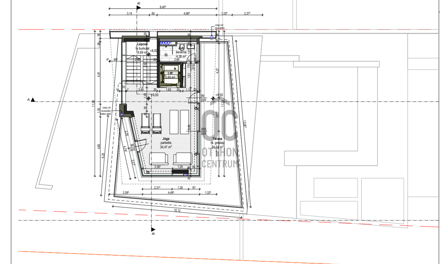
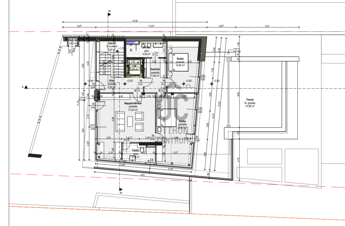
A felső szinteken hálóterek kerülnek kialakításra - a szobák természetesen dupla méretűek - gardróbbal és fürdőszobákkal, míg a legfelső szinten egy egész szintes panorámás yogaterem/ edzőterem kerül kialakításra.
homlokzat:
A homlokzatnak kivételes eleganciát biztosít a fundermax burkolat.
A burkolat mögött az átszellőztett rendszer biztosítja a falazatok tökéletes hőszigetelését így gyakorlatilag lélegzik a fal.
Anyagában színezett, egy különleges mechanikai felületkezelési eljáráson esnek át a lapok, melynek eredménye egy izgalmas, nyers ugyanakkor bársonyos végfelület.
A lapok nyers színe finoman követi a környezet változását, ezáltal egy élő felületet ad.
nyílászárók
A 3 rétegű Schücho gyártmányú alumínium nyílászárók padlótól a mennyezetig érő függönyfalszerű szerkezetek (bevágás belülről és a drónról is) a ház gyakorlatilag fényárban úszik.
Kivéve, ha a tulajdonos nem akarja, akkor csak egy gombnyomás és legördül a zsalúzia.
belső burkolatok:
A természetközeli hangulatról a felhasznált faanyagok minősége és mennyisége gondoskodik, amely megérne egy külön videót! Az asztalos munka és a fafalburkolatok költsége meghaladja egy budai ikerház árát is!
A hidegburkolatok kiválasztásánál nagy hangsúlyt fektettek rá, hogy időtálló, modern letisztult formavilággal rendelkezzen.
fűtési rendszer:
Napelemrendszer + 2 daikin hőszivattyú -ezek biztosítják a felület hűtés-fűtést és a melegvizet
További extrák:
- hővisszanyerős szellőztető rendszer - minden egyes helyiségben - az ablakok nyitása nélkül is szellőzik a ház
- smarthome rendszer számos vezérléssel-a telefonról vezérelhető a teljes villaépület
- kamerarendszer kívül-belül
- látvány kandalló
- 10 m2-es hűtőkamra a konyha mellett
- minden teraszon elektromos fűtés
- rejtett tolóajtók
- wellness helyiség vagy igény szerint szivarszoba a garázszinten
- modern távol-keleti kert közel 80 növényfajjal 100 MFt+ értékben
- moziszoba 6 főre (szakcég által megtervezve és kivitelezve!)
- infinity medence, intim pergolával
- hatalmas majd 100 m2-es konyha nappali!
- garázshely 5 autónak+ felszíni beállók
- privát lift
alapterületek szintenként:
pinceszint 209,98 m2
nappaliszint 171,3 m2+75 m2 terasz
földszint 96,67 m2 + 74,99 m2
I. emelet 76,21 m2+ 33,93 m2 erkély
yoga szoba szint: 50,35 m2 + 54,64 m2
Az ajánlott vételár a kulcsra kész állapotban, mely tartalmazza az alábbiakat:
hideg - meleg burkolatokat,
külső és belső világítás csillárok nélkül
beltéri ajtókat,
a parkosítást a közel 100 MFt értékű kertépítészeti munkával
a külső medencét a pergolával
a mozi szobát
az épület teljes egészében a hangosítást
és a konyhabútort.
TERVEZETT ÁTADÁS 2025. FEBRUÁR
A részletekért, kérem hívjon!
Az utóbbi években a luxus új szintje kezd kibontakozni belföldön is és íme a legújabb példája.
A telek a 12. kerület Kútvölgyi részén, csendes mellék utcájában található és páratlan előnye, hogy 2 utcafronttal rendelkezik.
A vendégek számára a felső utcában került kialakításra egy vendégparkoló, ahonnan a ház gyalogosan is megközelíthető.
Az épület 650 m2 ami 350 m2-nyi terasszal társul es egy 1500 m2-es telken helyezkedik el.
A főbejárat az alsó utcáról nyílik, és már a kapun begurulva is kivételes építészeti megoldásokkal találkozunk.
A kert épített travertin mészkővel borított támfalai már a kapunk begurulva jelzik a kivételes igényességet. A ház különleges modern mégis otthonos külső megjelenését a ház külső fundermax burkolata biztosítja, amely a legújabb homlokzat burkolati technológiák egyike. A kubatúra nem a szokványos kocka minimál ház, mind alakzatban, mind a színezésben van egy kis játék.
A kivételes japánkert távolkeleti növényei pedig egyedülállóan harmónikus összhatást biztosítanak az ott tartózkodók számára.
Az épület összességében 5 szintből áll és a telek adottságainak köszönhetően szinteltolással került kialakításra, így több épületszint is rendelkezik kertszinttel - valamint a lakótér illetve a közösségi és funkcionális terek, teljesen elkülönülnek egymástól (akár több generáció is kényelmesen elfér).
A garázsban 5 SUV is kényelmesen elfér, és a garázsszinten helyet kap egy további helyiség, amely igény szerint Wellness helyiség is lehet Jacuzzival és szaunával.
Az épületen belül a lakók LIFTTEL is közlekedhetnek,amellyel az összes épületszint elérhető.
Bár valószínűleg a garázsszintre történő megérkezés prioritást fog élvezni, de a gyalogos főbejárati ajtó is kiemelt szerepet kapott a tervezés során - az egyedileg gyártott bejárati ajtó, majd 3 méter magas!
A földszinten kialakított konyha-nappali - étkező, több mint 100 m2- az élhető terekben itt nincs hiány!
A térérzetet tovább növeli az egyedülálló 330 cm-es belmagasság!
A hatalmas konyha-nappali térből kiléphetünk az óriás teraszra, ahol rövidesen feltöltésére kerül a feszített víztükrű Infinity medence.
A medence intimitása érdekében kialakításra került egy kerti pergola, a másik szomszéd felől pedig a buja növényzet védi a ház lakóit.
A nappali az alsó kertszinten található, ahol kivételes távol-keleti növényfajok között megtalálható japán selyem fenyő és rövidesen helyet kap a balinéz faragott Buddha is, de az eredeti helyén maradt vérbükk is, amely őrzi a környék jellegzetes növényfajainak egyikét.
A nappali szinten kialakításra kerül egy moziterem is hibátlan akkusztikával, moziterem építésére szakosodott cég bevonásával.
A felső szinteken hálóterek kerülnek kialakításra - a szobák természetesen dupla méretűek - gardróbbal és fürdőszobákkal, míg a legfelső szinten egy egész szintes panorámás yogaterem/ edzőterem kerül kialakításra.
homlokzat:
A homlokzatnak kivételes eleganciát biztosít a fundermax burkolat.
A burkolat mögött az átszellőztett rendszer biztosítja a falazatok tökéletes hőszigetelését így gyakorlatilag lélegzik a fal.
Anyagában színezett, egy különleges mechanikai felületkezelési eljáráson esnek át a lapok, melynek eredménye egy izgalmas, nyers ugyanakkor bársonyos végfelület.
A lapok nyers színe finoman követi a környezet változását, ezáltal egy élő felületet ad.
nyílászárók
A 3 rétegű Schücho gyártmányú alumínium nyílászárók padlótól a mennyezetig érő függönyfalszerű szerkezetek (bevágás belülről és a drónról is) a ház gyakorlatilag fényárban úszik.
Kivéve, ha a tulajdonos nem akarja, akkor csak egy gombnyomás és legördül a zsalúzia.
belső burkolatok:
A természetközeli hangulatról a felhasznált faanyagok minősége és mennyisége gondoskodik, amely megérne egy külön videót! Az asztalos munka és a fafalburkolatok költsége meghaladja egy budai ikerház árát is!
A hidegburkolatok kiválasztásánál nagy hangsúlyt fektettek rá, hogy időtálló, modern letisztult formavilággal rendelkezzen.
fűtési rendszer:
Napelemrendszer + 2 daikin hőszivattyú -ezek biztosítják a felület hűtés-fűtést és a melegvizet
További extrák:
- hővisszanyerős szellőztető rendszer - minden egyes helyiségben - az ablakok nyitása nélkül is szellőzik a ház
- smarthome rendszer számos vezérléssel-a telefonról vezérelhető a teljes villaépület
- kamerarendszer kívül-belül
- látvány kandalló
- 10 m2-es hűtőkamra a konyha mellett
- minden teraszon elektromos fűtés
- rejtett tolóajtók
- wellness helyiség vagy igény szerint szivarszoba a garázszinten
- modern távol-keleti kert közel 80 növényfajjal 100 MFt+ értékben
- moziszoba 6 főre (szakcég által megtervezve és kivitelezve!)
- infinity medence, intim pergolával
- hatalmas majd 100 m2-es konyha nappali!
- garázshely 5 autónak+ felszíni beállók
- privát lift
alapterületek szintenként:
pinceszint 209,98 m2
nappaliszint 171,3 m2+75 m2 terasz
földszint 96,67 m2 + 74,99 m2
I. emelet 76,21 m2+ 33,93 m2 erkély
yoga szoba szint: 50,35 m2 + 54,64 m2
Az ajánlott vételár a kulcsra kész állapotban, mely tartalmazza az alábbiakat:
hideg - meleg burkolatokat,
külső és belső világítás csillárok nélkül
beltéri ajtókat,
a parkosítást a közel 100 MFt értékű kertépítészeti munkával
a külső medencét a pergolával
a mozi szobát
az épület teljes egészében a hangosítást
és a konyhabútort.
TERVEZETT ÁTADÁS 2025. FEBRUÁR
A részletekért, kérem hívjon!
Registration Number
U0046893
Property Details
Sales
for sale
Legal Status
new
Character
house
Construction Method
brick
Net Size
650 m²
Gross Size
840 m²
Plot Size
1,088 m²
Size of Terrace / Balcony
352 m²
Heating
heat pump
Ceiling Height
300 cm
Number of Levels Within the Property
5
Orientation
North
Condition
Excellent
Condition of Facade
Excellent
Neighborhood
quiet, green
Year of Construction
2025
Number of Bathrooms
6
Garage
Included in the price
Garage Spaces
5
Water
Available
Electricity
Available
Sewer
Available
Rooms
corridor
16.99 m²
garage
99.55 m²
garage
96.26 m²
corridor
11.03 m²
entryway
9.13 m²
toilet-washbasin
3.26 m²
storage
32.31 m²
pantry
10 m²
living room
61.51 m²
dining room
20.51 m²
kitchen
22.96 m²
terrace
35.31 m²
terrace
30.2 m²
corridor
6.59 m²
wardrobe
7.08 m²
bathroom-toilet
4.45 m²
room
15.68 m²
open-plan living and dining room
31.62 m²
room
25.97 m²
bathroom
5.28 m²
terrace
74.99 m²
corridor
6.74 m²
wardrobe
9.4 m²
bathroom-toilet
6.95 m²
room
25.6 m²
wardrobe
16.24 m²
balcony
5.15 m²
bathroom-toilet
11.28 m²
terrace
28.78 m²
bathroom-toilet
4.26 m²
gym
34.47 m²
terrace
54.64 m²
Tóth Róbert
Credit Expert