data_sheet.details.realestate.section.main.otthonstart_flag.label
For sale new construction family house, U0046226
Hajdúszoboszló, Kertváros

95,000,000 Ft

266,000 €

  • 109m²
  • 4 Rooms

Hajdúszoboszlón új építésű családi ház eladó!

Hajdúszoboszlón, családi házas övezetben, új építésű családi ház eladó!

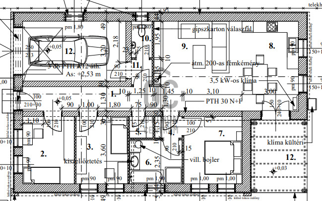
- 550 nm-es telek
- 140/109 nm-es ingatlan
- amerikai konyha-nappali
- 3 szoba
- fürdőszoba, külön WC
- garázs
- 44 cm-es klíma falazat + szigetelés
- műanyag nyílászáró, 3 rétegű üvegezés
- cserép tetőfedés
- tervezett hőszivattyús fűtés

Jelenleg 50%-os készültségben, várható átadás szerződéskötéstől 6 hónap.
A vételár kulcsrakész állapotot tartalmazza.


A hirdetésben szereplő információk a megbízótól kapott adatok alapján készültek, pontosságukért felelősséget nem vállalunk!

Amennyiben vásárláshoz hitelre is szüksége van, független hitel tanácsadónk ingyenesen tud Önnek segítséget
nyújtani, a legjobb konstrukciók kiválasztásában és a folyamat lebonyolításában.

Irodánk kereső ügyfeleinknek teljes körű szolgáltatást nyújt, szakszerű tanácsadással, energetikai
tanúsítvány elkészítésével, hitelügyintézéssel és profi ügyvédi segítséggel.

Abban az esetben ha az ingatlan felkeltette érdeklődését keressen bizalommal!

Registration Number

U0046226

Property Details

Sales
for sale
Legal Status
new
Character
house
Construction Method
brick
Net Size
109 m²
Gross Size
140 m²
Plot Size
550 m²
Heating
renewable
Ceiling Height
270 cm
Orientation
South-West
Condition
Excellent
Condition of Facade
Excellent
Year of Construction
2024
Number of Bathrooms
1
Water
Available
Gas
On the street
Electricity
Available
Sewer
Available

Rooms

living room
19.27 m²
open-plan kitchen and dining room
17.7 m²
room
11.16 m²
room
9.9 m²
room
9.9 m²
bathroom
6.58 m²
Katonáné Boruzs Ildikó
Katonáné Boruzs Ildikó

Credit Expert

From Our Office Listings - Hajdúszoboszló

for sale family house

Index image
data_sheet.details.realestate.section.main.otthonstart_flag.label
19

for sale plot

Index image
3

for sale new construction apartment

Index image
data_sheet.details.realestate.section.main.otthonstart_flag.label
12

for sale new construction apartment

Index image
data_sheet.details.realestate.section.main.otthonstart_flag.label
12

for sale new construction apartment

Index image
data_sheet.details.realestate.section.main.otthonstart_flag.label
12

for sale new construction apartment

Index image
data_sheet.details.realestate.section.main.otthonstart_flag.label
12

for sale new construction apartment

Index image
data_sheet.details.realestate.section.main.otthonstart_flag.label
12

for sale apartment

Index image
data_sheet.details.realestate.section.main.otthonstart_flag.label
10

for sale apartment

Index image
data_sheet.details.realestate.section.main.otthonstart_flag.label
36

for sale apartment

Index image
data_sheet.details.realestate.section.main.otthonstart_flag.label
15

for sale apartment

Index image
data_sheet.details.realestate.section.main.otthonstart_flag.label
12

for sale family house

Index image
data_sheet.details.realestate.section.main.otthonstart_flag.label
14