data_sheet.details.realestate.section.main.otthonstart_flag.label
For sale new construction family house,
U0045286
Budajenő
125,000,000 Ft
319,000 €
- 127m²
- 4 Rooms











Új. 2023.
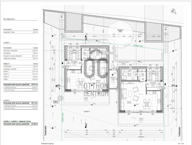
Eladó Budajenőn (Telki közvetlen szomszédsága), új építésű, energetikailag „AA”plusz besorolású, belső kétszintes családi ház, önáll 670 nm telekkel. A Porotherm klíma téglából épült ház falai, alap és tető szigetelt a jelenlegi előírásoknak megfelelően. A fűtés-hűtés Daikin levegő hőszivattyúval padlófűtés (igény szerint falfűtés). Nyílászárók három rétegű hat kamrás kivitelben. Napelem elhelyezésére előkészítés. Az épület nappali- étkező-konyha, kertkapcsolatos fedett terasz, háztartási helyiség (WC-kézmosóval), közlekedő, előszoba, lépcsőtér a földszinten, három hálószoba, fürdőszoba-WC, közlekedő, fedett erkély a fenti szinten. A nappaliból valamint a konyhából a kényelmes, kertkapcsolatos fedett teraszra lehet kilépni. A ház kiváló minőségű anyagok felhasználásával kerül kialakításra, igény szerint felszerelve, berendezve. A kertben kettő autónak nyitott gépkocsi beálló lesz (betonozott, térkövezett). Kívülről a végleges arculatával új kerítéssel, kapuval, burkolt terasszal, burkolt járdával és gépkocsi beállóval, fedett kukatárolóval kerül átadásra az ingatlan, a kert terep-rendezetten (a már benne található fákkal, cserjékkel). A hirdetett árban nincsenek beszámítva a belső burkolatok, szaniterek, szerelvények, festés valamint a beltéri ajtók. A ház kb. három hónap alatt kulcsrakészen befejezésre kerül és költözhető. Modern vonalvezetésű, igényes, értékálló otthont építész házaspártól. Referenciákat több mint húsz év távlatából tudom mutatni!
Registration Number
U0045286
Property Details
Sales
for sale
Legal Status
new
Character
house
Construction Method
brick
Net Size
127 m²
Gross Size
145 m²
Plot Size
620 m²
Size of Terrace / Balcony
39 m²
Heating
heat pump
Ceiling Height
280 cm
Number of Levels Within the Property
2
Orientation
South
View
Green view, Other
Condition
Excellent
Condition of Facade
Excellent
Neighborhood
quiet, good transport, green
Year of Construction
2023
Number of Bathrooms
2
Water
Available
Gas
On the street
Electricity
Available
Sewer
Available
Rooms
living room
27 m²
open-plan kitchen and dining room
11 m²
entryway
11 m²
utility room
6.7 m²
corridor
3.6 m²
terrace
25 m²
room
13.5 m²
room
13.5 m²
room
10 m²
bathroom-toilet
4.6 m²
corridor
8.5 m²
balcony
14.5 m²

Bitó István
Credit Expert