390,000,000 Ft
994,000 €
- 341.3m²
- 7 Rooms



































NAGYPOLGÁRI OTTHON BUDAÖRS SZÍVÉBEN!
Eladó Budaörs központjában, de mégis csendes helyen egy nagystílű, impozáns méretekkel és terekkel rendelkező belső háromszintes családi ház.
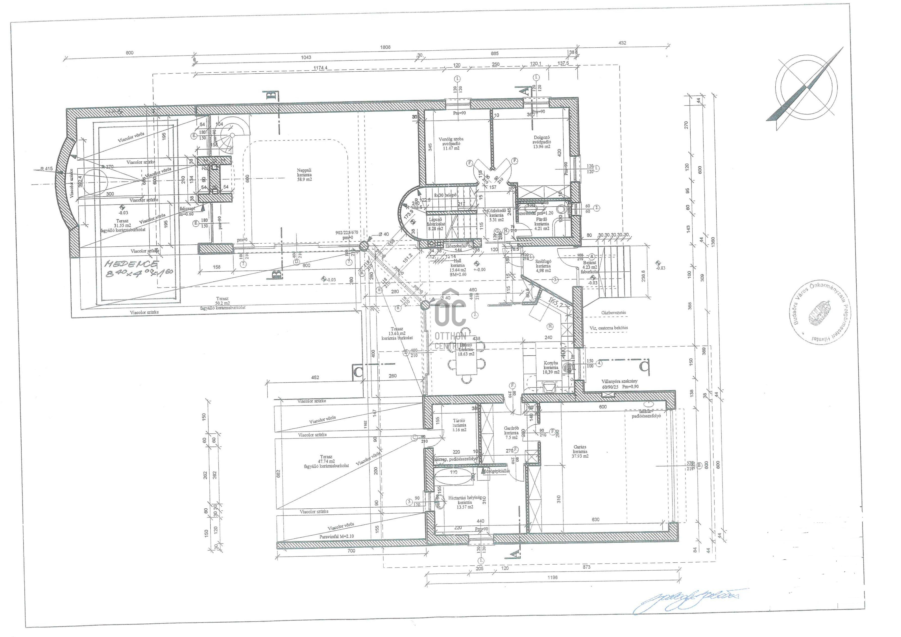
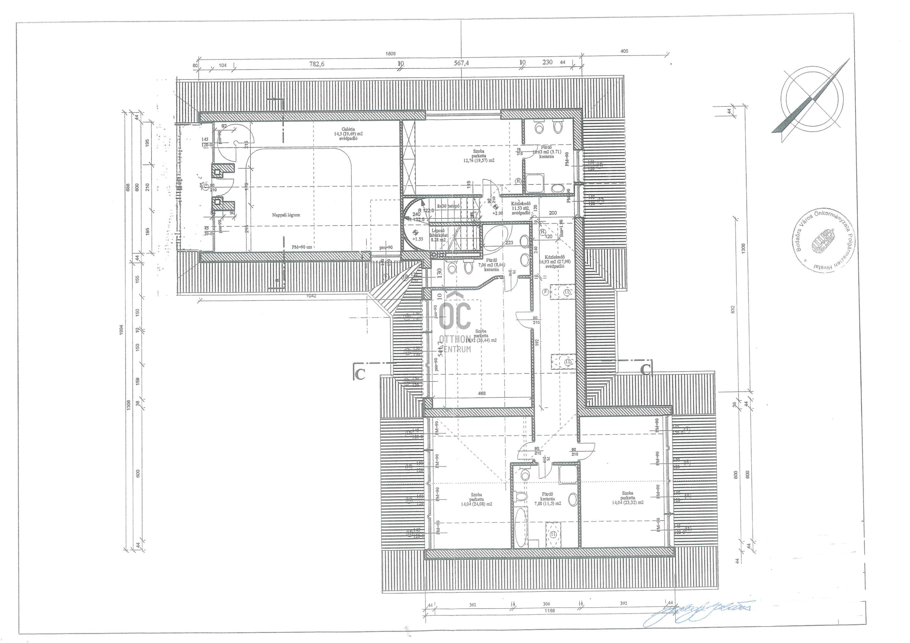
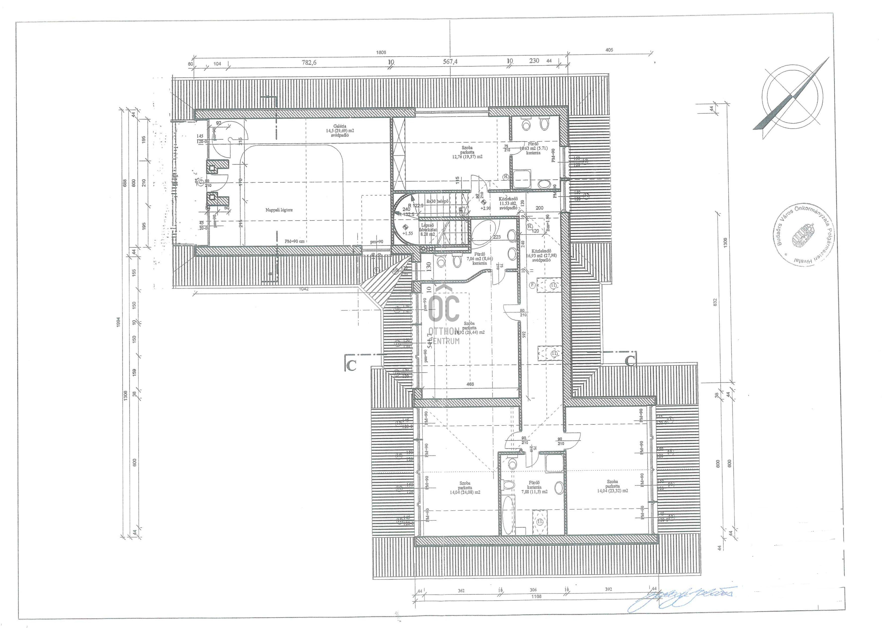
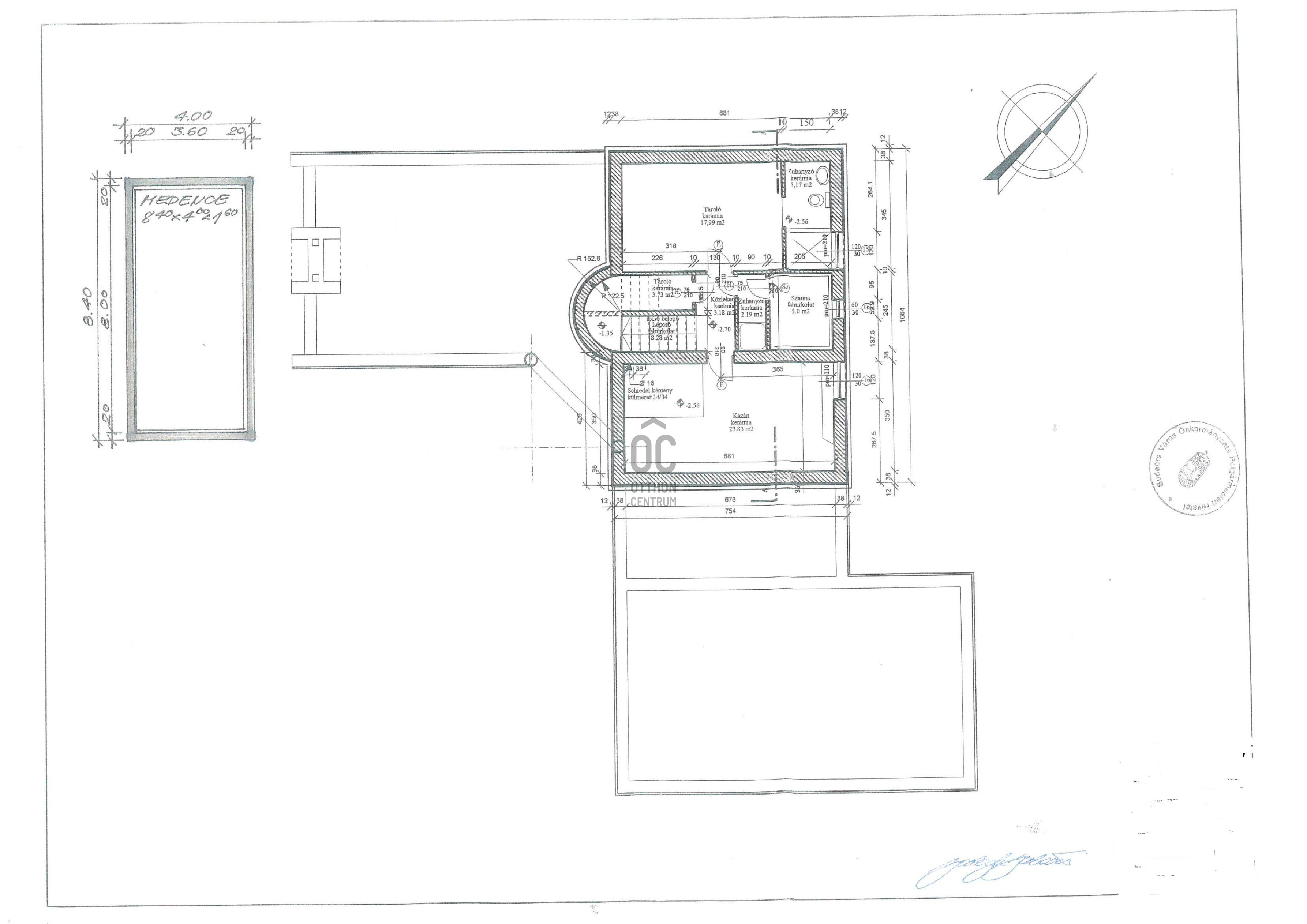
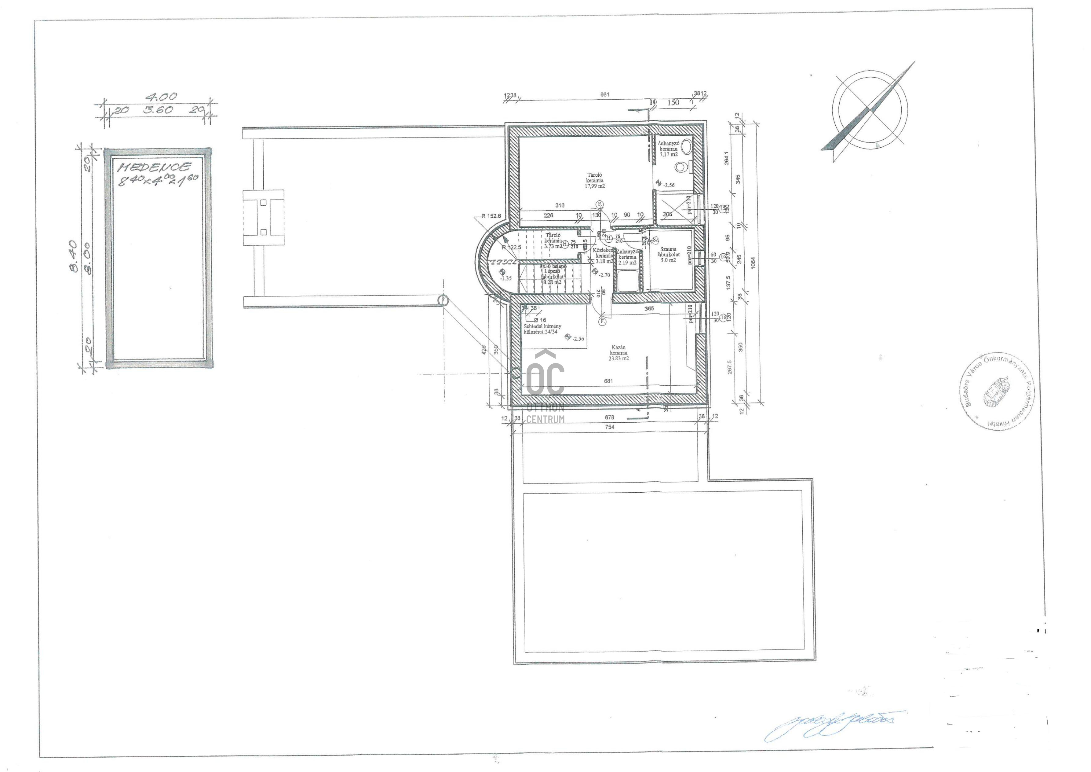
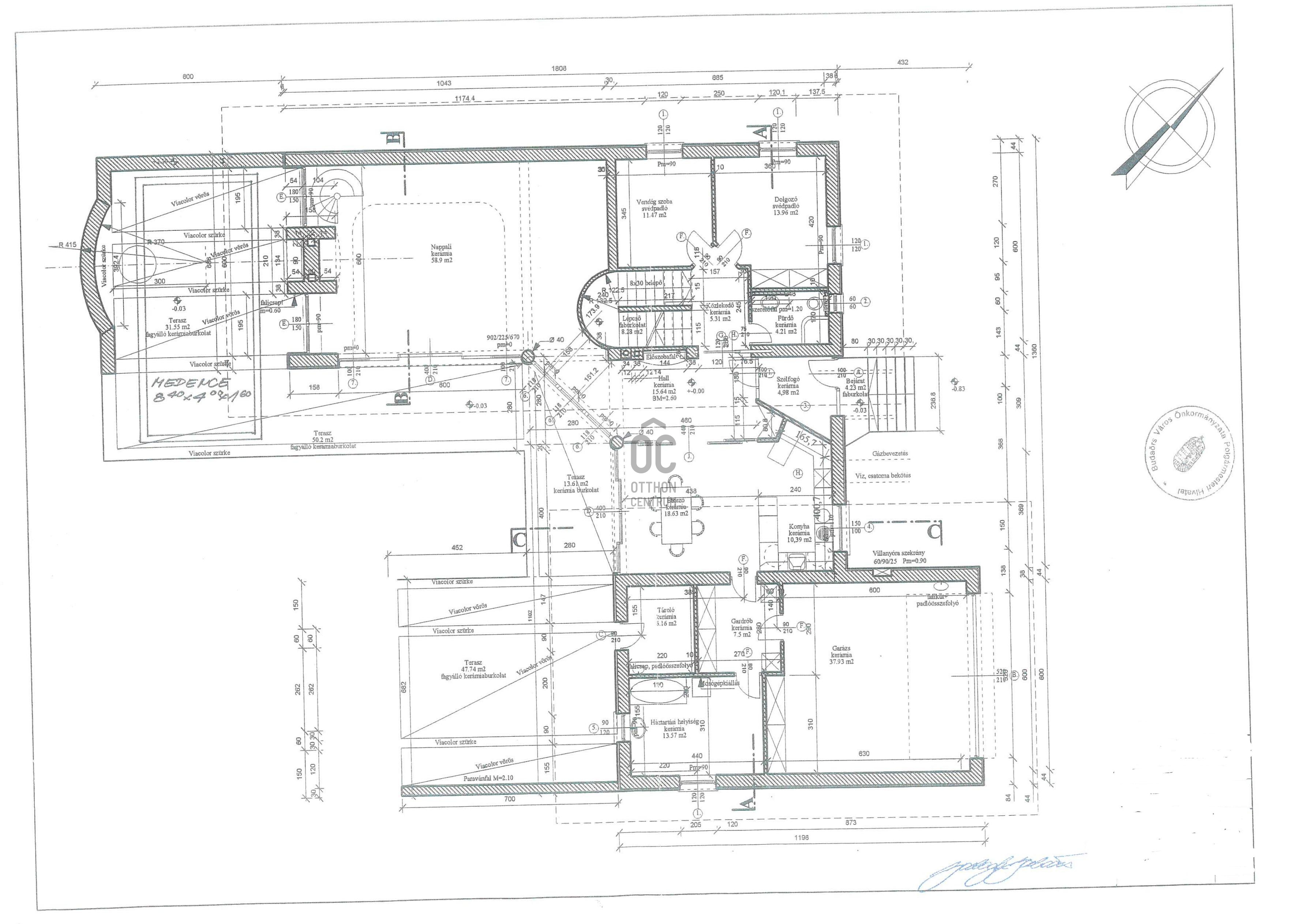
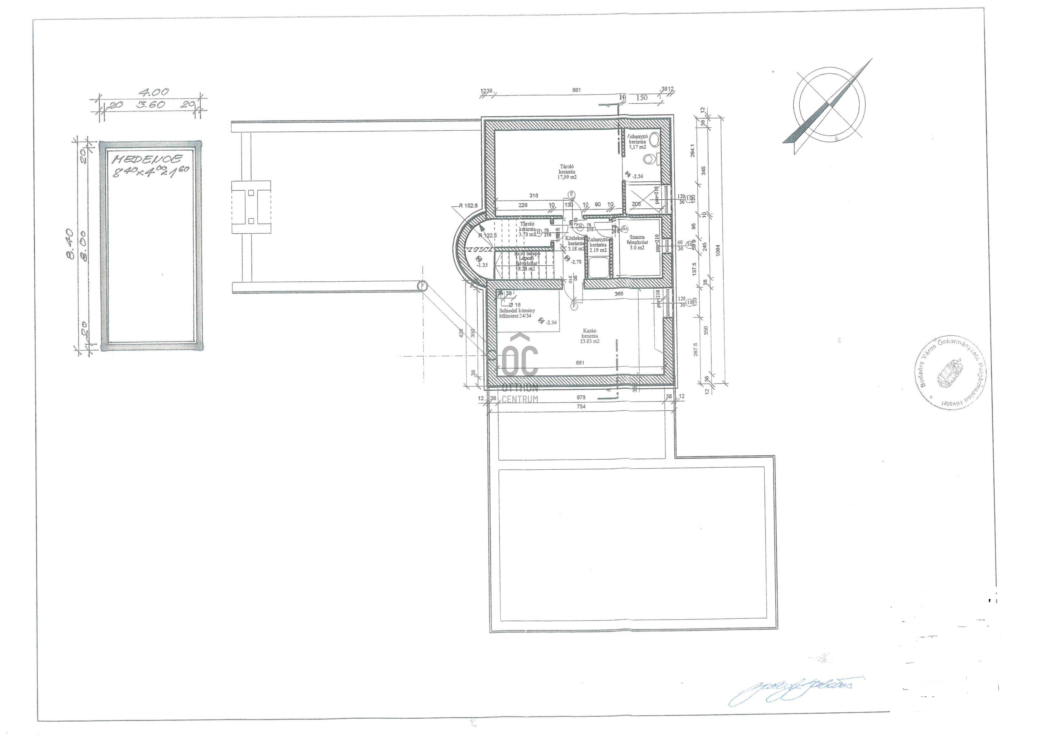
Az ingatlan közel 400 nm-es (alagsor nettó 57,36 nm, földszint nettó 216,93 nm, tetőtér nettó 124,37 nm) és rendkívül élhető az elrendezése.
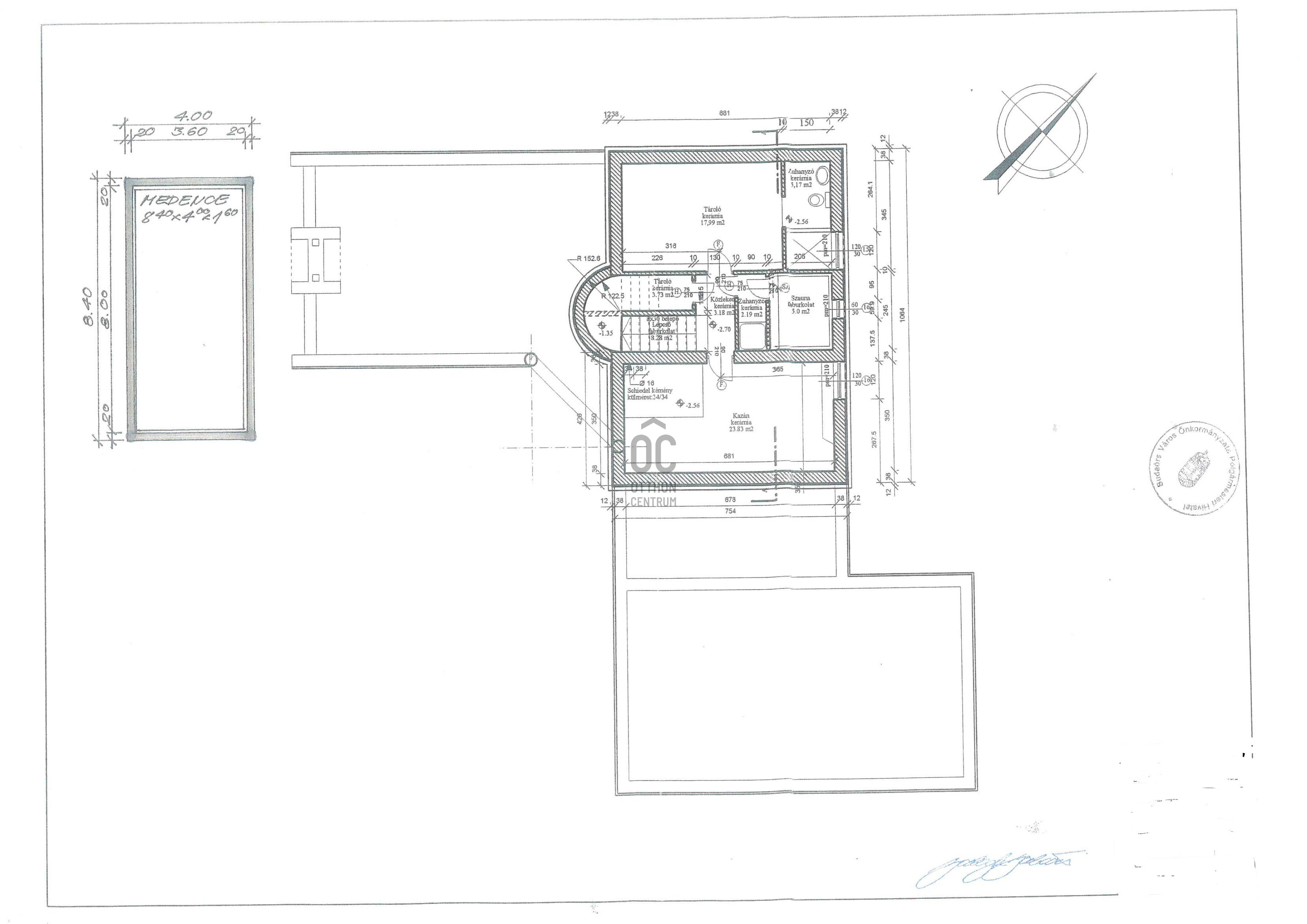
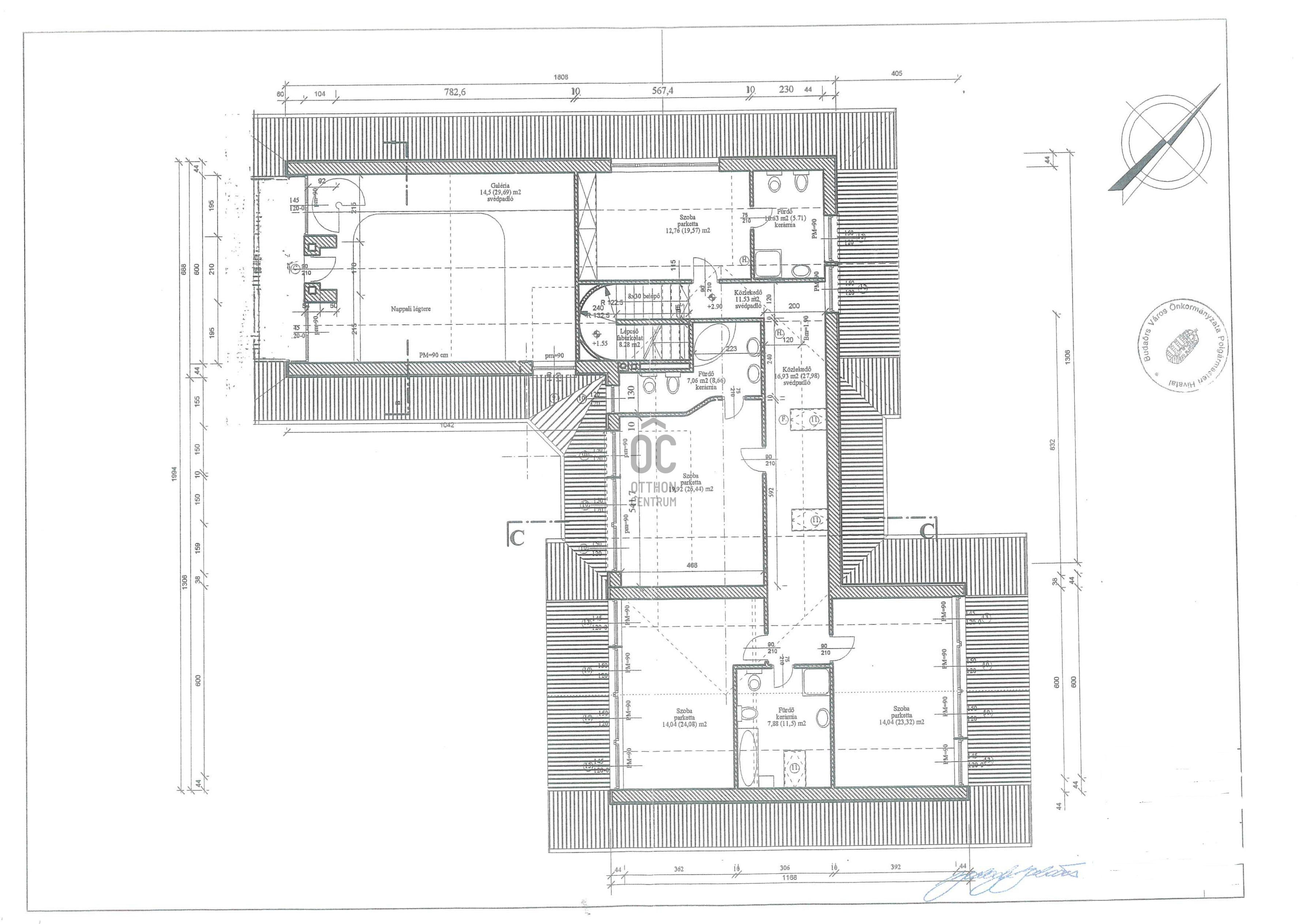
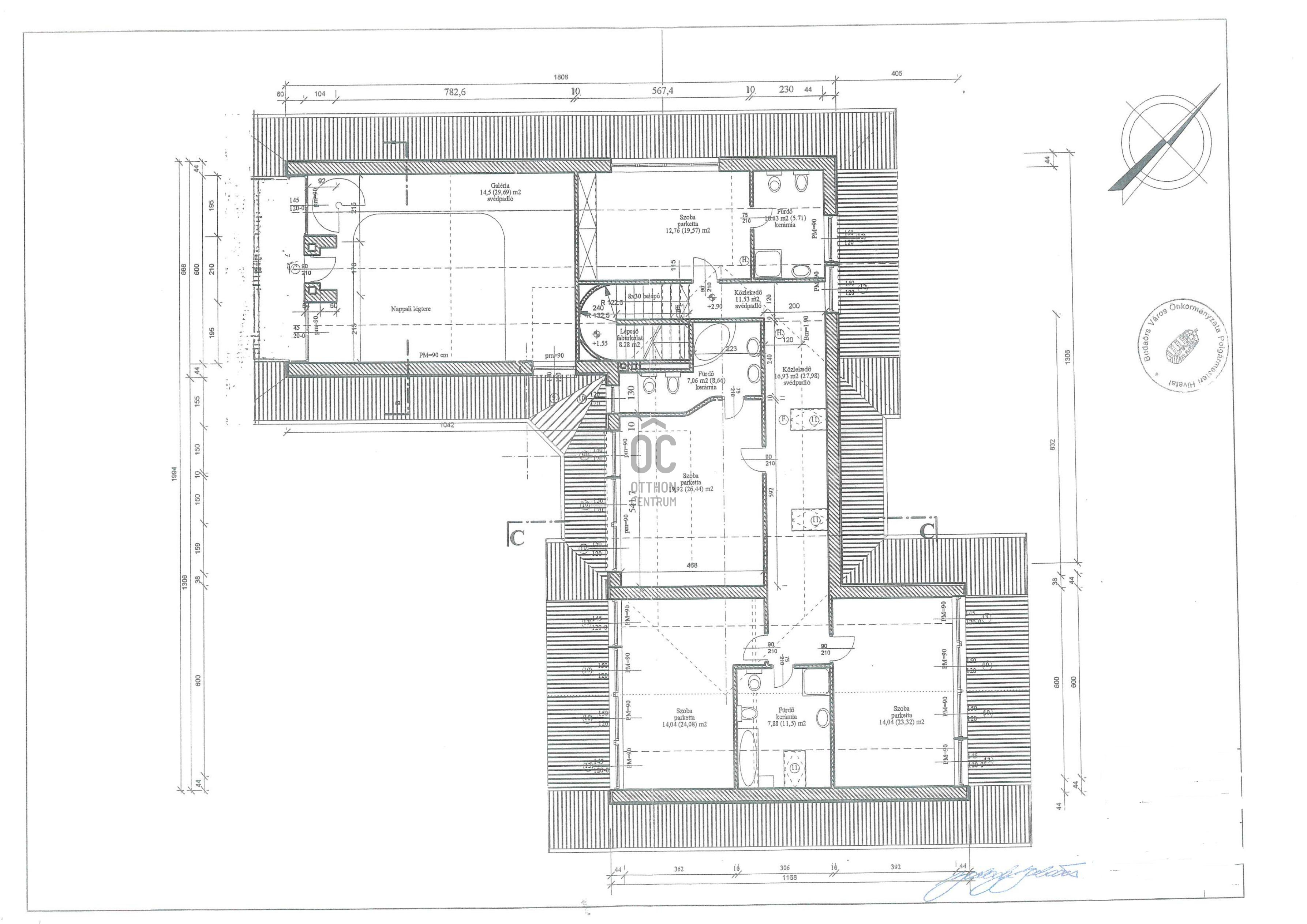
Az alagsorban kiszolgáló helyiségek találhatók: tároló, kazánház, szauna vizesblokkal és egyéb gépészeti elemek, mint például vízlágyító és központi porszívó, a földszintet a közel 60 nm-es galériás nappali uralja a hozzákapcsolódó konyhával és étkezővel, ill. két hálószoba (jelenleg összenyitva) is található ezen a szinten fürdőszobával, közlekedő/gardróbbal, mosókonyhával és a duplagarázzsal, a tetőtérben pedig további négy hálószoba van három fürdőszobával.
A fűtésről és hűtésről parapetes fan -coil rendszer gondoskodik, melynek egy gázkazán a központi hőtermelője. A nappaliban egy attraktív cserépkályha szolgál alternatív fűtési lehetőségként.
A ház 2005-ben épült, tulajdonosai folyamatosan újították, korszerűsítették: 2022-ben például friss belső festést kapott az ingatlan, a tetőt is renoválták, ill. napelem rendszer telepítésére is sor került.
A 993 nm-es kert gyönyörű és a budaörsi viszonyok ellenére meglepően intim. Külön dísze a grillező hely és a komoly gépészettel rendelkező kültéri medence (8 mX3,6 m).
A nappali, konyha és étkező terét és a kertet egy kb. 100 nm-es terasz köti össze.
Parkolni a tágas duplagarázsban lehet, ill. egy fedett autóbeállón és a ház előtt is kényelmesen elfér több autó.
Az infrastruktúra és közlekedés tökéletes, pár perc alatt könnyen elérhető a főváros autóval és tömegközlekedéssel is. Több bevásárlási (TESCO, AUCHAN, LIDL, ALDI) és szórakozási lehetőség (VÁROSI SPORTCSARNOK ÉS USZODA, SZÍNHÁZ, JÁTSZÓHÁZ) is néhány utcára található.
Eladó Budaörs központjában, de mégis csendes helyen egy nagystílű, impozáns méretekkel és terekkel rendelkező belső háromszintes családi ház.
Az ingatlan közel 400 nm-es (alagsor nettó 57,36 nm, földszint nettó 216,93 nm, tetőtér nettó 124,37 nm) és rendkívül élhető az elrendezése.
Az alagsorban kiszolgáló helyiségek találhatók: tároló, kazánház, szauna vizesblokkal és egyéb gépészeti elemek, mint például vízlágyító és központi porszívó, a földszintet a közel 60 nm-es galériás nappali uralja a hozzákapcsolódó konyhával és étkezővel, ill. két hálószoba (jelenleg összenyitva) is található ezen a szinten fürdőszobával, közlekedő/gardróbbal, mosókonyhával és a duplagarázzsal, a tetőtérben pedig további négy hálószoba van három fürdőszobával.
A fűtésről és hűtésről parapetes fan -coil rendszer gondoskodik, melynek egy gázkazán a központi hőtermelője. A nappaliban egy attraktív cserépkályha szolgál alternatív fűtési lehetőségként.
A ház 2005-ben épült, tulajdonosai folyamatosan újították, korszerűsítették: 2022-ben például friss belső festést kapott az ingatlan, a tetőt is renoválták, ill. napelem rendszer telepítésére is sor került.
A 993 nm-es kert gyönyörű és a budaörsi viszonyok ellenére meglepően intim. Külön dísze a grillező hely és a komoly gépészettel rendelkező kültéri medence (8 mX3,6 m).
A nappali, konyha és étkező terét és a kertet egy kb. 100 nm-es terasz köti össze.
Parkolni a tágas duplagarázsban lehet, ill. egy fedett autóbeállón és a ház előtt is kényelmesen elfér több autó.
Az infrastruktúra és közlekedés tökéletes, pár perc alatt könnyen elérhető a főváros autóval és tömegközlekedéssel is. Több bevásárlási (TESCO, AUCHAN, LIDL, ALDI) és szórakozási lehetőség (VÁROSI SPORTCSARNOK ÉS USZODA, SZÍNHÁZ, JÁTSZÓHÁZ) is néhány utcára található.
Registration Number
DHZ099756
Property Details
Sales
for sale
Legal Status
used
Character
house
Construction Method
brick
Net Size
341.3 m²
Gross Size
341.3 m²
Plot Size
993 m²
Size of Terrace / Balcony
147.1 m²
Heating
other
Ceiling Height
265 cm
Number of Levels Within the Property
3
Orientation
South-West
Condition
Good
Condition of Facade
Good
Year of Construction
2005
Number of Bathrooms
6
Position
courtyard-facing
Water
Available
Gas
Available
Electricity
Available
Sewer
Available
Connected to Garden
yes
Rooms
corridor
3.19 m²
bathroom-toilet
3.17 m²
living room
58.9 m²
kitchen
10.39 m²
dining room
18.63 m²
room
11.47 m²
room
13.96 m²
bathroom-toilet
4.21 m²
corridor
5.31 m²
entryway
4.98 m²
hall
15.64 m²
staircase
8.28 m²
veranda
4.23 m²
wardrobe
7.5 m²
utility room
13.57 m²
terrace
142.9 m²
room
19.92 m²
bathroom-toilet
7.06 m²
room
12.76 m²
bathroom-toilet
10.63 m²
corridor
11.53 m²
corridor
16.93 m²
room
14.04 m²
room
14.04 m²
bathroom-toilet
7.08 m²

Bitó István
Credit Expert