For sale plot, T040321
Kecskemét, Hetényegyháza

33,000,000 Ft

85,000 €

  • 7,454m²
Exclusive Contract

For sale is a 7454 sqm building plot in a wooded environment!

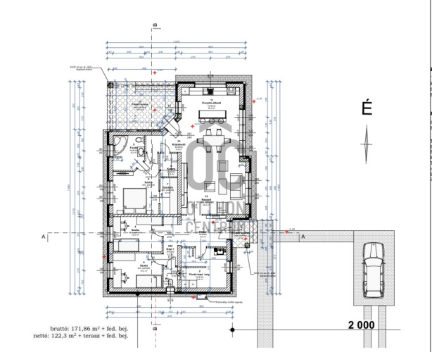
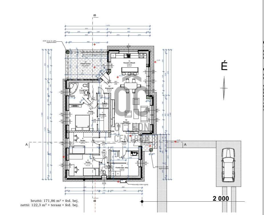
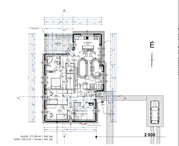
Building plot for sale in Hetényegyház, Kecskemét, with ready plans and approved permits. Key features: - 7454 sqm plot area - 5% buildability - Quiet, wooded environment - 800 m from the asphalt road - Sold with a drilled well - Existing permits available (valid for 4 years) - Complete planning documentation for a family house with 1 living room + 3 rooms - Gross area of 171.86 sqm + covered entrance - Net area of 122.3 sqm + terrace + covered entrance - Electricity available in front of the plot - Gas available in front of the plot For more information, feel free to contact us!

Registration Number

T040321

Property Details

Sales
for sale
Character
plot
Type of Land
Building plot
Zone
residential zone
Plot Size
7,454 m²
Orientation
North-East
View
Green view
Neighborhood
quiet, good transport, green
Water
Available
Gas
On the street
Electricity
On the street

 

Buildability
5%
Facade Height
5
Type of Buildable Property
Family house

From Our Office Listings - Kecskemét - Kisfaludy utca

eladó lakás

Index image
Elérhető Otthon Start hitellel
12

eladó tanya

Index image
Elérhető Otthon Start hitellel
25

eladó családi ház

Index image
22

eladó tanya

Index image
Elérhető Otthon Start hitellel
22