data_sheet.details.realestate.section.main.otthonstart_flag.label
For sale new construction apartment,
P4792-1-0A-01-013
Kiskunlacháza,
51,100,000 Ft
135,000 €
- 51m²
- 2 Rooms
- 1st floor
Dunaparti luxus lakások Kiskunlacházán
Dunaparti luxus lakások Kiskunlacházán – panoráma, nyugalom, minőség
Ne hagyja ki ezt a kivételes lehetőséget!
Kiskunlacházán, közvetlen Duna-parti, csendes zöld környezetben, új építésű, modern lakóparkban kínálunk eladásra 19 exkluzív, Dunára panorámás vízparti lakást.
A földszint + 2 emeletes kialakítású társasház ideális választás mindazok számára, akik a természet közelségét, a vízpart nyugalmát és a modern luxus kényelmét keresik.
A projekt várható átadása: 2026. április 30.
________________________________________
Fizetési ütemezés
•Szerződéskötéskor: 50%
•Engedély kérelem benyújtásakor: 25%
•Birtokbavételkor: 25%
Lépjen most, és legyen az elsők között, akik élvezhetik a Duna közelségének páratlan hangulatát és az új otthon kényelmét!
Keressen minket bizalommal további részletekért!
________________________________________
Kiemelt előnyök
•Dunára panorámás, vízparti lakások
•Csendes, zöld környezet, természetközeli életérzés
•Modern geotermikus fűtés és hűtés, hővisszanyerős légtechnika
•Elektromos, távirányítós redőnyök és riasztórendszer kiállások
•Videós kaputelefon
•Lakásonként egy db. felszíni nyitott beálló és + parkolóhely vásárolható 2.000.000Ft/db áron
•Közösségi stég, parkosított udvar, grillező, játszótér
•Elektromos autótöltési lehetőség
•Energiatakarékos, környezetbarát megoldások
________________________________________
Műszaki tartalom – Kiskunlacháza, 19 lakásos lakópark
Épületszerkezet
•Vasbeton alapozás (1974), bővítés és korszerűsítés 2024-ben
•Főfalak: kisméretű tégla
2.emelet külső falai: Ytong
•Lakások közötti falak: Silka
•Lakáson belüli válaszfalak: Ytong
Nyílászárók
•8 kamrás, megerősített műanyag-fémvázas profil
•Háromrétegű üvegezés
•Elektromos redőnyök (szúnyogháló nem alapfelszerelés)
•Videós kaputelefon
Homlokzat és hőszigetelés
•14–16 cm vastag külső hőszigetelés
•Prémium STO vakolatrendszer
Belmagasság
•Földszint és 1. emelet: 2,8 m
•2.emelet: 2,6 m
Burkolatok és felszereltség
•Hideg- és melegburkolatok választhatók az árban meghatározott keretösszegig
•Fürdőszobai szaniterek részben az ár részét képezik, extra kérés esetén a vevő biztosítja.
Fűtés és hűtés
•Geotermikus, talajszondás rendszer
•Mennyezeti és aljzati hűtés-fűtés
•Egyedi mérőórák minden lakásban
Közösségi terek
•Parkosított kert, sövények, fák
•Közösségi stég, grillező
•Elektromos kapu, rácsos fémkerítés
•Lakásonként 1 nyitott parkoló az árban
•További parkolók vásárolhatók: 2.000.000 Ft/db
Energetikai besorolás
•Tervezett legjobb kategória
•Hivatalos minősítés folyamatban
________________________________________
Kérdésekkel és megtekintéssel kapcsolatban várom jelentkezését.
Ne hagyja ki ezt a kivételes lehetőséget!
Kiskunlacházán, közvetlen Duna-parti, csendes zöld környezetben, új építésű, modern lakóparkban kínálunk eladásra 19 exkluzív, Dunára panorámás vízparti lakást.
A földszint + 2 emeletes kialakítású társasház ideális választás mindazok számára, akik a természet közelségét, a vízpart nyugalmát és a modern luxus kényelmét keresik.
A projekt várható átadása: 2026. április 30.
________________________________________
Fizetési ütemezés
•Szerződéskötéskor: 50%
•Engedély kérelem benyújtásakor: 25%
•Birtokbavételkor: 25%
Lépjen most, és legyen az elsők között, akik élvezhetik a Duna közelségének páratlan hangulatát és az új otthon kényelmét!
Keressen minket bizalommal további részletekért!
________________________________________
Kiemelt előnyök
•Dunára panorámás, vízparti lakások
•Csendes, zöld környezet, természetközeli életérzés
•Modern geotermikus fűtés és hűtés, hővisszanyerős légtechnika
•Elektromos, távirányítós redőnyök és riasztórendszer kiállások
•Videós kaputelefon
•Lakásonként egy db. felszíni nyitott beálló és + parkolóhely vásárolható 2.000.000Ft/db áron
•Közösségi stég, parkosított udvar, grillező, játszótér
•Elektromos autótöltési lehetőség
•Energiatakarékos, környezetbarát megoldások
________________________________________
Műszaki tartalom – Kiskunlacháza, 19 lakásos lakópark
Épületszerkezet
•Vasbeton alapozás (1974), bővítés és korszerűsítés 2024-ben
•Főfalak: kisméretű tégla
2.emelet külső falai: Ytong
•Lakások közötti falak: Silka
•Lakáson belüli válaszfalak: Ytong
Nyílászárók
•8 kamrás, megerősített műanyag-fémvázas profil
•Háromrétegű üvegezés
•Elektromos redőnyök (szúnyogháló nem alapfelszerelés)
•Videós kaputelefon
Homlokzat és hőszigetelés
•14–16 cm vastag külső hőszigetelés
•Prémium STO vakolatrendszer
Belmagasság
•Földszint és 1. emelet: 2,8 m
•2.emelet: 2,6 m
Burkolatok és felszereltség
•Hideg- és melegburkolatok választhatók az árban meghatározott keretösszegig
•Fürdőszobai szaniterek részben az ár részét képezik, extra kérés esetén a vevő biztosítja.
Fűtés és hűtés
•Geotermikus, talajszondás rendszer
•Mennyezeti és aljzati hűtés-fűtés
•Egyedi mérőórák minden lakásban
Közösségi terek
•Parkosított kert, sövények, fák
•Közösségi stég, grillező
•Elektromos kapu, rácsos fémkerítés
•Lakásonként 1 nyitott parkoló az árban
•További parkolók vásárolhatók: 2.000.000 Ft/db
Energetikai besorolás
•Tervezett legjobb kategória
•Hivatalos minősítés folyamatban
________________________________________
Kérdésekkel és megtekintéssel kapcsolatban várom jelentkezését.
Registration Number
P4792-1-0A-01-013
Property Details
Sales
for sale
Legal Status
new
Character
apartment
Construction Method
brick
Net Size
51 m²
Gross Size
51 m²
Heating
values.realestate.futes.27
Ceiling Height
270 cm
Number of Levels Within the Property
1
Orientation
East
View
Green view
Staircase Type
enclosed staircase
Condition
Excellent
Condition of Facade
Excellent
Condition of Staircase
Excellent
Neighborhood
quiet, green
Year of Construction
2026
Number of Bathrooms
1
Position
courtyard-facing
Water
Available
Electricity
Available
Sewer
Available
Elevator
available
Distance to Waterfront
waterfront
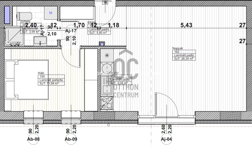
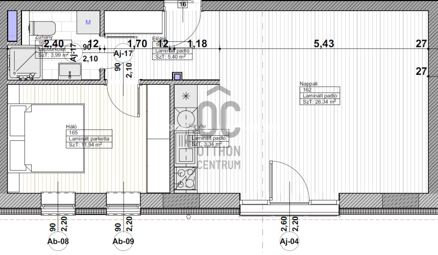
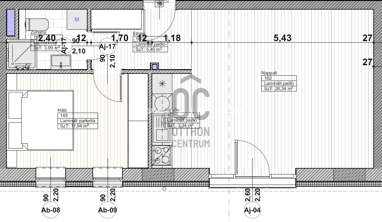
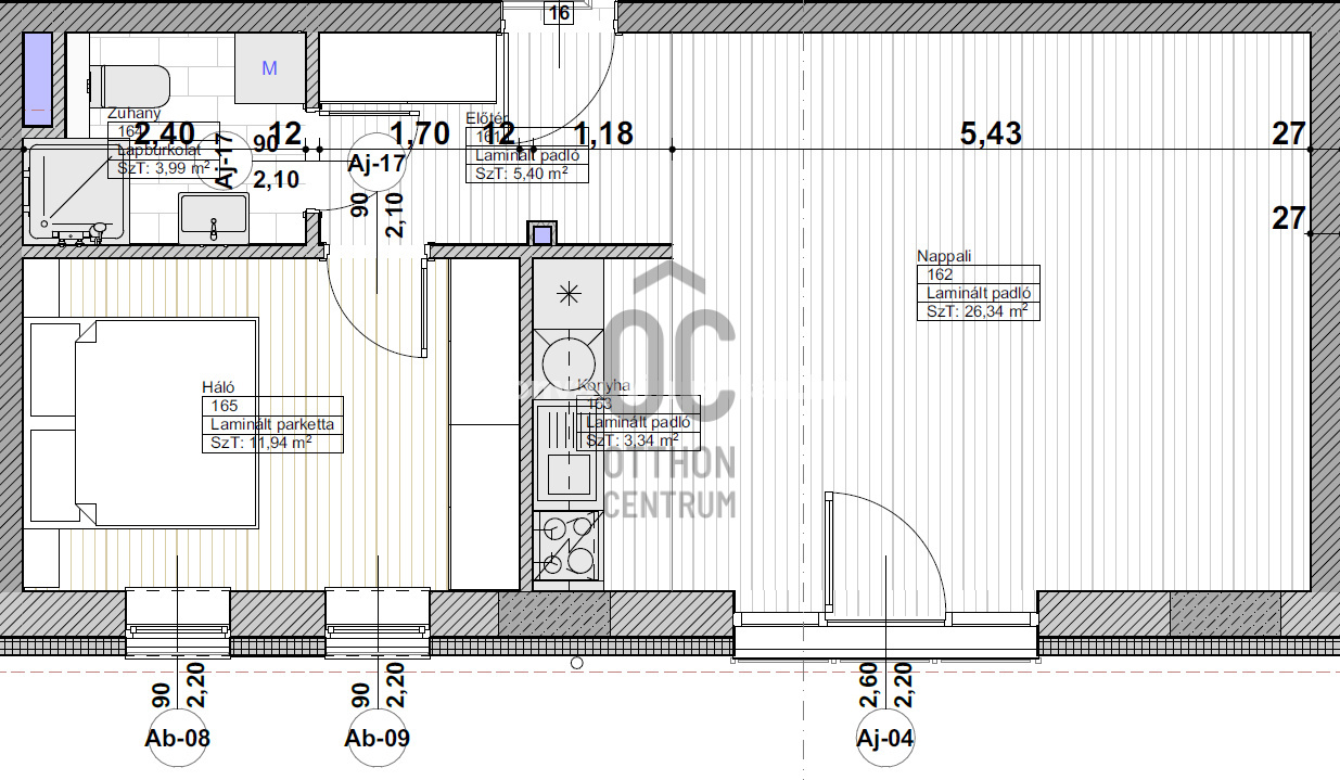
Rooms
open-plan kitchen and living room
29.68 m²
bedroom
11.94 m²
bathroom-toilet
5.4 m²
entryway
3.99 m²
Gerber Dorottya
Credit Expert