102,784,500 Ft
263,000 €
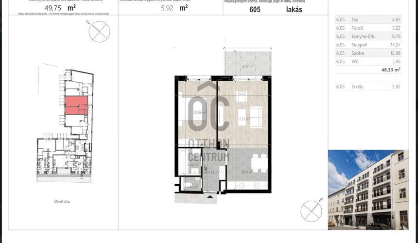
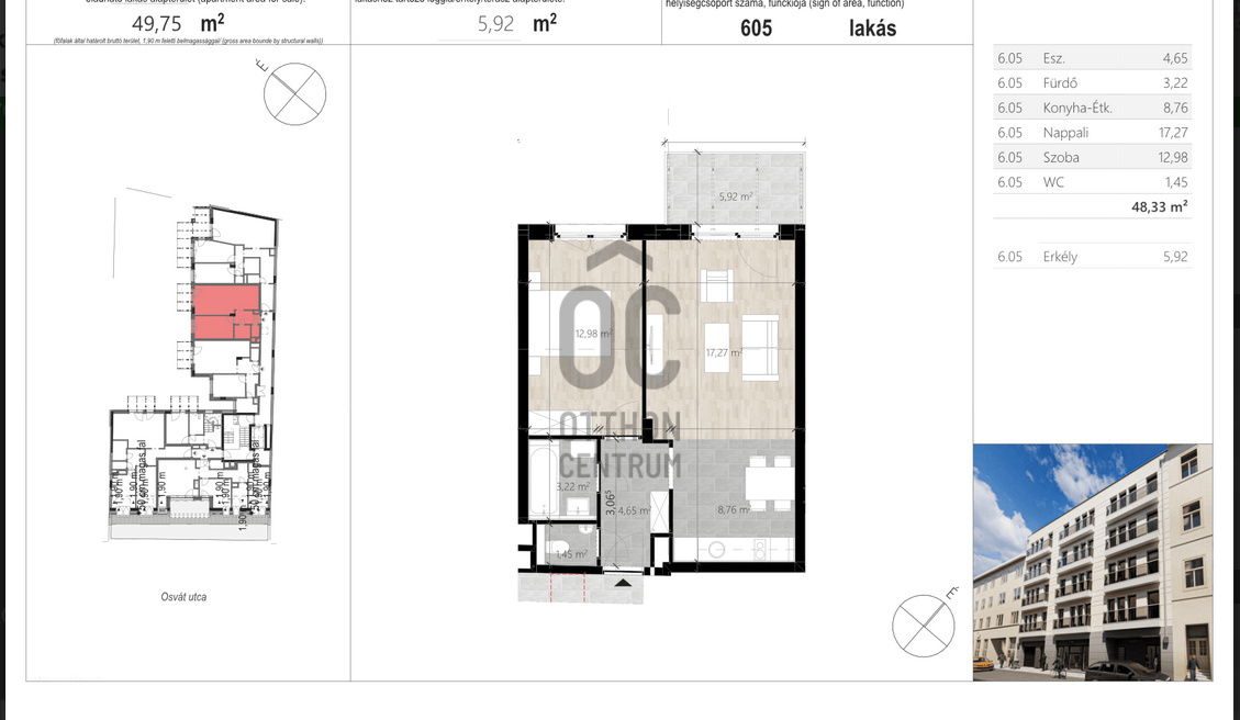
- 48m²
- 2 Rooms
- 6th floor

Kiváló lokáció, értékálló befektetés!
Az ingatlan a hatodik emeleten található. Kertre néző.
Registration Number
P4648-1-0A-06-005
Property Details
Sales
for sale
Legal Status
new
Character
apartment
Construction Method
brick
Net Size
48 m²
Gross Size
52.7 m²
Size of Terrace / Balcony
6 m²
Heating
heat pump
Ceiling Height
260 cm
Orientation
North-West
Staircase Type
enclosed staircase
Condition
Excellent
Condition of Facade
Excellent
Condition of Staircase
Excellent
Year of Construction
2026
Number of Bathrooms
1
Position
garden-facing
Garage
Separately purchasable
Water
Available
Electricity
Available
Sewer
Available
Elevator
available
Rooms
living room
0 m²
open-plan kitchen and dining room
0 m²
entryway
0 m²
bedroom
0 m²
bathroom
0 m²
toilet-washbasin
0 m²
balcony
0 m²

Ruczek Krisztina
Credit Expert