139,159,000 Ft
365,000 €
- 78m²
- 3 Rooms
- 3rd floor
Igényes otthonok Zuglóban
Igényes otthonok Zuglóban
Zugló új városnegyedének központjában kimagasló műszaki felszereltséggel rendelkező lakások!
A társasház 2 épületből áll, 22 + 22 lakásból. Kis létszámának köszönhetően nagyon családias és kellemes. A lakásokhoz mélygarázsban elhelyezett tárolók és parkolóhelyek tartoznak.
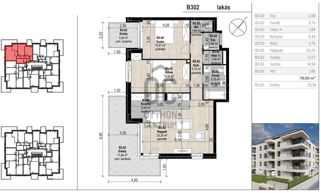
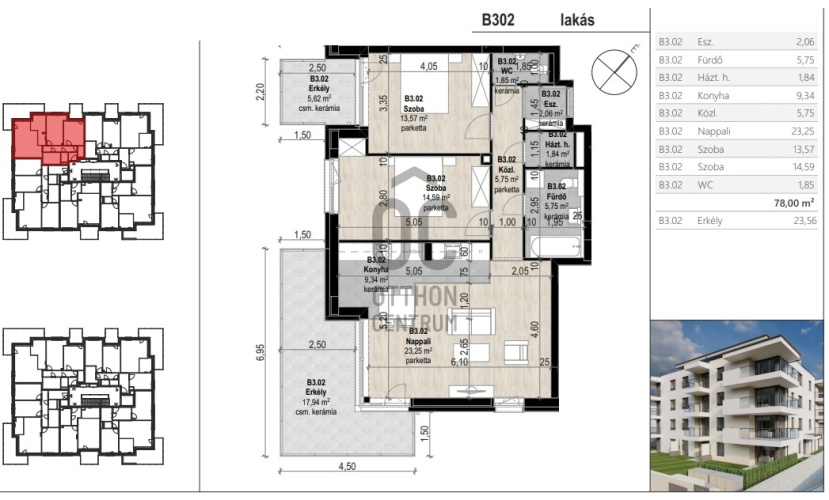
- liftes társasház 3. emeletén 3 szobás ingatlan
- 78 nm alapterületű, 23,56 terasszal
- 3 szobás (amerikai konyhás nappali 33 nm, szobák 14,58 nm, szoba 13,57 nm)
- a tulajdonosok kényelmét biztosítja a háztartási helyiség vagy gardrób helyiség, valamint a 2 mellékhelyiség
- két terasszal rendelkezik (17,94 nm + 5,62 nm)
- fűtés, hűtés: levegős hőszivattyús rendszert használ, mennyezeti fűtés-hűtés kialakítással
- a lakás belső ajtókkal, burkolatokkal, szaniterekkel kerül átadásra
- gépkocsi beálló külön vásárolható
- 3 rétegű hőszigetelő üvegezéssel, vakolható rejtett redőnydobozzal, elektromos alumínium redőnnyel-, távirányítóval.
További információval, megtekintéssel kapcsolatban keressen bizalommal!
Zugló új városnegyedének központjában kimagasló műszaki felszereltséggel rendelkező lakások!
A társasház 2 épületből áll, 22 + 22 lakásból. Kis létszámának köszönhetően nagyon családias és kellemes. A lakásokhoz mélygarázsban elhelyezett tárolók és parkolóhelyek tartoznak.
- liftes társasház 3. emeletén 3 szobás ingatlan
- 78 nm alapterületű, 23,56 terasszal
- 3 szobás (amerikai konyhás nappali 33 nm, szobák 14,58 nm, szoba 13,57 nm)
- a tulajdonosok kényelmét biztosítja a háztartási helyiség vagy gardrób helyiség, valamint a 2 mellékhelyiség
- két terasszal rendelkezik (17,94 nm + 5,62 nm)
- fűtés, hűtés: levegős hőszivattyús rendszert használ, mennyezeti fűtés-hűtés kialakítással
- a lakás belső ajtókkal, burkolatokkal, szaniterekkel kerül átadásra
- gépkocsi beálló külön vásárolható
- 3 rétegű hőszigetelő üvegezéssel, vakolható rejtett redőnydobozzal, elektromos alumínium redőnnyel-, távirányítóval.
További információval, megtekintéssel kapcsolatban keressen bizalommal!
Registration Number
P4616-1-0B-03-302
Property Details
Sales
for sale
Legal Status
new
Character
apartment
Construction Method
brick
Net Size
78 m²
Gross Size
89.7 m²
Size of Terrace / Balcony
23.5 m²
Heating
heat pump
Ceiling Height
260 cm
Number of Levels Within the Property
1
Orientation
South
Staircase Type
enclosed staircase
Condition
Excellent
Condition of Facade
Excellent
Condition of Staircase
Excellent
Neighborhood
quiet, good transport, green, central
Year of Construction
2024
Number of Bathrooms
1
Position
garden-facing
Condominium Garden
yes
Garage
Separately purchasable
Water
Available
Electricity
Available
Sewer
Available
Elevator
available
Storage
Independent
Rooms
entryway
2.06 m²
open-plan kitchen and living room
32.59 m²
room
14.59 m²
room
13.57 m²
corridor
5.75 m²
bathroom-toilet
5.75 m²
toilet-washbasin
1.85 m²
utility room
1.84 m²
terrace
17.94 m²
terrace
5.62 m²
Berkes-Jakus Kinga
Credit Expert