data_sheet.details.realestate.section.main.otthonstart_flag.label
For sale new construction semi-detached house,
P4606-1-0B-NA-000
Kiskunlacháza,
76,000,000 Ft
195,000 €
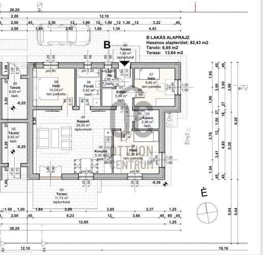
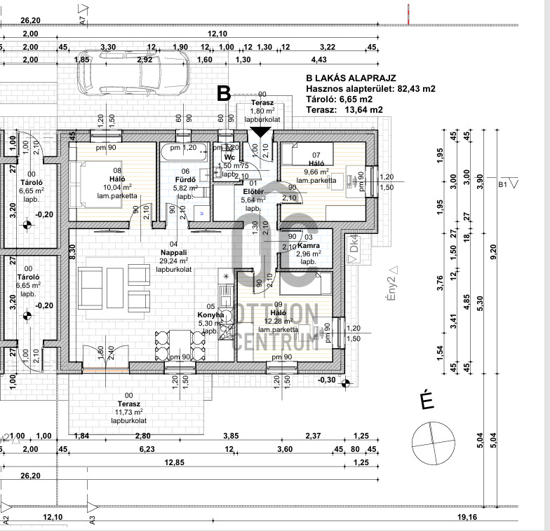
- 91m²
- 4 Rooms


Registration Number
P4606-1-0B-NA-000
Property Details
Sales
for sale
Legal Status
new
Character
house
Construction Method
brick
Net Size
91 m²
Gross Size
92 m²
Plot Size
549 m²
Size of Terrace / Balcony
13.6 m²
Heating
heat pump
Ceiling Height
260 cm
Orientation
North
Condition
Excellent
Condition of Facade
Excellent
Year of Construction
2025
Number of Bathrooms
1
Water
Available
Gas
On the street
Electricity
Available
Sewer
Available
Storage
Independent
Rooms
living room
29.24 m²
open-plan kitchen and dining room
5.3 m²
pantry
2.96 m²
entryway
5.64 m²
storage
6.65 m²
bathroom-toilet
5.82 m²
toilet-washbasin
1.5 m²
room
10.04 m²
room
12.28 m²
room
9.66 m²
terrace
11.93 m²
terrace
1.8 m²

Joó Krisztina
Credit Expert