93,900,000 Ft
242,000 €
- 53.9m²
- 2 Rooms
- 3rd floor




Registration Number
P4180-1-01-03-003
Property Details
Sales
for sale
Legal Status
new
Character
apartment
Construction Method
brick
Net Size
53.9 m²
Gross Size
56.7 m²
Size of Terrace / Balcony
5.5 m²
Heating
heat pump
Ceiling Height
270 cm
Orientation
West
Staircase Type
enclosed staircase
Condition
Excellent
Condition of Facade
Excellent
Condition of Staircase
Excellent
Neighborhood
quiet, green
Year of Construction
2023
Number of Bathrooms
1
Position
courtyard-facing
Garage
Separately purchasable
Water
Available
Electricity
Available
Sewer
Available
Elevator
available
Storage
Separately purchasable
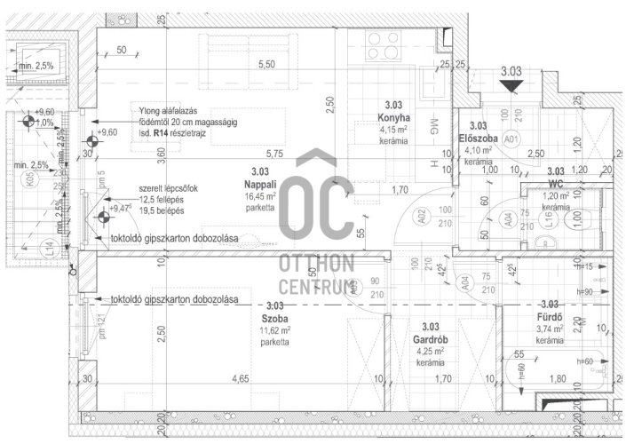
Rooms
entryway
4.1 m²
bathroom
3.74 m²
kitchen
4.15 m²
wardrobe
4.25 m²
living room
16.45 m²
room
11.62 m²
toilet
1.2 m²
terrace
2.16 m²

Németh István
Credit Expert