For sale new construction apartment, P4146-1-01-03-001
Budapest VII. kerület, Külső Erzsébetváros

101,240,000 Ft

261,000 €

  • 66.2m²
  • 3 Rooms
  • 3rd floor

ÚJ ÉPÍTÉSŰ ENERGIAHATÉKONY LAKÁSOK- VII. KERÜLET

A VII. kerület központi részén várja leendő tulajdonosait ez a 44+2 lakásos új építésű társasház.

A lakás:
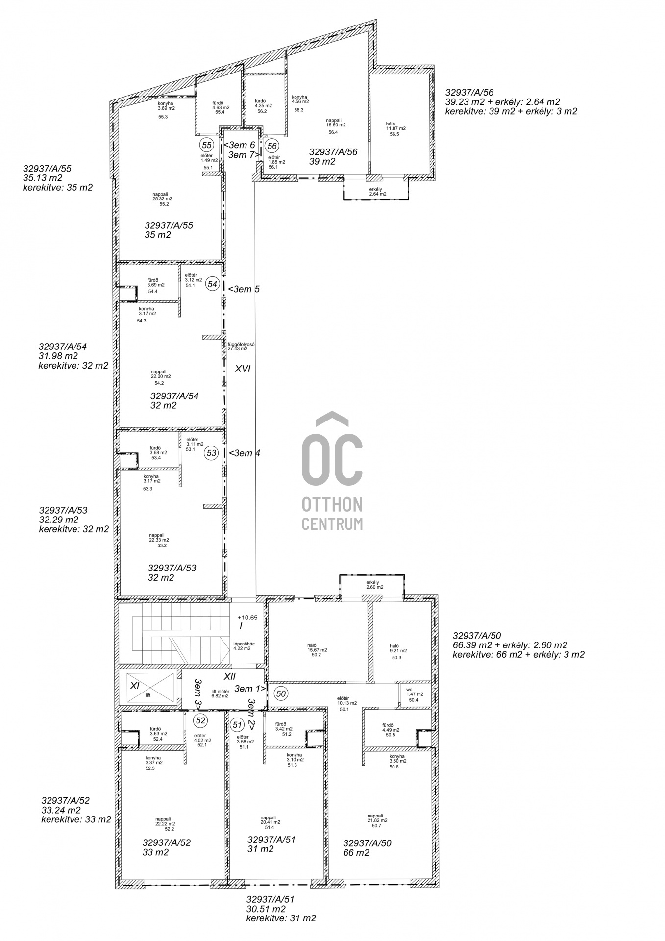
- III. emeleti 3 szobás ingatlan
- 66 nm
- 2,5 nm-es erkély
- nappali- konyha, előszoba, 2 hálószoba, fürdőszoba, wc elosztás
- D- i tájolású, utcai nézetű nappali
- É-i tájolású hálószobák, erkély udvari nézettel

Registration Number

P4146-1-01-03-001

Property Details

Sales
for sale
Legal Status
new
Character
apartment
Construction Method
brick
Net Size
66.2 m²
Gross Size
66 m²
Size of Terrace / Balcony
2.6 m²
Heating
electric, infrared
Ceiling Height
300 cm
Number of Levels Within the Property
1
Orientation
South
Staircase Type
suspended corridor
Condition
Excellent
Condition of Facade
Excellent
Condition of Staircase
Excellent
Basement
Shared
Year of Construction
2022
Number of Bathrooms
1
Position
street-facing
Condominium Garden
yes
Garage
Separately purchasable
Water
Available
Electricity
Available
Sewer
Available
Elevator
available
Storage
Separately purchasable

Rooms

open-plan kitchen and living room
21.82 m²
bedroom
15.67 m²
bedroom
9.21 m²
entryway
10.13 m²
bathroom
4.49 m²
toilet
1.47 m²
balcony
2.6 m²
Tóth Róbert
Tóth Róbert

Credit Expert

From Our Office Listings - I. kerület - Krisztina körút

for sale panel apartment

Index image
data_sheet.details.realestate.section.main.otthonstart_flag.label
21

for sale apartment

Index image
14

for sale apartment

Index image
13

for rent commercial property

Index image
23

for rent commercial property

Index image
19

for sale apartment

Index image
6

for sale apartment

Index image
6

for sale apartment

Index image
8

for sale apartment

Index image
6

for sale apartment

Index image
6

for sale apartment

Index image
6