112,200,000 Ft
293,000 €
- 70m²
- 3 Rooms
- 1st floor
Ezüstparti luxus minőségi lakások!
Kiváló elhelyezkedésű, Balaton-parti telken 4 házból álló projekt lakását kínálom megvételre.
A lakások elvehetetlen balatoni panorámával rendelkeznek, mely a nappaliból, vagy a hatalmas méretű teraszokról télen-nyáron élvezhetők.
A falak fokozott hangszigetelésűek lesznek, valamint. a födémekben 9 cm vastag hő/hangszigetelő táblák akadályozzák majd meg a függőleges irányú hangterjedést.
A házak 15 cm vastagságú külső hőszigetelő rendszerrel ellátottak, a lakások és a közös használatú részek 3 rétegű műanyag nyílászárókkal lesznek ellátva,
lakások hűtése-fűtése a mai kor követelményeinek megfelelően az LG VRF inverteres hőszivattyús levegős rendszerével lesz kiépítve.
A szintek megközelítését a földszintről és a parkolókból lifttel biztosított.
Autóbeálló bruttó 5 Millió Ft / db áron elérhető
Minden beruházását magas minőség, kiváló anyagok és kivitelezés jellemzi.
Ne hagyja ki ezt a kivételes lehetőséget, nem sok ilyen színvonalú projektet, lakást talál a vízpart mellett.
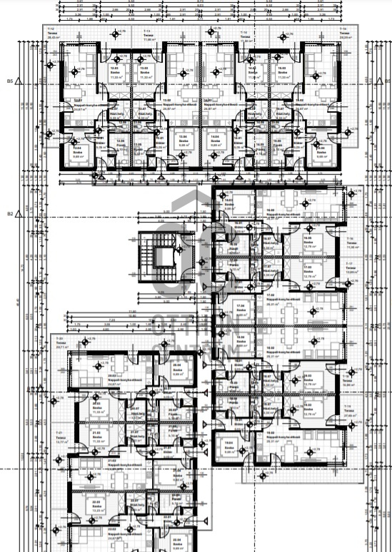
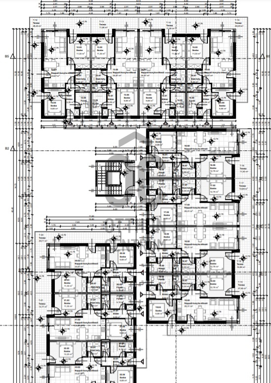
Elosztása:
- C. épület 1 emeleti lakás
- északi tájolás
- 64 m2 lakótér
- teraszkapcsolatos amerikai konyhás nappali étkezővel
- 2 hálószoba
- fürdőszoba, külön WC
-háztartási helyiség
- 12 m2 terasz
Nyaralás?
Befektetés?
Balaton?
Hívjon bizalommal!
Balaton part Siófok Ezüstpart panoráma vízpart luxus minőség
A lakások elvehetetlen balatoni panorámával rendelkeznek, mely a nappaliból, vagy a hatalmas méretű teraszokról télen-nyáron élvezhetők.
A falak fokozott hangszigetelésűek lesznek, valamint. a födémekben 9 cm vastag hő/hangszigetelő táblák akadályozzák majd meg a függőleges irányú hangterjedést.
A házak 15 cm vastagságú külső hőszigetelő rendszerrel ellátottak, a lakások és a közös használatú részek 3 rétegű műanyag nyílászárókkal lesznek ellátva,
lakások hűtése-fűtése a mai kor követelményeinek megfelelően az LG VRF inverteres hőszivattyús levegős rendszerével lesz kiépítve.
A szintek megközelítését a földszintről és a parkolókból lifttel biztosított.
Autóbeálló bruttó 5 Millió Ft / db áron elérhető
Minden beruházását magas minőség, kiváló anyagok és kivitelezés jellemzi.
Ne hagyja ki ezt a kivételes lehetőséget, nem sok ilyen színvonalú projektet, lakást talál a vízpart mellett.
Elosztása:
- C. épület 1 emeleti lakás
- északi tájolás
- 64 m2 lakótér
- teraszkapcsolatos amerikai konyhás nappali étkezővel
- 2 hálószoba
- fürdőszoba, külön WC
-háztartási helyiség
- 12 m2 terasz
Nyaralás?
Befektetés?
Balaton?
Hívjon bizalommal!
Balaton part Siófok Ezüstpart panoráma vízpart luxus minőség
Registration Number
P3839-C-01-01-013
Property Details
Sales
for sale
Legal Status
new
Character
vacation home
Type of Vacation Home
apartment
Construction Method
brick
Net Size
70 m²
Gross Size
76 m²
Size of Terrace / Balcony
12 m²
Heating
heat pump
Ceiling Height
270 cm
Number of Levels Within the Property
4
Orientation
North
View
river or lake view
Staircase Type
suspended corridor
Condition
Excellent
Condition of Facade
Excellent
Condition of Staircase
Excellent
Neighborhood
green
Year of Construction
2023
Number of Bathrooms
1
Position
garden-facing
Water
Available
Gas
On the street
Electricity
Available
Sewer
Available
Elevator
available
Distance to Waterfront
waterfront
Rooms
entryway
5.05 m²
open-plan kitchen and living room
24.87 m²
room
11.33 m²
room
9.69 m²
bathroom-toilet
5.1 m²
toilet-washbasin
1.9 m²
utility room
3.33 m²
terrace
11.5 m²