data_sheet.details.realestate.section.main.otthonstart_flag.label
For sale family house,
OHH166543
Sopron, Belváros-külső
49,500,000 Ft
128,000 €
- 245m²
- 5 Rooms




























Kínálunk Önnek egy sokoldalú ingatlant, amely ideális lehet családoknak vagy befektetőknek. Az ingatlan három szinten terül el, és változatos lehetőségeket nyújt új otthon kialakítására.
INGATLAN RÉSZLETEI:
*
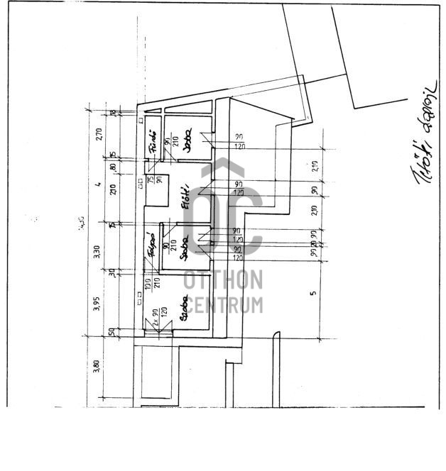
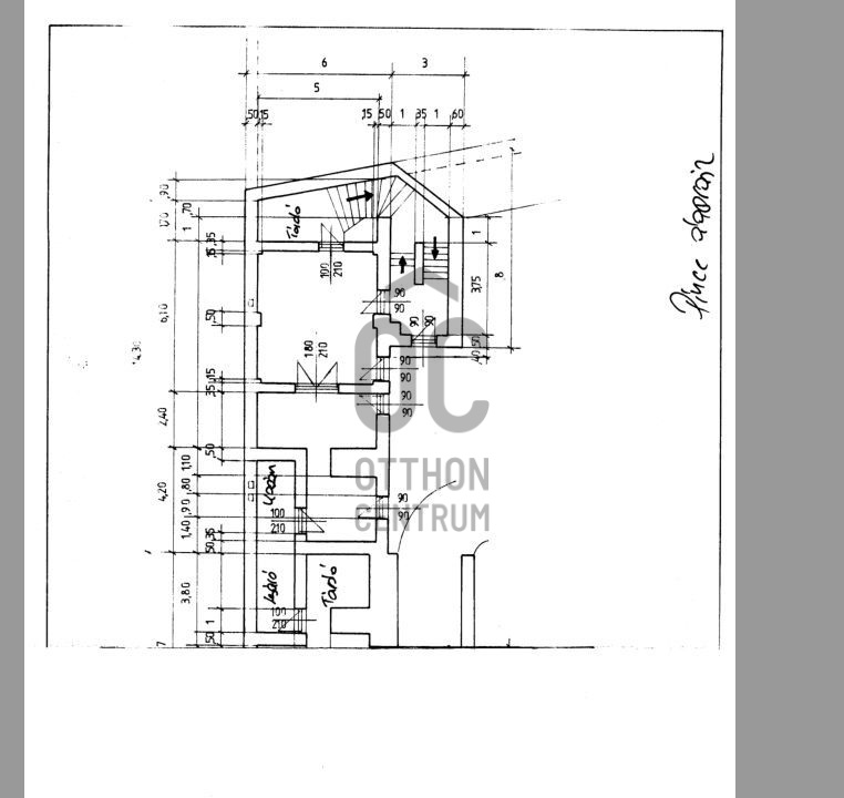
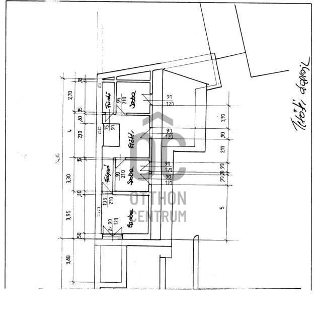
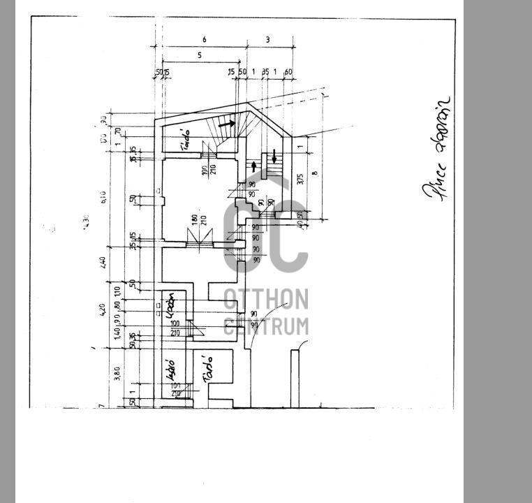
Földszint (83 m2): Két szoba, konyha és fürdőszoba található itt, biztosítva a kényelmes nappali teret minden generációnak.
*
Tetőtér (67 m2): Három szoba és előtér lett kialakítva, így lehetőség nyílik kényelmes hálószobák vagy dolgozószoba kialakítására.
*
Pince (95 m2): Két helyiség, kazánház és több tárolóhelység teszi teljessé az ingatlant, tökéletesen alkalmazkodva a család igényeihez.
*
Különálló garázs és műhely (60 m2): Ideális hely a járművek biztonságos tárolására és kreatív tevékenységeknek.
*
Kert (70 m2): A zöld kert kiváló lehetőséget nyújt a pihenésre és kerti partikra.
TOVÁBBI INFORMÁCIÓK:
*
Az ingatlan felújítandó állapotban van, így lehetőség nyílik egyedi elképzelések megvalósítására és az otthon személyre szabására.
*
Az elektromos kapuval zárt udvarban elhelyezkedő ingatlan egy csendes, mindössze három lakásos közösség része, amely biztonságot és nyugalmat kínál.
IDEÁLIS LEHETŐSÉG AZOKNAK, AKIK SZERETIK SAJÁT ELKÉPZELÉSEIKET MEGVALÓSÍTANI!
Registration Number
OHH166543
Property Details
Sales
for sale
Legal Status
used
Character
house
Construction Method
other
Net Size
245 m²
Heating
other
Condition
To be renovated
Year of Construction
1900
Rooms
garage
60 m²
kitchen
0 m²
dining room
0 m²
living room
0 m²
toilet
0 m²
bathroom
0 m²
entryway
0 m²
room
0 m²
room
0 m²
room
0 m²
corridor
0 m²
bathroom
0 m²
storage
0 m²
room
0 m²
room
0 m²
storage
0 m²
utility room
0 m²
staircase
0 m²

Horváth Zsoltné Edit
Credit Expert