data_sheet.details.realestate.section.main.otthonstart_flag.label
For sale family house,
OHH163841
Miskolc, Hámor
49,900,000 Ft
129,000 €
- 78m²
- 3 Rooms
- ground floor


















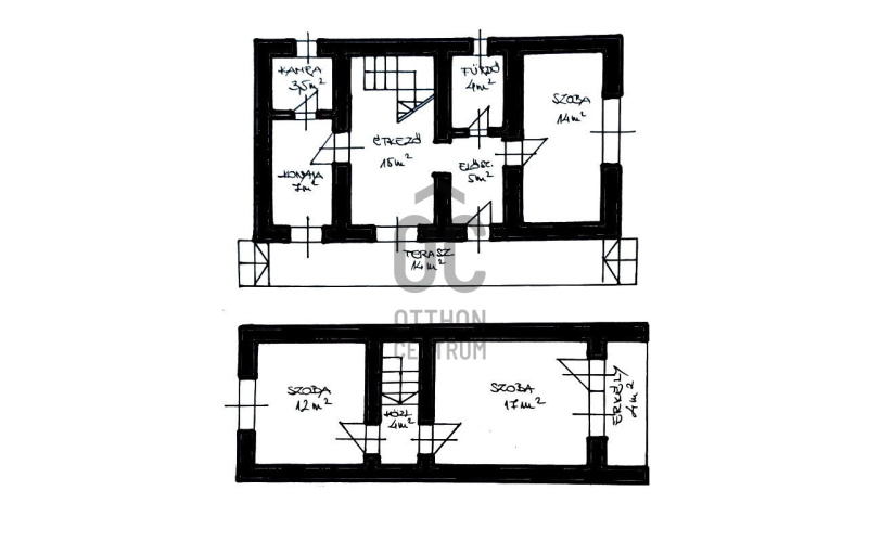
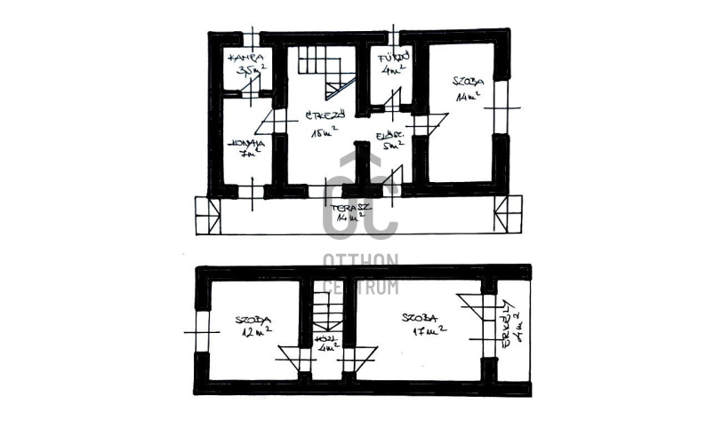
Az ELADÓ MISKOLC FELSŐHÁMORI 85 m2-es CSALÁDI HÁZ jellemzői:
- a házat 1982-ben építették szilikátból és téglából kő lábazatra
- jó elrendezésű épület, családi háznak vagy nyaralónak is kiválóan alkalmas
- vegyes tüzelésű kazán fűti a radiátorokat, de van gázkazán lehetőség is kiépítve
- a meleg vizet villany boiler adja a fürdőszobába és a konyhába
- a nyílászárók és a tetőszerkezet jó állapotúak
- folyamatos karbantartás alatt állt, ezért a ház jó állapotú, költözhető
- a tetőtérben két szoba, de akár ott is lehet fürdőt kialakítani
- a telek a település közepén folyó Szinva-patakig tart, ott is van kapu a telekre
- az házhoz tartozik egy nagy méretű kazánház, amely műhelyként is funkcionál
- fatároló és egy pergola is van szalonnasütővel
- buszmegálló (5,15) csak 200 méter távolságra, a városba jutás így könnyen megoldott
- a Lillafüredi függőkertek csak 600 méterre, a Palota-szálló és a kisvonat közelsége romantikus környezetet biztosít
- a Bükk szívében van, rengeteg túrista útvonal teszi lehetővé a túrázás örömét
Registration Number
OHH163841
Property Details
Sales
for sale
Legal Status
used
Character
house
Construction Method
other
Net Size
78 m²
Plot Size
359 m²
Size of Terrace / Balcony
14 m²
Heating
other
Condition
Good
Year of Construction
1982
Rooms
entryway
5 m²
bathroom
4 m²
room
14 m²
dining room
15 m²
kitchen
7 m²
pantry
3 m²
terrace
14 m²
staircase
4 m²
room
12 m²
room
17 m²
loggia
4 m²

Varkolyné Viktória
Credit Expert