118,000,000 Ft
310,000 €
- 54m²
- 3 Rooms
- 2nd floor
Balatonszemes , vízparti nyaraló keresi új tulajdonosát.
A Szemespart 2 , Balatonszemes egyik legkülönlegesebb pontján, közvetlenül a kikötő mellett, a vízparton épült meg – ott, ahol a csendes zöld környezet és a balatoni élet pezsgése tökéletes egyensúlyt alkot.
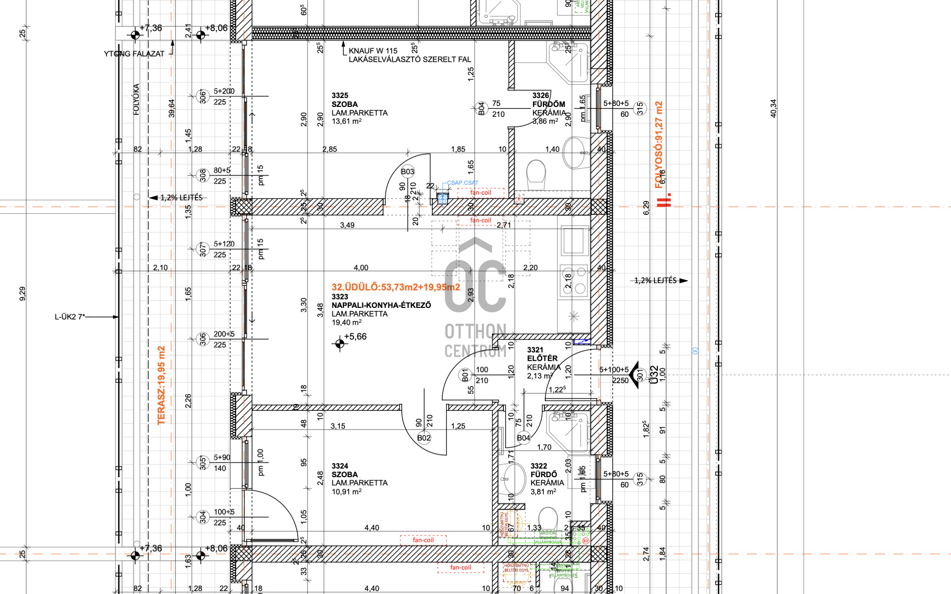
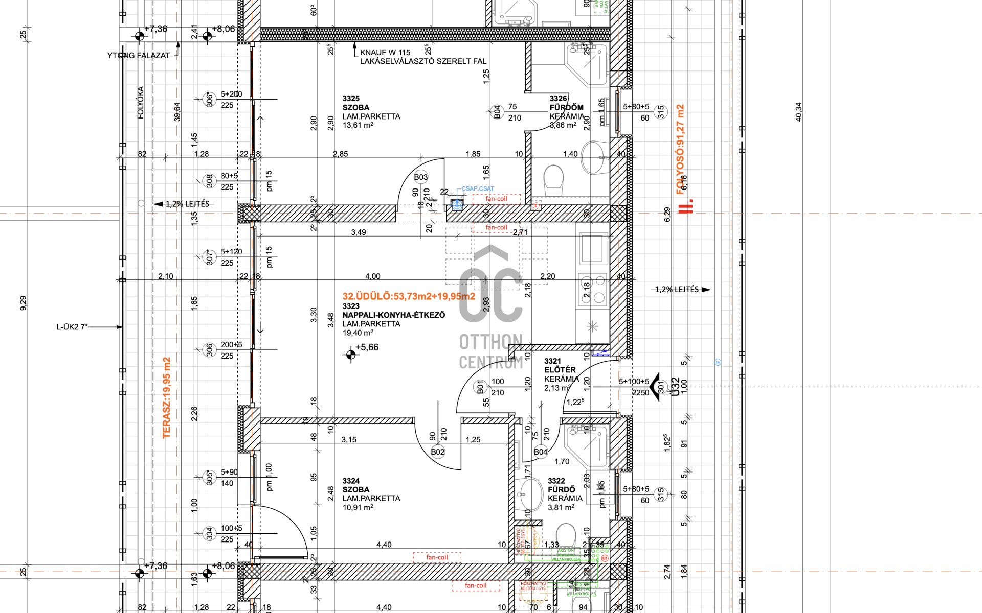
A 2023- ban átadott 54 nm-es lakás a második emeleten található , Balatonra néző panorámával.
Elosztása - 2 hálószoba, tágas nappali, amerikai konyha-étkező, 2 fürdőszoba, 20 nm-es teraszkapcsolattal.
Az otthon melegét hőszivattyús fűtés biztosítja,
A hőszigetelt fa nyílászárók elektromos redőnnyel, szúnyoghálóval felszereltek.
Modern, gépesített konyha,stílusos ,igényes burkolatok, bútorok , napfényes terek jellemzik a nyugati fekvés lakást.
A teraszon elektromos árnyékoló nyújt védelmet a forró nyári napokon.
Az akadálymentesítést üvegfalú lift biztosítja , az emeleti szintekhez.
A földszinten elhelyezett saját, zárt 5 nm-es tároló a vételár részét képezi.
Kiépített elektromos autótöltő, közös sup-tároló, áll a lakók rendelkezésére.
A társasház zárt udvarában a lakáshoz ,2 db parkolóhely biztosított.
A tulajdonos teljes berendezéssel együtt szeretné a lakást értékesíteni , ezt az irányár tartalmazza.
A közös költség 23.000,-Ft, amelyben egyebekben a felújítási alap, lakásbiztosítás, lépcsőház takarítás, liftkezelés, udvar, kert takarítása és ápolása is beletartozik.
Kifogástalan állapotú, modern nyaraló, mely meseszerű vízparti környezetben és panorámával várja új tulajdonosait.
Télen, nyáron ideális lakhatásra, pihenéshez, feltöltődéshez, de kiváló lehetőség befektetésként is.
A vízpart közvetlen közelsége, az Északi-part szemet gyönyörködtető látványa mellett, hívogatóak a hangulatos kis település minőségi éttermei, borászata, péksége, vagy cukrászdái.
A felújított kerékpárutakon könnyen megközelíthető bármelyik szomszédos település, miközben számos lehetőség nyílik a kikapcsolódáshoz, hajózáshoz.
Ha felkeltette az érdeklődését, hívjon bizalommal!
A Szemespart 2 , Balatonszemes egyik legkülönlegesebb pontján, közvetlenül a kikötő mellett, a vízparton épült meg – ott, ahol a csendes zöld környezet és a balatoni élet pezsgése tökéletes egyensúlyt alkot.
A 2023- ban átadott 54 nm-es lakás a második emeleten található , Balatonra néző panorámával.
Elosztása - 2 hálószoba, tágas nappali, amerikai konyha-étkező, 2 fürdőszoba, 20 nm-es teraszkapcsolattal.
Az otthon melegét hőszivattyús fűtés biztosítja,
A hőszigetelt fa nyílászárók elektromos redőnnyel, szúnyoghálóval felszereltek.
Modern, gépesített konyha,stílusos ,igényes burkolatok, bútorok , napfényes terek jellemzik a nyugati fekvés lakást.
A teraszon elektromos árnyékoló nyújt védelmet a forró nyári napokon.
Az akadálymentesítést üvegfalú lift biztosítja , az emeleti szintekhez.
A földszinten elhelyezett saját, zárt 5 nm-es tároló a vételár részét képezi.
Kiépített elektromos autótöltő, közös sup-tároló, áll a lakók rendelkezésére.
A társasház zárt udvarában a lakáshoz ,2 db parkolóhely biztosított.
A tulajdonos teljes berendezéssel együtt szeretné a lakást értékesíteni , ezt az irányár tartalmazza.
A közös költség 23.000,-Ft, amelyben egyebekben a felújítási alap, lakásbiztosítás, lépcsőház takarítás, liftkezelés, udvar, kert takarítása és ápolása is beletartozik.
Kifogástalan állapotú, modern nyaraló, mely meseszerű vízparti környezetben és panorámával várja új tulajdonosait.
Télen, nyáron ideális lakhatásra, pihenéshez, feltöltődéshez, de kiváló lehetőség befektetésként is.
A vízpart közvetlen közelsége, az Északi-part szemet gyönyörködtető látványa mellett, hívogatóak a hangulatos kis település minőségi éttermei, borászata, péksége, vagy cukrászdái.
A felújított kerékpárutakon könnyen megközelíthető bármelyik szomszédos település, miközben számos lehetőség nyílik a kikapcsolódáshoz, hajózáshoz.
Ha felkeltette az érdeklődését, hívjon bizalommal!
Registration Number
NY012977
Property Details
Sales
for sale
Legal Status
used
Character
vacation home
Type of Vacation Home
apartment
Construction Method
brick
Net Size
54 m²
Gross Size
54 m²
Size of Terrace / Balcony
20 m²
Heating
heat pump
Ceiling Height
250 cm
Orientation
South-West
View
river or lake view
Staircase Type
enclosed staircase
Condition
Excellent
Condition of Facade
Excellent
Condition of Staircase
Excellent
Neighborhood
quiet, good transport, green, central
Year of Construction
2023
Number of Bathrooms
1
Position
garden-facing
Water
Available
Electricity
Available
Sewer
Available
Elevator
available
Rooms
bedroom
1 m²
bedroom
1 m²
living room
1 m²
open-plan kitchen and dining room
1 m²
bathroom
1 m²
bathroom
1 m²
terrace
1 m²
Edve János
Credit Expert