data_sheet.details.realestate.section.main.otthonstart_flag.label
For sale apartment,
H515613
Budapest III. kerület, Óbuda
80,826,750 Ft
225,000 €
- 62m²
- 3 Rooms
- 2nd floor
3.kerület Óbudán, az Árpád fejedelem útján, Dunára és a hegyekre panorámás, ERKÉLYES, 65 nm-es, 2,5 szobás lakás eladó
Fedezze fel ezt a különleges lehetőséget Budapest III. kerületének szívében, Óbudán, ahol egy nettó 62 nm + 5 nm erkélyes, 2. emeleti felújítandó lakás várja új tulajdonosát. A nappaliból nyíló erkély rálátást kínál a Dunára, míg a hálószoba ablakai a Budai hegyekre biztosítják a kilátást.
A lakás világos, napfényes helyiségekkel rendelkezik, amelyek kellemes atmoszférát biztosítanak. Az ingatlanhoz tartozó 5 nm-es erkély lehetőséget ad arra, hogy a szabadban is élvezhesse a friss levegőt, miközben csodálhatja a környék panorámáját.
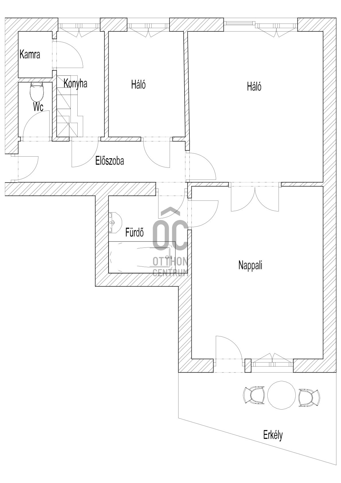
Az ingatlan kiváló adottsága révén könnyen kialakítható amerikai konyhás nappali , 2 háló és 2 fürdőszoba is.
A lakás főbb jellemzői:
- nettó 62 nm,
- 5 nm erkély, rálátással a Dunára,
- 2 és fél szoba
- fa nyílászárók,
- világos, napfényes,
- távfűtés, egyedi méréssel,
- kamra,
- kádas fürdőszoba,
- külön wc,
- lift,
- közös pince,
- közös költség: 19.840 Ft,
- azonnal költözhető
A ház:
1965-ben épült csúsztatott zsalús társasház, melyben egy felújított lift segíti az emeletekre való feljutást. A házban közös használatú pince található.
Homlokzata és lépcsőháza jó állapotú. A társaház mögött zöld park található, ahol lehet sétálni, relaxálni.
A lakókóközösség kultúrált, csendes.
Környezet:
Óbuda kedvelt városrész, amely nemcsak a nyugodt, csendes környezetéről ismert, hanem a kitűnő közlekedési lehetőségeiről is. A közeli hév, valamint busz- és villamosmegállók révén könnyedén elérheti Budapest belvárosát, így a napi ingázás egyszerű és gyors. A közelben található üzletek, éttermek és szolgáltatások mind hozzájárulnak a kényelmes életvitelhez, míg a zöld területek és parkok lehetőséget adnak a szabadidős tevékenységekre. A környék biztonságos, és a szomszédság barátságos, ami különösen fontos lehet családok számára. A közeli iskola és óvoda révén a gyermekek számára is ideális környezetet biztosít.
Jöjjön és álmodjuk meg együtt új otthonát!
Várom megtisztelő hívását a hét minden napján!
A lakás világos, napfényes helyiségekkel rendelkezik, amelyek kellemes atmoszférát biztosítanak. Az ingatlanhoz tartozó 5 nm-es erkély lehetőséget ad arra, hogy a szabadban is élvezhesse a friss levegőt, miközben csodálhatja a környék panorámáját.
Az ingatlan kiváló adottsága révén könnyen kialakítható amerikai konyhás nappali , 2 háló és 2 fürdőszoba is.
A lakás főbb jellemzői:
- nettó 62 nm,
- 5 nm erkély, rálátással a Dunára,
- 2 és fél szoba
- fa nyílászárók,
- világos, napfényes,
- távfűtés, egyedi méréssel,
- kamra,
- kádas fürdőszoba,
- külön wc,
- lift,
- közös pince,
- közös költség: 19.840 Ft,
- azonnal költözhető
A ház:
1965-ben épült csúsztatott zsalús társasház, melyben egy felújított lift segíti az emeletekre való feljutást. A házban közös használatú pince található.
Homlokzata és lépcsőháza jó állapotú. A társaház mögött zöld park található, ahol lehet sétálni, relaxálni.
A lakókóközösség kultúrált, csendes.
Környezet:
Óbuda kedvelt városrész, amely nemcsak a nyugodt, csendes környezetéről ismert, hanem a kitűnő közlekedési lehetőségeiről is. A közeli hév, valamint busz- és villamosmegállók révén könnyedén elérheti Budapest belvárosát, így a napi ingázás egyszerű és gyors. A közelben található üzletek, éttermek és szolgáltatások mind hozzájárulnak a kényelmes életvitelhez, míg a zöld területek és parkok lehetőséget adnak a szabadidős tevékenységekre. A környék biztonságos, és a szomszédság barátságos, ami különösen fontos lehet családok számára. A közeli iskola és óvoda révén a gyermekek számára is ideális környezetet biztosít.
Jöjjön és álmodjuk meg együtt új otthonát!
Várom megtisztelő hívását a hét minden napján!
Registration Number
H515613
Property Details
Sales
for sale
Legal Status
used
Character
apartment
Construction Method
brick
Net Size
62 m²
Gross Size
65 m²
Size of Terrace / Balcony
5 m²
Heating
individual district heating
Ceiling Height
265 cm
Number of Levels Within the Property
1
Orientation
East
View
city view, river or lake view
Staircase Type
enclosed staircase
Condition
To be renovated
Condition of Facade
Good
Condition of Staircase
Good
Basement
Shared
Year of Construction
1965
Number of Bathrooms
1
Position
street-facing
Common Costs
19840
Water
Available
Gas
Available
Electricity
Available
Sewer
Available
Elevator
available
Distance to Waterfront
waterfront
Rooms
entryway
5.5 m²
kitchen
4.5 m²
pantry
2 m²
toilet
2.5 m²
bedroom
6.9 m²
bedroom
16.2 m²
living room
17.5 m²
bathroom
7.5 m²
balcony
5 m²
Gerber Dorottya
Credit Expert