For sale apartment, H515416
Budapest XIII. kerület, Újlipótváros, Bessenyei utca

174,000,000 Ft

487,000 €

  • 90m²
  • 3 Rooms
  • 9th floor
Exclusive Contract

XIII. Újlipótváros, Nagy teraszos, 3 szobás lakás, dupla komfort

XIII. Újlipótváros - Cézár Házak
Legfelső emeleten, a IX. emeleten eladóvá vált egy nagy teraszos, panorámás lakás
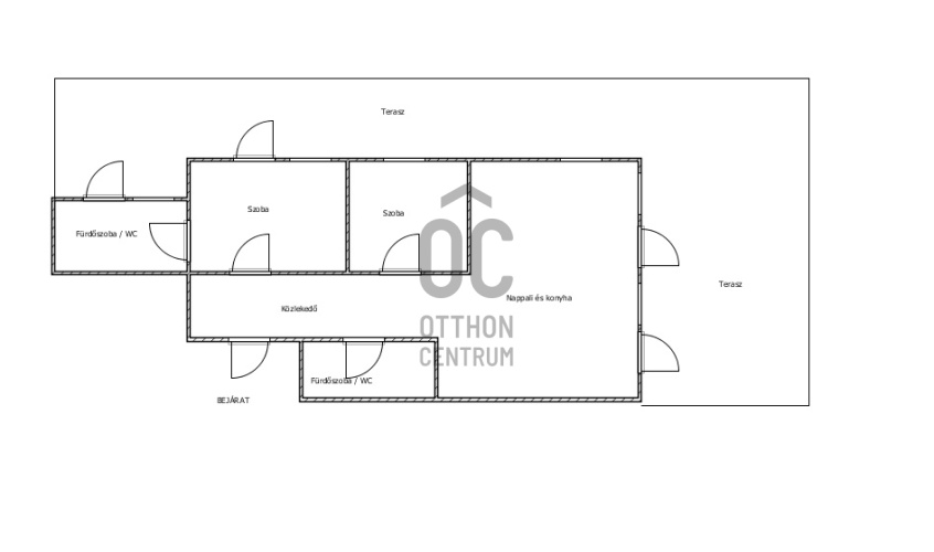
Ingatlan 3 szobás, nappali + 2 szoba, dupla komfortos ( kettő fürdőszobás - 2 wc és 2 zuhanyzó )
Alapterülete a tulajdoni lapon: 90nm
Hasznos alapterület: 68nm + 45nm terasz
Fűtés: házközponti egyedi méréssel
Közös költség 395 Ft/nm/hó = 35.550.- Ft: 0-24 portaszolgálat, lift, felújítási alap, és az egyéb kötelező költségek (takarítás, szemét .. )
Víz, fűtés és villany egyedi, saját mérőórákkal
3 db Klíma van felszerelve
Belmagasság: 270cm
Teraszra ki lett vezetve a víz, öntözés például így megoldható
Megtekintés előre egyeztetett időpontokban, hétköznaponként

Registration Number

H515416

Property Details

Sales
for sale
Legal Status
used
Character
apartment
Construction Method
brick
Net Size
90 m²
Gross Size
110 m²
Size of Terrace / Balcony
48 m²
Heating
central heating
Ceiling Height
290 cm
Number of Levels Within the Property
1
Orientation
South-West
Staircase Type
enclosed staircase
Condition
Good
Condition of Facade
Good
Condition of Staircase
Good
Year of Construction
2005
Number of Bathrooms
2
Position
street-facing
Common Costs
35550
Water
Available
Electricity
Available
Sewer
Available
Elevator
available

Rooms

open-plan kitchen and living room
24 m²
room
12 m²
room
8.5 m²
bathroom-toilet
12 m²
bathroom-toilet
2 m²
terrace
45 m²
Térmegi László
Térmegi László

Credit Expert

From Our Office Listings - XX. kerület - Török Flóris utca

for sale panel apartment

Index image
data_sheet.details.realestate.section.main.otthonstart_flag.label
16

for sale commercial property

Index image
5

for sale apartment

Index image
data_sheet.details.realestate.section.main.otthonstart_flag.label
6

for sale family house

Index image
data_sheet.details.realestate.section.main.otthonstart_flag.label
26

for sale semi-detached house

Index image
data_sheet.details.realestate.section.main.otthonstart_flag.label
17