155,000,000 Ft
433,000 €
- 220m²
- 4 Rooms
Cserszegtomaj csendes, nyugodt részén, egy zsákutcában kínálok megvételre egy igazán különleges, impozáns megjelenésű, örökpanorámás családi házat, mely egy karnyújtásnyira vana Balatontól, gyönyörű erdő ölelésében.
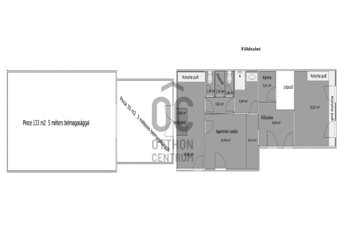
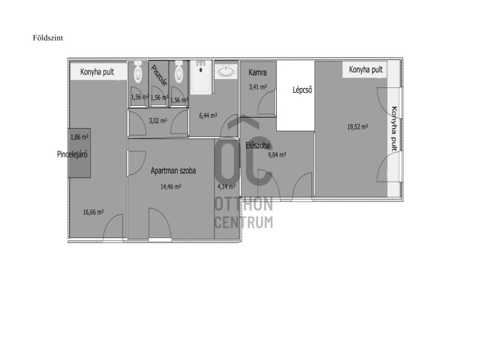
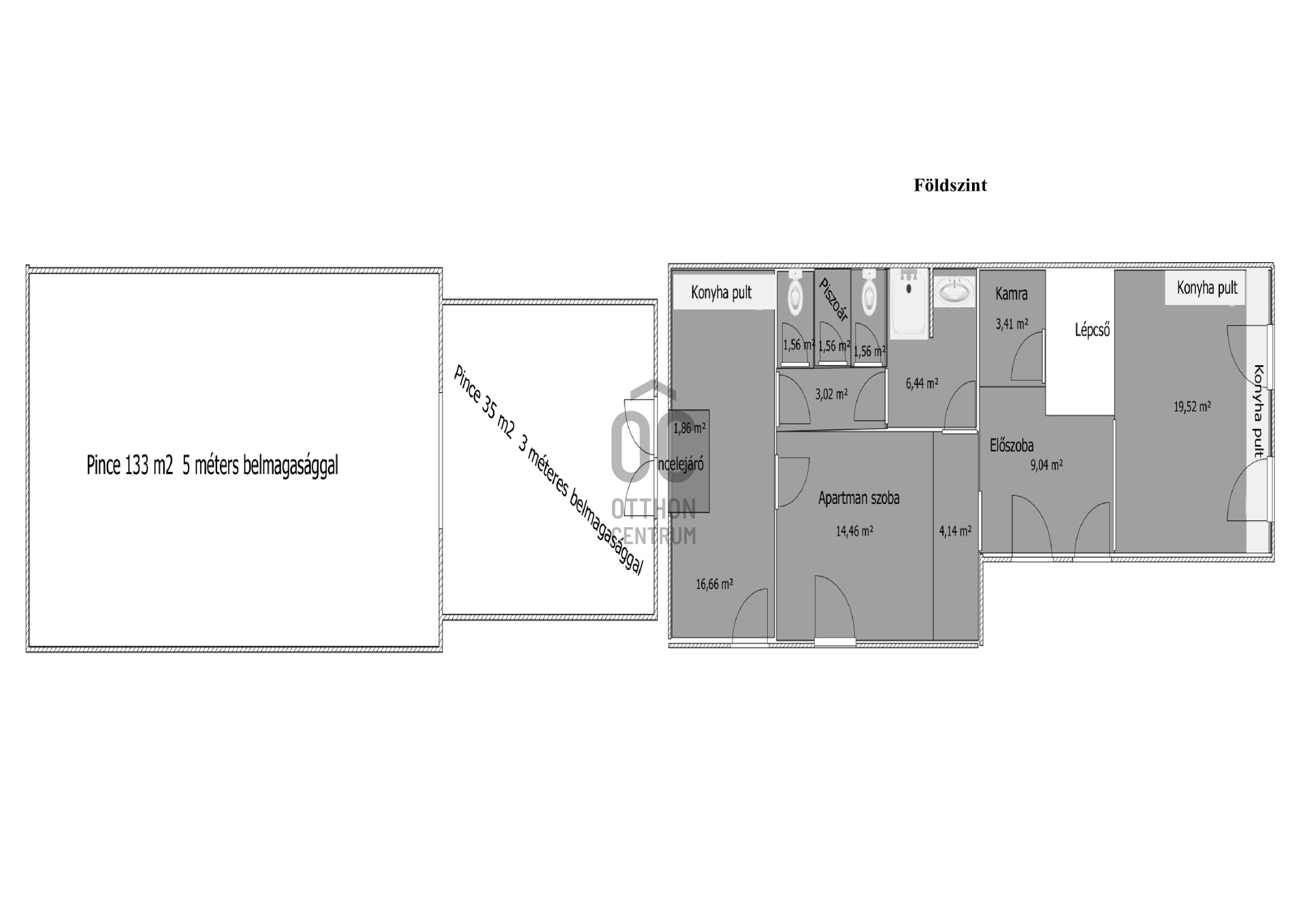
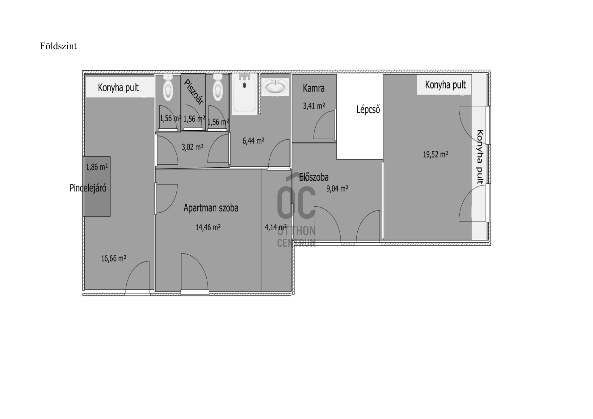
Az ingatlan egyik legnagyobb értéke a föld alatt található, hatalmas borospince, amely nemcsak különleges hangulatot áraszt, hanem komoly lehetőségeket is rejt magában. Az előző tulajdonosok borászatot üzemeltettek itt, így a pince akár hasonló célra, akár exkluzív hobbitérként, tárolóként vagy vendégfogadásra is kiválóan hasznosítható.
A ház belső kialakítása tágas és élhető tereket kínál:
- 4 kényelmes szoba,
- egy tágas étkező,
- 2 fürdőszoba és több mellékhelység
- valamint egy full panorámás nappali szolgálja a mindennapi kényelmet.
A ház fűtése pellet kazánnal van megoldva. Vegyestüzelésű illetve gázkazán is van, tartályos gáz telepíthető, a meleg víz ellátás elektromos.
BWT aqa perla víz lágyító van beszerelve.
Áramellátás: 3*16 Amper
Az ingatlan duplakomfortos, emellett külön vendégrészleggel is rendelkezik, így nagyobb családoknak, többgenerációs együttélésre vagy vendégek fogadására is ideális választás.
A pihenést tavasztól egészen őszig egy kellemes, árnyékos terasz teszi teljessé, ahol a csend, a nyugalom és a gyönyörű környezet garantált.
A kivételes adottságú kert akár medence kiépítésére is alkalmas, így fürdőzés közben csodálhatja a panorámás tájat.
Az udvaron akár 4 autó is kényelmesen parkolhat, fedett garázs is található.
Ez az ingatlan tökéletes választás mindazok számára, akik nyugodt, exkluzív környezetben keresnek tágas otthont, különleges extrákkal és páratlan panorámával.
Az alaprajz és a négyzetméter adatok tájékoztató jellegűek, a tulajdonostól származnak.
Az ingatlan egyik legnagyobb értéke a föld alatt található, hatalmas borospince, amely nemcsak különleges hangulatot áraszt, hanem komoly lehetőségeket is rejt magában. Az előző tulajdonosok borászatot üzemeltettek itt, így a pince akár hasonló célra, akár exkluzív hobbitérként, tárolóként vagy vendégfogadásra is kiválóan hasznosítható.
A ház belső kialakítása tágas és élhető tereket kínál:
- 4 kényelmes szoba,
- egy tágas étkező,
- 2 fürdőszoba és több mellékhelység
- valamint egy full panorámás nappali szolgálja a mindennapi kényelmet.
A ház fűtése pellet kazánnal van megoldva. Vegyestüzelésű illetve gázkazán is van, tartályos gáz telepíthető, a meleg víz ellátás elektromos.
BWT aqa perla víz lágyító van beszerelve.
Áramellátás: 3*16 Amper
Az ingatlan duplakomfortos, emellett külön vendégrészleggel is rendelkezik, így nagyobb családoknak, többgenerációs együttélésre vagy vendégek fogadására is ideális választás.
A pihenést tavasztól egészen őszig egy kellemes, árnyékos terasz teszi teljessé, ahol a csend, a nyugalom és a gyönyörű környezet garantált.
A kivételes adottságú kert akár medence kiépítésére is alkalmas, így fürdőzés közben csodálhatja a panorámás tájat.
Az udvaron akár 4 autó is kényelmesen parkolhat, fedett garázs is található.
Ez az ingatlan tökéletes választás mindazok számára, akik nyugodt, exkluzív környezetben keresnek tágas otthont, különleges extrákkal és páratlan panorámával.
Az alaprajz és a négyzetméter adatok tájékoztató jellegűek, a tulajdonostól származnak.
Registration Number
H515195
Property Details
Sales
for sale
Legal Status
used
Character
house
Construction Method
brick
Net Size
220 m²
Gross Size
260 m²
Plot Size
1,670 m²
Size of Terrace / Balcony
38 m²
Heating
mixed circulator
Ceiling Height
100 cm
Number of Levels Within the Property
2
Orientation
South-West
Condition
Good
Condition of Facade
Good
Basement
Independent
Year of Construction
1989
Number of Bathrooms
2
Condominium Garden
yes
Garage
Included in the price
Water
Available
Electricity
Available
Rooms
entryway
9 m²
kitchen
19.5 m²
pantry
3.4 m²
bathroom
6.4 m²
bathroom
5.9 m²
toilet
1.5 m²
toilet
1.6 m²
toilet
1.5 m²
toilet
3 m²
room
14.4 m²
room
18 m²
room
18 m²
room
9.2 m²
corridor
4.15 m²
corridor
7.9 m²
corridor
7.45 m²
entryway
9 m²
cellar
168 m²
staircase
3.9 m²
living room
25.8 m²
balcony
8.3 m²
terrace
30 m²
boiler room
19.34 m²
garage
28.5 m²