data_sheet.details.realestate.section.main.otthonstart_flag.label
For sale semi-detached house,
H514697
Debrecen, Biharikert
119,000,000 Ft
304,000 €
- 159m²
- 6 Rooms
Egy ház, három lehetőség – többgenerációs otthon vagy befektetés Debrecen Biharikertben!
Debrecen közkedvelt, családbarát városrészében, a Biharikertben eladó egy 159 m²-es, gázfűtéses, klimatizált ikerház, 320 m²-es saroktelken.
Bár az ingatlan ikerházként szerepel, kialakításának köszönhetően szinte teljesen különálló épület, mindössze egy fal érintkezik a szomszédos ingatlannal,
így az otthon nyugodt, privát életteret biztosít.
Különlegessége, hogy 3 lakrészből áll, amelyek külön bejárattal is rendelkeznek, ugyanakkor igény szerint teljesen egyben is használhatók,
így rugalmasan alakítható az új tulajdonos elképzelései szerint.
Ideális választás:
- több generáció együttélésére
- befektetésre vagy kiadásra
- szépségszalon, iroda vagy otthoni vállalkozás kialakítására.
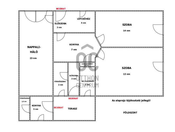
Az ingatlan elrendezése:
Alsó szint – 2 lakrész:
1. lakrész – 30 m²
- világos nappali hatalmas ablakokkal
- galériás hálórész
- konyha
- zuhanyzós fürdőszoba WC-vel
2. lakrész – 49,5 m²
- előszoba
- konyha
- 2 szoba
- zuhanyzós fürdőszoba
- WC / kazánház
- közlekedő
Emeleti lakrész:
– 79,5 m²
- 2 szoba
- nappali–étkező
- konyha
- zuhanyzós fürdőszoba
- külön WC
- közlekedő
Felújítások – 2021
Az ingatlan több korszerűsítésen esett át:
- alsó és felső szinten 1-1 klíma került beszerelésre
- műanyag bejárati ajtók
- 10 cm-es szigetelés
- három fürdőszoba új burkolatot kapott
- Immergas gázkazán
- fedett terasz polikarbonát borítással
További előnyök
- 320 m²-es saroktelek
- 3 külön bejáratú lakrész
- rugalmasan alakítható elrendezés
- tehermentes ingatlan
Megtekintéssel kapcsolatban hívjon bizalommal a hét bármely napján!
Bár az ingatlan ikerházként szerepel, kialakításának köszönhetően szinte teljesen különálló épület, mindössze egy fal érintkezik a szomszédos ingatlannal,
így az otthon nyugodt, privát életteret biztosít.
Különlegessége, hogy 3 lakrészből áll, amelyek külön bejárattal is rendelkeznek, ugyanakkor igény szerint teljesen egyben is használhatók,
így rugalmasan alakítható az új tulajdonos elképzelései szerint.
Ideális választás:
- több generáció együttélésére
- befektetésre vagy kiadásra
- szépségszalon, iroda vagy otthoni vállalkozás kialakítására.
Az ingatlan elrendezése:
Alsó szint – 2 lakrész:
1. lakrész – 30 m²
- világos nappali hatalmas ablakokkal
- galériás hálórész
- konyha
- zuhanyzós fürdőszoba WC-vel
2. lakrész – 49,5 m²
- előszoba
- konyha
- 2 szoba
- zuhanyzós fürdőszoba
- WC / kazánház
- közlekedő
Emeleti lakrész:
– 79,5 m²
- 2 szoba
- nappali–étkező
- konyha
- zuhanyzós fürdőszoba
- külön WC
- közlekedő
Felújítások – 2021
Az ingatlan több korszerűsítésen esett át:
- alsó és felső szinten 1-1 klíma került beszerelésre
- műanyag bejárati ajtók
- 10 cm-es szigetelés
- három fürdőszoba új burkolatot kapott
- Immergas gázkazán
- fedett terasz polikarbonát borítással
További előnyök
- 320 m²-es saroktelek
- 3 külön bejáratú lakrész
- rugalmasan alakítható elrendezés
- tehermentes ingatlan
Megtekintéssel kapcsolatban hívjon bizalommal a hét bármely napján!
Registration Number
H514697
Property Details
Sales
for sale
Legal Status
used
Character
house
Construction Method
brick
Net Size
159 m²
Gross Size
170 m²
Plot Size
320 m²
Size of Terrace / Balcony
5.8 m²
Heating
Gas circulator
Ceiling Height
270 cm
Number of Levels Within the Property
1
Orientation
South-West
Condition
Average
Condition of Facade
Average
Neighborhood
quiet, good transport, green
Year of Construction
2006
Number of Bathrooms
3
Water
Available
Gas
Available
Electricity
Available
Sewer
Available
Multi-Generational
yes
Rooms
living room
22.92 m²
kitchen
5.27 m²
bathroom-toilet
1.9 m²
entryway
2.77 m²
staircase
5.16 m²
open-plan kitchen and dining room
6.76 m²
bathroom
2.16 m²
entryway
2.72 m²
toilet
1.85 m²
room
13.18 m²
room
13.97 m²
pantry
0.57 m²
staircase
5.16 m²
corridor
10.37 m²
open-plan living and dining room
18.95 m²
kitchen
8.25 m²
bathroom
4.63 m²
toilet
1.68 m²
room
12 m²
room
18.55 m²
Czellér András
Credit Expert