182,500,000 Ft
482,000 €
- 116m²
- 4 Rooms
Álom Otthon
Győr-Ménfőcsanak – ahol minden adott egy minőségi otthonhoz
Ahogy hajdanán Grétsy tanár úr mondta: „Álljunk meg egy szóra!”
Csendes utca? Kiváló elhelyezkedés? Igényes kivitelezés? Rendezett udvar? Átgondolt belső terek?
A válasz mindenre: igen.
Győr–Ménfőcsanak egyik legszebb, nyugodt utcájában kínálunk megvételre egy egyszintes, kiváló adottságokkal rendelkező családi házat.
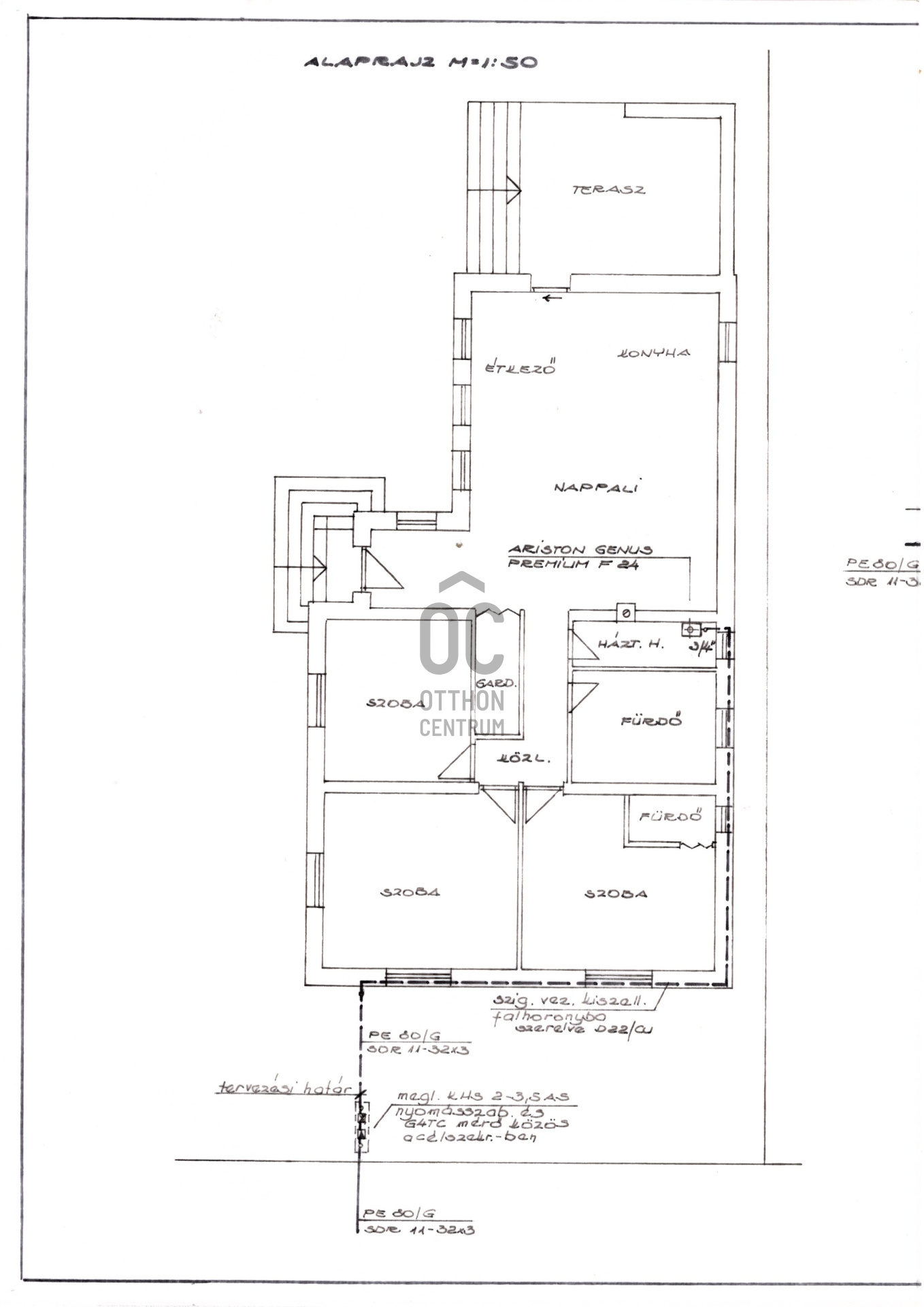
A 116 m²-es lakótér átgondolt elosztású:
három külön nyíló szoba, tágas nappali–konyha–étkező, két fürdőszoba WC-vel, gardrób, háztartási helyiség, valamint kényelmes közlekedők biztosítják a praktikus és élhető mindennapokat.
A nappaliból közvetlen kapcsolat nyílik a 18 m²-es fedett teraszra, amely ideális helyszíne lehet a pihenésnek vagy a családi, baráti összejöveteleknek.
A ház hűtéséről Midea tipusú hűtő-fűtő klíma gondoskodik, a melegről pedig Ariston kombi kazán ( padló és radiátoros hő leadás). Kandalló beépítésre is van lehetőség, mivel a kémény már kiépítésre került.
Az 1045 m²-es, sík fekvésű, parkosított telek rendezett és gondozott. Az udvaron egy dupla, szerelőaknás garázs található, amely akár vállalkozási célra is kiváló lehetőséget biztosít, továbbá egy kerti tároló is helyet kapott.
A nyári időszak kényelméről süllyesztett medence gondoskodik, a kert pedig valódi privát életteret biztosít tulajdonosának. A kert folyamatos fríssességéről Hunter automata öntözőrendszer gondoskodik. Az utcafronti alumínium kerítés pedig Hörmann automatikával van ellátva.
A ház tehermentes, rövid időn belül költözhető!
Ez az ingatlan ideális választás mindazok számára, akik csendes környezetben, mégis kiváló infrastruktúrával rendelkező városrészben keresnek igényes, azonnal élhető otthont.
Hitelre van szüksége?
Az Otthon Centrum, az ország egyik legnagyobb és legmegbízhatóbb hitelközvetítője, teljes körű és díjmentes hitelügyintézéssel, valamint biztosításkötéssel áll rendelkezésére.
Kérje kollégáinktól személyre szabott ajánlatát, és találja meg a legjobb megoldást gyorsan és egyszerűen.
Ahogy hajdanán Grétsy tanár úr mondta: „Álljunk meg egy szóra!”
Csendes utca? Kiváló elhelyezkedés? Igényes kivitelezés? Rendezett udvar? Átgondolt belső terek?
A válasz mindenre: igen.
Győr–Ménfőcsanak egyik legszebb, nyugodt utcájában kínálunk megvételre egy egyszintes, kiváló adottságokkal rendelkező családi házat.
A 116 m²-es lakótér átgondolt elosztású:
három külön nyíló szoba, tágas nappali–konyha–étkező, két fürdőszoba WC-vel, gardrób, háztartási helyiség, valamint kényelmes közlekedők biztosítják a praktikus és élhető mindennapokat.
A nappaliból közvetlen kapcsolat nyílik a 18 m²-es fedett teraszra, amely ideális helyszíne lehet a pihenésnek vagy a családi, baráti összejöveteleknek.
A ház hűtéséről Midea tipusú hűtő-fűtő klíma gondoskodik, a melegről pedig Ariston kombi kazán ( padló és radiátoros hő leadás). Kandalló beépítésre is van lehetőség, mivel a kémény már kiépítésre került.
Az 1045 m²-es, sík fekvésű, parkosított telek rendezett és gondozott. Az udvaron egy dupla, szerelőaknás garázs található, amely akár vállalkozási célra is kiváló lehetőséget biztosít, továbbá egy kerti tároló is helyet kapott.
A nyári időszak kényelméről süllyesztett medence gondoskodik, a kert pedig valódi privát életteret biztosít tulajdonosának. A kert folyamatos fríssességéről Hunter automata öntözőrendszer gondoskodik. Az utcafronti alumínium kerítés pedig Hörmann automatikával van ellátva.
A ház tehermentes, rövid időn belül költözhető!
Ez az ingatlan ideális választás mindazok számára, akik csendes környezetben, mégis kiváló infrastruktúrával rendelkező városrészben keresnek igényes, azonnal élhető otthont.
Hitelre van szüksége?
Az Otthon Centrum, az ország egyik legnagyobb és legmegbízhatóbb hitelközvetítője, teljes körű és díjmentes hitelügyintézéssel, valamint biztosításkötéssel áll rendelkezésére.
Kérje kollégáinktól személyre szabott ajánlatát, és találja meg a legjobb megoldást gyorsan és egyszerűen.
Registration Number
H514214
Property Details
Sales
for sale
Legal Status
used
Character
house
Construction Method
brick
Net Size
116 m²
Gross Size
132 m²
Plot Size
1,045 m²
Size of Terrace / Balcony
18 m²
Heating
Gas circulator
Ceiling Height
270 cm
Orientation
South-East
View
Other
Condition
Excellent
Condition of Facade
Excellent
Neighborhood
quiet
Year of Construction
2016
Number of Bathrooms
2
Garage
Included in the price
Garage Spaces
2
Water
Available
Gas
Available
Electricity
Available
Sewer
Available
Rooms
entryway
4.05 m²
other room
2.12 m²
wardrobe
2.6 m²
corridor
5.04 m²
room
12.4 m²
room
17.8 m²
room
15.08 m²
bathroom-toilet
2.2 m²
bathroom-toilet
8.42 m²
utility room
3.47 m²
living room
24.49 m²
kitchen
7.52 m²
dining room
5.29 m²
terrace
17.7 m²
garage
60 m²
Dr. Táncos Mónika
Credit Expert