data_sheet.details.realestate.section.main.otthonstart_flag.label
For sale family house,
H513611
Sárvár
59,900,000 Ft
159,000 €
- 70m²
- 3 Rooms
Panorámás gyöngyszem Sárváron - családi ház
Sárvár csendes, nyugodt Hegyközségi részén kínálunk eladásra egy 2006-ban épült családi házat, mely 3569 nm-es területen helyezkedik el.
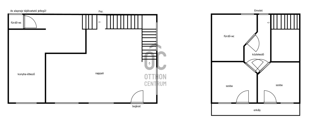
Az ingatlan nappali +2 szobával, konyha-étkezővel, 2 fürdőszoba-wc-vel és erkéllyel rendelkezik -melyről gyönyörű panoráma tárul elénk a zöldellő területre.
A nappaliban hatalmas üvegfelületeket alakítottak ki, ennek és a NY-i tájolásnak köszönhetően a ház szinte egész nap fényárban úszik. A nyitott födémes kialakítás miatt nagyon egyedi és tágas, világos hangulat jellemzi a helyiséget.
A sok természetes, fa anyag felhasználásából adódóan az ingatlan teljesen beleillik a környezetbe. Itt a természet és az ember végtelen harmóniában élhet egy csendes, nyugodt helyen, közvetlen az erdő és annak sokszínű élővilága mellett.
A nyílászáró fa, hő- és hangszigetelt. Az otthon melegéről kandalló gondoskodik, mely a hideg téli napokban tovább fokozza az ingatlan hangulatát és meghitt melegséget áraszt. Opcionálisan két hűtő-fűtő klíma is rendelkezésre áll az emeleti szobákban.
Amennyiben minden álma egy egyedi enteriőrrel rendelkező, természetközeli, beleszeretős családi ház, ne habozzon, hívjon bizalommal! Ne maradjon le erről a kivételes lehetőségről!! Nézze meg minél előbb!
Hitelre van szüksége? Az Otthon Centrum az ország egyik legnagyobb és legmegbízhatóbb hitelközvetítőjeként, teljes körű és díjmentes hitel ügyintézéssel, biztosításkötéssel áll rendelkezésére! Kérje személyre szabott ajánlatunkat Kollégáinktól!
Válassza ki az Önnek legmegfelelőbbet!
Az ingatlan nappali +2 szobával, konyha-étkezővel, 2 fürdőszoba-wc-vel és erkéllyel rendelkezik -melyről gyönyörű panoráma tárul elénk a zöldellő területre.
A nappaliban hatalmas üvegfelületeket alakítottak ki, ennek és a NY-i tájolásnak köszönhetően a ház szinte egész nap fényárban úszik. A nyitott födémes kialakítás miatt nagyon egyedi és tágas, világos hangulat jellemzi a helyiséget.
A sok természetes, fa anyag felhasználásából adódóan az ingatlan teljesen beleillik a környezetbe. Itt a természet és az ember végtelen harmóniában élhet egy csendes, nyugodt helyen, közvetlen az erdő és annak sokszínű élővilága mellett.
A nyílászáró fa, hő- és hangszigetelt. Az otthon melegéről kandalló gondoskodik, mely a hideg téli napokban tovább fokozza az ingatlan hangulatát és meghitt melegséget áraszt. Opcionálisan két hűtő-fűtő klíma is rendelkezésre áll az emeleti szobákban.
Amennyiben minden álma egy egyedi enteriőrrel rendelkező, természetközeli, beleszeretős családi ház, ne habozzon, hívjon bizalommal! Ne maradjon le erről a kivételes lehetőségről!! Nézze meg minél előbb!
Hitelre van szüksége? Az Otthon Centrum az ország egyik legnagyobb és legmegbízhatóbb hitelközvetítőjeként, teljes körű és díjmentes hitel ügyintézéssel, biztosításkötéssel áll rendelkezésére! Kérje személyre szabott ajánlatunkat Kollégáinktól!
Válassza ki az Önnek legmegfelelőbbet!
Registration Number
H513611
Property Details
Sales
for sale
Legal Status
used
Character
house
Construction Method
brick
Net Size
70 m²
Gross Size
80 m²
Plot Size
3,569 m²
Heating
stove (coal)
Ceiling Height
100 cm
Number of Levels Within the Property
1
Orientation
West
Condition
Good
Condition of Facade
Good
Basement
Independent
Year of Construction
2006
Number of Bathrooms
2
Water
Available
Electricity
Available
Storage
Independent
Rooms
living room
31.5 m²
room
7.05 m²
room
6.4 m²
open-plan kitchen and dining room
10.3 m²
corridor
2.75 m²
bathroom-toilet
1.86 m²
bathroom-toilet
4 m²
corridor
4.5 m²
balcony
3.5 m²
Csejtey Krisztina
Credit Expert