229,000,000 Ft
606,000 €
- 150m²
- 2 Rooms
Egy élő, lélegző otthon a Balaton-felvidék szívében!
KIEMELT MEGBÍZÁS CSAK AZ OTTHON CENTRUM KÍNÁLATÁBAN!
Megvételre kínáljuk , ezt a GAZDÁLKODÁSRA, SZŐLÉSZETRE, BORÁSZATRA, VENDÉGFOGADÁSRA, ÖNFENTARTÁSRA is alkalmas birtokot, ahol közvetlen szomszéd nincs, .
Elhelyezkedése szerint Tapolca külterület és zártkert. A Halyagos-hegy északi felén fekszik.
A terület a 90-es évek vége óta BIOGAZDASÁG részét képezte, azóta vegyszeres mezőgazdaság sem a szőlőültetvényt, sem az állattartó részeket nem érintette.
A lakótérről:
A konyha és étkező rendelkezik egy saját kis tárolóval, elektromos padlófűtéssel. A felső szinten található a fürdőszoba, a nagy méretű nappali és a két szoba. A fürdőben elektromos padlófűtés van, a többi helyiségben infra padlófűtés. Az egész szint fűthető, hűthető egy 3,5KW-os klímaberendezéssel. Itt található egy bazalt kővel burkolt kémény lemezkandallóval. A tűzifatároló az erkélyen található, amely igény esetén könnyen beépíthető egy plusz szobává. A lakás összesen körülbelül 70 négyzetméter, amely további körülbelül 50 négyzetméterrel a tervek alapján bővíthető.
A ház környékén két kis minitó, jó néhány gyümölcsfa és cserje; számos díszítő és hasznos kis ágyás található, illetve egy 45 négyzetméteres terasz egy kombinált mosdóhelyiséggel.
Áramhálózat ad-vesz mérős hibrid inverteres 10KWh teljesítményű 3 fázisú napelemrendszerrel van kombinálva – szaldós elszámolással.
A saját vízrendszert fúrt kút táplálja, a lakás részére nitrátmentesítő és víz lágyító került beépítésre.
Esővízgyűjtés megoldott, melynek összkapacitása kb. 4000liter.
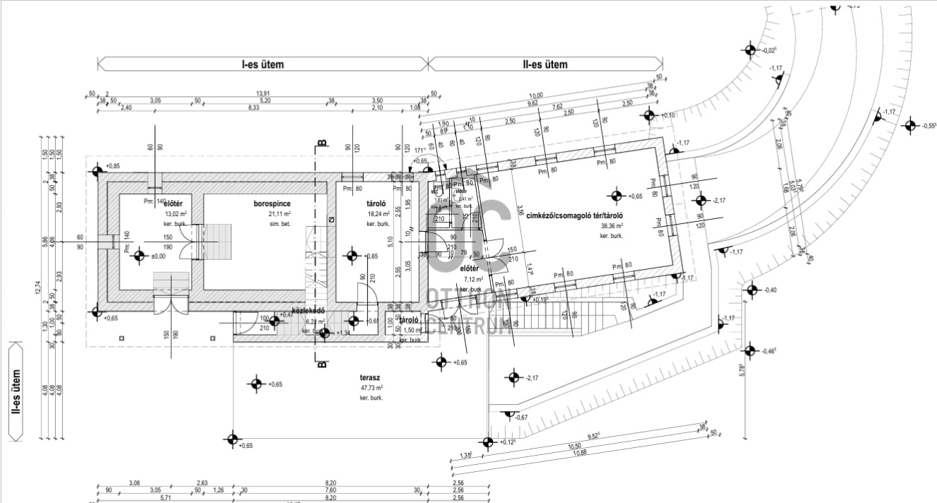
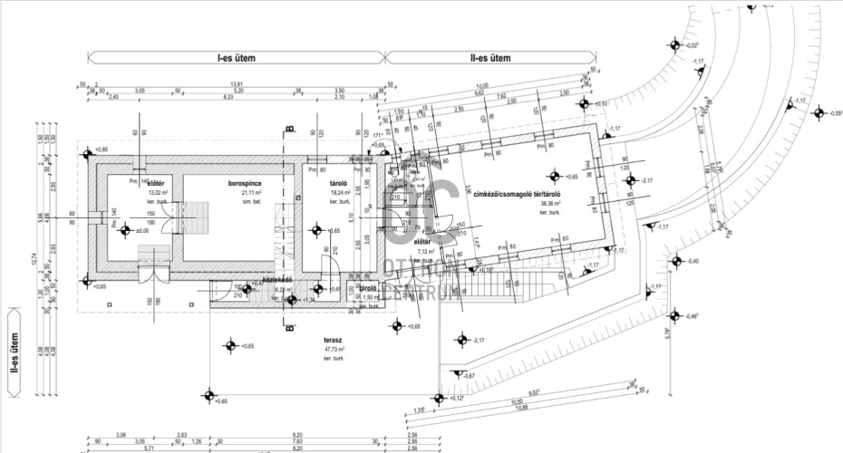
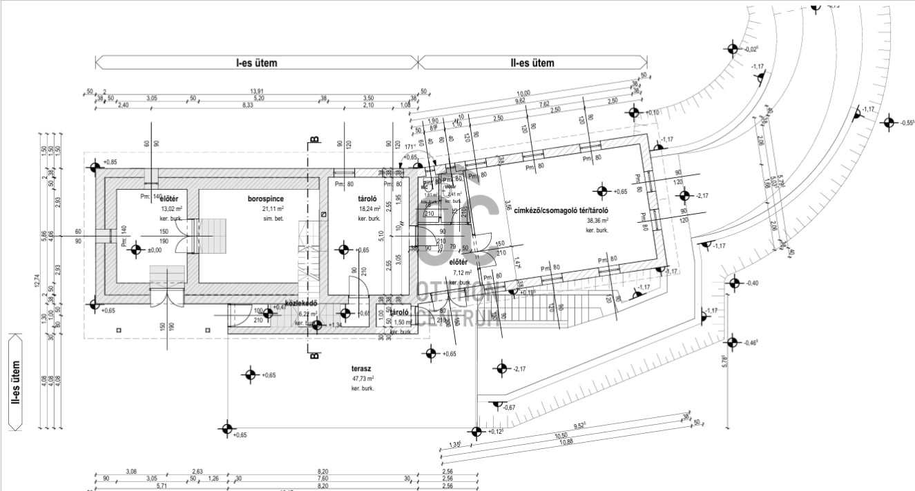
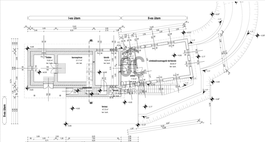
A pince 6 helyiségből áll körülbelül 150 négyzetméter. Az eredeti présház raktárnak használható, illetve itt található a napelem invertere, az 1800-as évek végén, vagy az 1900-as évek elején épített boltíves pincét megőriztük, körbeépítettük, hordóknak és palackoknak is tökéletes, szellőzése is rendben van. Palackos borok tárolására szolgáló helyiség a 2000-as években épült hozzá, majd 2019-ben épült egy 50 négyzetméteres tartálytér, mely összeköttetésben áll a kóstolótérrel-vendégfogadótérrel. A tartálytér 5,5KW-os, a kóstoló 3,5KW-os hűtő-fűtő klímával temperálható. Ehhez tartozik még egy tároló helyiség. Külső szigetelés itt 10cm XPS. A pince saját emésztőtartállyal rendelkezik. A ház porotherm téglából épült, a tetőtér beépített, mely nyílt cellás befújt szigetelést kapott. Homlokzat északi oldalán 15cm, a többi oldalon kitettségnek megfelelő vastagságú szigetelés található. A tetősík ablakok Velux márkájúak, külső hővédővel, belső árnyékolóval ellátottak. A tető héjazata creaton balance kerámia cserép. A tetőtéri ablakokból pazar kilátás nyílik a Tapolcai-medencére, Csobáncra és Hegyesdre.
A „nagy szőlő” területe kb. 3 hektár, melyen Zeusz és Sárgamuskotály található. 2015 és 2016-ban került elültetésre. A tám rendszer komoly, tartós acél elemekből áll. 3 oldalról vadháló, a 4. oldalról szögesdrótos, vad biztos kerítéssel védett, elektromos tolókapuval zárható, jelenleg is használatban van. A szőlőültetvény 2027-től igény esetén kivágható.
A „kis szőlő” területe kb. 0,2Hektár, melynek kb. fele Zeusz fajta, a másik fele pedig egy 20-25 fajtából álló csemegeszőlő gyűjtemény ellenálló, ízletes, impozáns fajtákból.
A birtokhoz tartozik egy szigetüzemű elektromos kerítéssel körül határolt 1,5 hektáros legelő, melynek komoly része erdősült, nagy mennyiségű akácot tartalmaz.
Továbbá tartozik hozzá egy 2m magas vadhálóval kerített gyümölcsös, „Tündérkert”. 0,28Hektár, melynek fele 2023-ban került újra ültetésre ősi extenzív gyümölcsfajtákkal, egy kis szerszámtárolóval és egy solar aszaló eszközzel.
Található a területen egy kis gyümölcsös is villanypásztorral elkerített, zömmel már termő fákból, melyek körül lovakkal, juhokkal lehet legeltetni. Ez kapcsolatban áll az „istállóval”, ahol kiépített a víz és áramhálózat. Ehhez kapcsolódik egy kb 0,2Hektáros vágásérett akácos, mely legeltethető, vadhálóval került elkerítésre a szőlőültetvényektől.
Található a területen egy új építésű Walipini, vagyis földbe süllyesztett melegház, mely legalább 2 hónappal meghosszabbítja az éves zöldségtermesztést. 2 komoly, biztonságos kutyakennel is található itt, az egyik nagy kutyákra van optimalizálva, míg a másik a legkomolyabb szökős kisméretű terrierek részére hoztuk létre. Három jól megépített tyúkudvar is létre lett hozva szigetelt, takarítható, róka-nyest biztos kivitelű ólakkal. Tartozik ehhez a részhez egy kisház, mely szerszámtárolásra, műhelynek tökéletes, a felső szint beépíthető vendégszobának, áramot földkábelen kapja.
A birtok megközelítése a 77-es útról történik, mely kb. 450m-re van a háztól kavicsos és aszfaltos úton.
Amennyiben felkeltettem érdeklődését, keressen bizalommal!
Megvételre kínáljuk , ezt a GAZDÁLKODÁSRA, SZŐLÉSZETRE, BORÁSZATRA, VENDÉGFOGADÁSRA, ÖNFENTARTÁSRA is alkalmas birtokot, ahol közvetlen szomszéd nincs, .
Elhelyezkedése szerint Tapolca külterület és zártkert. A Halyagos-hegy északi felén fekszik.
A terület a 90-es évek vége óta BIOGAZDASÁG részét képezte, azóta vegyszeres mezőgazdaság sem a szőlőültetvényt, sem az állattartó részeket nem érintette.
A lakótérről:
A konyha és étkező rendelkezik egy saját kis tárolóval, elektromos padlófűtéssel. A felső szinten található a fürdőszoba, a nagy méretű nappali és a két szoba. A fürdőben elektromos padlófűtés van, a többi helyiségben infra padlófűtés. Az egész szint fűthető, hűthető egy 3,5KW-os klímaberendezéssel. Itt található egy bazalt kővel burkolt kémény lemezkandallóval. A tűzifatároló az erkélyen található, amely igény esetén könnyen beépíthető egy plusz szobává. A lakás összesen körülbelül 70 négyzetméter, amely további körülbelül 50 négyzetméterrel a tervek alapján bővíthető.
A ház környékén két kis minitó, jó néhány gyümölcsfa és cserje; számos díszítő és hasznos kis ágyás található, illetve egy 45 négyzetméteres terasz egy kombinált mosdóhelyiséggel.
Áramhálózat ad-vesz mérős hibrid inverteres 10KWh teljesítményű 3 fázisú napelemrendszerrel van kombinálva – szaldós elszámolással.
A saját vízrendszert fúrt kút táplálja, a lakás részére nitrátmentesítő és víz lágyító került beépítésre.
Esővízgyűjtés megoldott, melynek összkapacitása kb. 4000liter.
A pince 6 helyiségből áll körülbelül 150 négyzetméter. Az eredeti présház raktárnak használható, illetve itt található a napelem invertere, az 1800-as évek végén, vagy az 1900-as évek elején épített boltíves pincét megőriztük, körbeépítettük, hordóknak és palackoknak is tökéletes, szellőzése is rendben van. Palackos borok tárolására szolgáló helyiség a 2000-as években épült hozzá, majd 2019-ben épült egy 50 négyzetméteres tartálytér, mely összeköttetésben áll a kóstolótérrel-vendégfogadótérrel. A tartálytér 5,5KW-os, a kóstoló 3,5KW-os hűtő-fűtő klímával temperálható. Ehhez tartozik még egy tároló helyiség. Külső szigetelés itt 10cm XPS. A pince saját emésztőtartállyal rendelkezik. A ház porotherm téglából épült, a tetőtér beépített, mely nyílt cellás befújt szigetelést kapott. Homlokzat északi oldalán 15cm, a többi oldalon kitettségnek megfelelő vastagságú szigetelés található. A tetősík ablakok Velux márkájúak, külső hővédővel, belső árnyékolóval ellátottak. A tető héjazata creaton balance kerámia cserép. A tetőtéri ablakokból pazar kilátás nyílik a Tapolcai-medencére, Csobáncra és Hegyesdre.
A „nagy szőlő” területe kb. 3 hektár, melyen Zeusz és Sárgamuskotály található. 2015 és 2016-ban került elültetésre. A tám rendszer komoly, tartós acél elemekből áll. 3 oldalról vadháló, a 4. oldalról szögesdrótos, vad biztos kerítéssel védett, elektromos tolókapuval zárható, jelenleg is használatban van. A szőlőültetvény 2027-től igény esetén kivágható.
A „kis szőlő” területe kb. 0,2Hektár, melynek kb. fele Zeusz fajta, a másik fele pedig egy 20-25 fajtából álló csemegeszőlő gyűjtemény ellenálló, ízletes, impozáns fajtákból.
A birtokhoz tartozik egy szigetüzemű elektromos kerítéssel körül határolt 1,5 hektáros legelő, melynek komoly része erdősült, nagy mennyiségű akácot tartalmaz.
Továbbá tartozik hozzá egy 2m magas vadhálóval kerített gyümölcsös, „Tündérkert”. 0,28Hektár, melynek fele 2023-ban került újra ültetésre ősi extenzív gyümölcsfajtákkal, egy kis szerszámtárolóval és egy solar aszaló eszközzel.
Található a területen egy kis gyümölcsös is villanypásztorral elkerített, zömmel már termő fákból, melyek körül lovakkal, juhokkal lehet legeltetni. Ez kapcsolatban áll az „istállóval”, ahol kiépített a víz és áramhálózat. Ehhez kapcsolódik egy kb 0,2Hektáros vágásérett akácos, mely legeltethető, vadhálóval került elkerítésre a szőlőültetvényektől.
Található a területen egy új építésű Walipini, vagyis földbe süllyesztett melegház, mely legalább 2 hónappal meghosszabbítja az éves zöldségtermesztést. 2 komoly, biztonságos kutyakennel is található itt, az egyik nagy kutyákra van optimalizálva, míg a másik a legkomolyabb szökős kisméretű terrierek részére hoztuk létre. Három jól megépített tyúkudvar is létre lett hozva szigetelt, takarítható, róka-nyest biztos kivitelű ólakkal. Tartozik ehhez a részhez egy kisház, mely szerszámtárolásra, műhelynek tökéletes, a felső szint beépíthető vendégszobának, áramot földkábelen kapja.
A birtok megközelítése a 77-es útról történik, mely kb. 450m-re van a háztól kavicsos és aszfaltos úton.
Amennyiben felkeltettem érdeklődését, keressen bizalommal!
Registration Number
H513485
Property Details
Sales
for sale
Legal Status
used
Character
house
Construction Method
brick
Net Size
150 m²
Gross Size
200 m²
Plot Size
50,000 m²
Size of Terrace / Balcony
45 m²
Heating
electric, infrared
Ceiling Height
270 cm
Number of Levels Within the Property
2
Orientation
North
View
Green view
Condition
Good
Condition of Facade
Good
Basement
Independent
Neighborhood
quiet, good transport, green
Year of Construction
2000
Number of Bathrooms
1
Garage
Included in the price
Water
Available
Electricity
Available
Sewer
Available
Storage
Independent
Rooms
cellar
17.85 m²
storage
50.03 m²
storage
39.27 m²
entryway
13.02 m²
wine cellar
21.11 m²
storage
18.24 m²
corridor
6.22 m²
storage
1.5 m²
toilet
1.81 m²
entryway
7.12 m²
showroom
38.36 m²
loggia
6.86 m²
living room
21.65 m²
bathroom
3.77 m²
toilet
1.25 m²
storage
5.73 m²
bedroom
6.14 m²
terrace
45 m²
Edve János
Credit Expert