data_sheet.details.realestate.section.main.otthonstart_flag.label
For sale family house, H512488
Zalaegerszeg, Belváros

63,000,000 Ft

164,000 €

  • 77m²
  • 3 Rooms
Exclusive Contract

The translation of the text is: A story in the walls, a future in the home!

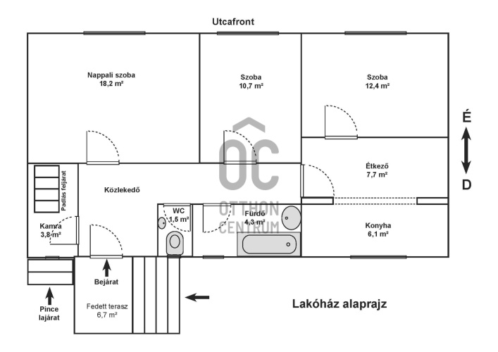
In the city center of Zalaegerszeg, near Vizslapark, a 3-room, 85 m² civil-style house with a garden has become available for sale, with the following features: - The brick-built property has a gross area of 85 m² (net 77 m²) and is situated on a 457 m² plot. - The house was built in the 1920s; however, the current owner fully renovated it in the mid-1980s to meet the needs of that era. - The roof is covered with Bramac tiles. - The external walls of the house have also been renewed. - The ceiling of the ground-level cellar has been reinforced, and its entrance has been renovated. - The electrical wiring has been replaced with aluminum, and the plumbing has been updated. - Gas has been connected to the property. - The cold floor coverings have been modernized, and the rooms are equipped with parquet flooring, which is currently in perfect condition. - The current heating system is provided by gas convectors. Their coverings are unique and special, perfectly harmonizing with the house's internal charm. - The windows and doors are made of wood, and the entrance door is protected and insulated by an external wooden door. - Hot water is supplied by an electric boiler. - In the yard, there is also a brick garage, storage rooms, and a building suitable for keeping animals (chickens, poultry). - The storage rooms offer numerous possibilities (home gym, hobby room, family wellness area with sauna, jacuzzi, etc.). The realization of these ideas is left to the imagination of the new owner. - The temperature in the ground-level cellar allows for the winter storage of plants, fruits, and vegetables. Alternatively, it can be transformed into a wine cellar, providing a counterbalance to the hectic everyday life, where family and friends can enjoy carefree conversations and sip delicious wines in a romantic atmosphere. - The yard, adorned with evergreens, flowers, and a fruit tree, is also rich in possibilities, waiting for the new owner's ideas to be realized. ...and who would I recommend this property to? This little jewel box is truly meant for those who are loyal to the architecture of the past and see the potential for their own future within it. Those who believe that old things are not outdated, but simply waiting for a new life – in a modern form, yet with an unchanged soul. Our office provides a full range of services for searching clients; if you need a loan, we can help! We offer professional advice, comprehensive free loan and CSOK administration, preparation of energy certificates, and assistance with an attorney at favorable rates! If you would like to learn more about this property or have any questions, please feel free to contact us with confidence. Your satisfaction is the most important thing to us, and we are happy to assist you in making the best decision.

Registration Number

H512488

Property Details

Sales
for sale
Legal Status
used
Character
house
Construction Method
brick
Net Size
77 m²
Gross Size
85 m²
Plot Size
457 m²
Size of Terrace / Balcony
6.7 m²
Garden Size
340 m²
Heating
gas convector
Ceiling Height
300 cm
Orientation
North
Condition
Average
Condition of Facade
Good
Basement
Independent
Neighborhood
quiet, good transport, green, central
Year of Construction
1920
Number of Bathrooms
1
Condominium Garden
yes
Garage
Included in the price
Garage Spaces
1
Water
Available
Gas
Available
Electricity
Available
Sewer
Available
Storage
Independent

Rooms

room
12 m²
room
11 m²
room
18 m²
kitchen
6 m²
dining room
8 m²
bathroom
4 m²
toilet
2 m²
pantry
4 m²
corridor
12 m²

From Our Office Listings - Zalaegerszeg - Eötvös utca

for sale family house

Index image
data_sheet.details.realestate.section.main.otthonstart_flag.label
36

for sale family house

Index image
data_sheet.details.realestate.section.main.otthonstart_flag.label
49

for sale family house

Index image
data_sheet.details.realestate.section.main.otthonstart_flag.label
40

for sale vacation home

Index image
13

for sale family house

Index image
data_sheet.details.realestate.section.main.otthonstart_flag.label
26

for sale family house

Index image
data_sheet.details.realestate.section.main.otthonstart_flag.label
28

for sale family house

Index image
data_sheet.details.realestate.section.main.otthonstart_flag.label
65