data_sheet.details.realestate.section.main.otthonstart_flag.label
For sale new construction semi-detached house,
H510918
Budapest X. kerület, Újhegy
134,900,000 Ft
377,000 €
- 122m²
- 4 Rooms
Modern, újépítésű kétszintes ikerház Budapest X. kerületének egyik legkedveltebb környékén!
Modern, újépítésű kétszintes ikerház Budapest X. kerületének egyik legkedveltebb környékén!
Exkluzív lehetőség azok számára, akik minőségi, XXI. századi otthont keresnek a belvároshoz közel, mégis egy nyugodt, családias környezetben!
A projektben még több lakás is elérhető!
A csendes mellékutcában elhelyezkedő, prémium műszaki tartalommal rendelkező ikerház minden igényt kielégít – a modern életstílus jegyében.
Kiemelkedő adottságok és átgondolt tervezés
Az ingatlan a legmodernebb műszaki elvárások szerint készül, kiváló minőségű anyagok és prémium gépészeti megoldások alkalmazásával. A telek adottságai maximálisan kihasználásra kerültek, így egy esztétikus, funkcionális és hosszú távon értékálló családi otthon születik.
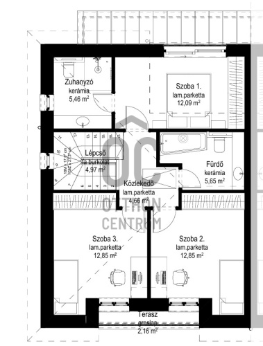
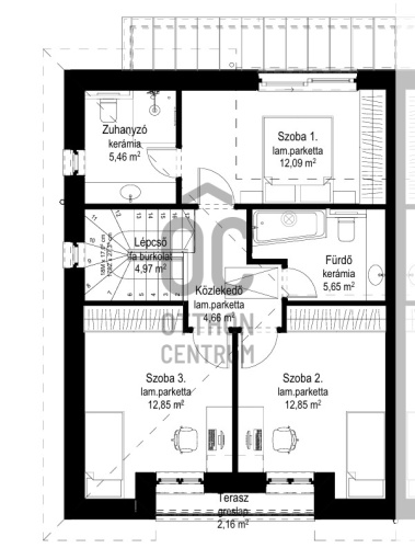
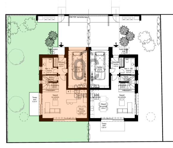
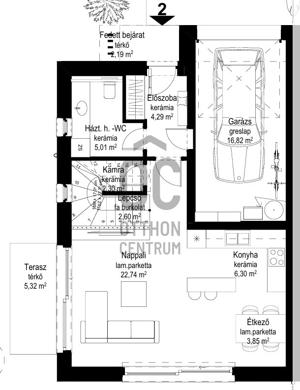
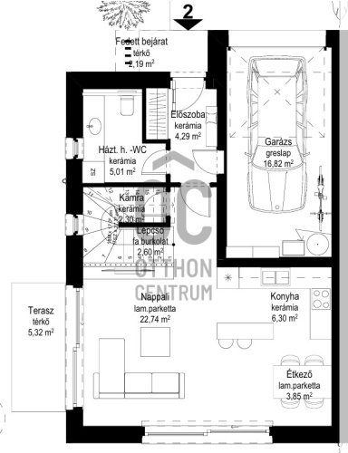
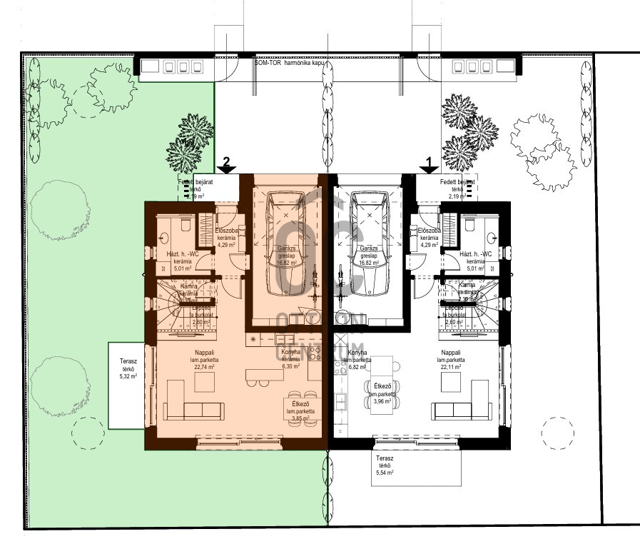
A hasznos alapterület 122 m², két szinten:
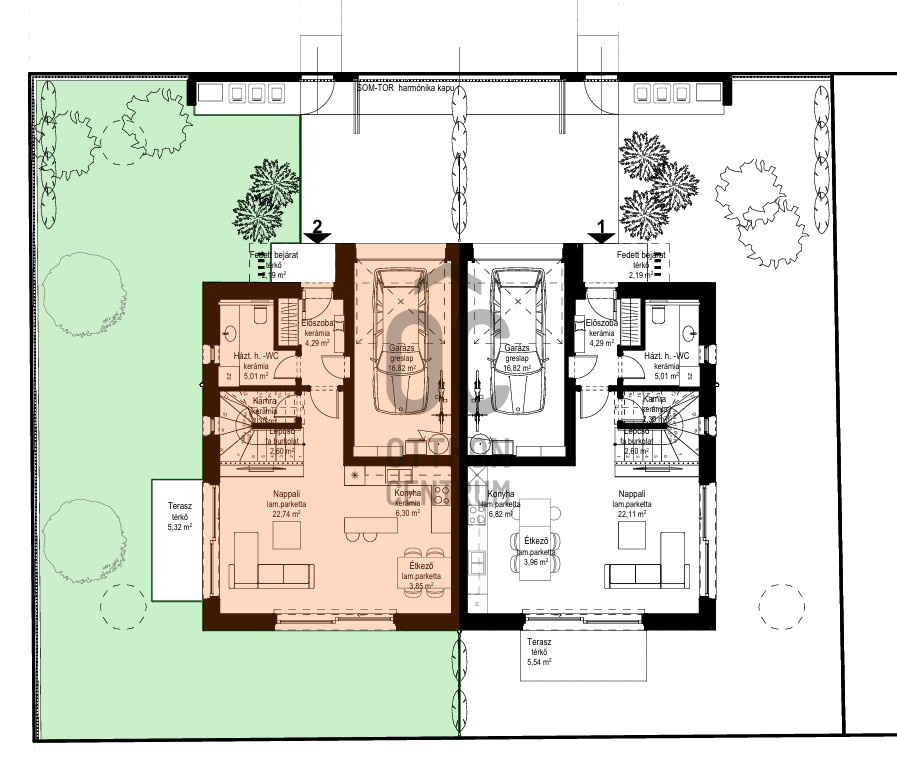
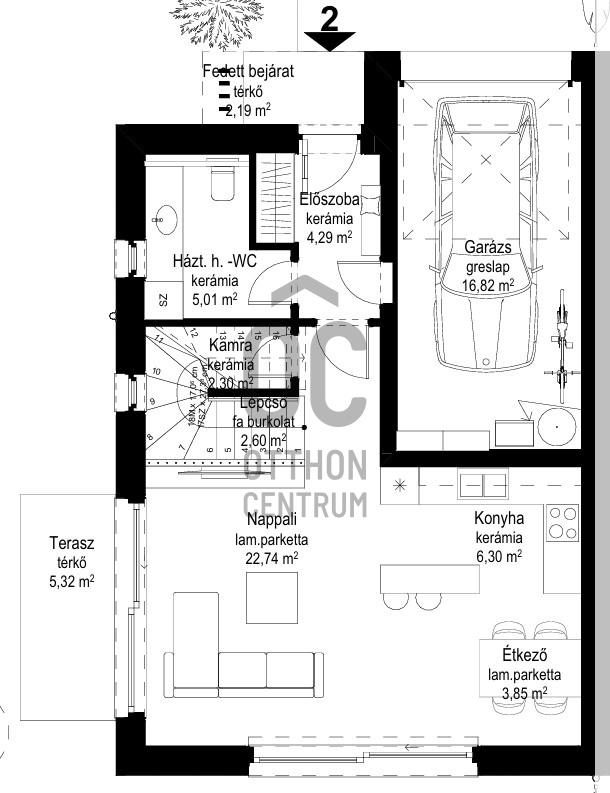
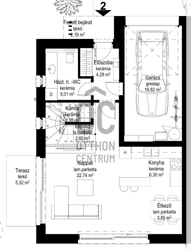
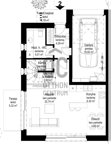
Földszint:
- Tágas, 33 m²-es amerikai konyhás nappali, közvetlen teraszkapcsolattal és kerttel
- Zuhanyzó + WC
- Háztartási helyiség
- Nagyméretű, fedett garázs – akár nagyobb autó számára is ideális
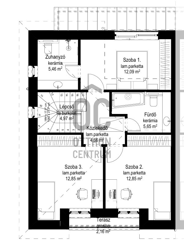
Emelet:
- 3 kényelmes hálószoba
- 2 modern fürdőszoba
A házhoz tartozó 231 m²-es privát kert igazi oázis, mely teljes intimitást biztosít, így tökéletes lehet családoknak, pihenéshez vagy akár kertészkedéshez is.
Prémium műszaki tartalom
- 30 cm Porotherm főfalak
- 3 rétegű, hőszigetelt műanyag nyílászárók
- Monolit vasbeton födém
- Terrán Zenit Max Carbon tetőcserép
- 15 cm homlokzati hőszigetelés, korszerű energetikai besorolással
- Hőszivattyús rendszer: mindenhol padlófűtés, nappaliban fan-coil és az emeleten mennyezeti fűtés-hűtés
- Minőségi burkolatok, térkövezett udvar
Extrák, amelyek valódi kényelmet adnak
- Okosotthon rendszer
- Elektromos redőnyök
- Kamera- és riasztórendszer előkészítés
- Videókaputelefon
- Elektromos kapu
- Öntözőrendszer
- Elektromos autótöltő kiépítése
- Garázsban temperáló fűtés + 5 cm belső szigetelés
- WPC kerítés
- Rejtett- és udvarvilágítás
- Beépített bútorok megegyezés alapján
- Teljes digitális átláthatóság az építkezés során
A PlanRadar rendszernek köszönhetően Ön:
- Valós időben követheti az építkezés minden lépését kamerán keresztül
- Kéthetente részletes, fotókkal ellátott jelentést kap
- A projekt végén minden dokumentumot digitálisan átvehet egy biztonságos felületen
Finanszírozás
Az ingatlan hitelre is megvásárolható, ügyfeleink számára díjmentes hitelügyintézéssel, minden hazai bank kínálatából.
Állami támogatások is igénybe vehetők!
Várható átadás: 2026. IV. negyedév
Ne maradjon le!
Ilyen színvonalú, modern és biztonságos otthon ritkán kerül a piacra. Kiváló választás családoknak, pároknak és mindenkinek, aki igényes, hosszú távon értékálló ingatlant keres.
Forduljon hozzám bizalommal a hét bármely napján!
Exkluzív lehetőség azok számára, akik minőségi, XXI. századi otthont keresnek a belvároshoz közel, mégis egy nyugodt, családias környezetben!
A projektben még több lakás is elérhető!
A csendes mellékutcában elhelyezkedő, prémium műszaki tartalommal rendelkező ikerház minden igényt kielégít – a modern életstílus jegyében.
Kiemelkedő adottságok és átgondolt tervezés
Az ingatlan a legmodernebb műszaki elvárások szerint készül, kiváló minőségű anyagok és prémium gépészeti megoldások alkalmazásával. A telek adottságai maximálisan kihasználásra kerültek, így egy esztétikus, funkcionális és hosszú távon értékálló családi otthon születik.
A hasznos alapterület 122 m², két szinten:
Földszint:
- Tágas, 33 m²-es amerikai konyhás nappali, közvetlen teraszkapcsolattal és kerttel
- Zuhanyzó + WC
- Háztartási helyiség
- Nagyméretű, fedett garázs – akár nagyobb autó számára is ideális
Emelet:
- 3 kényelmes hálószoba
- 2 modern fürdőszoba
A házhoz tartozó 231 m²-es privát kert igazi oázis, mely teljes intimitást biztosít, így tökéletes lehet családoknak, pihenéshez vagy akár kertészkedéshez is.
Prémium műszaki tartalom
- 30 cm Porotherm főfalak
- 3 rétegű, hőszigetelt műanyag nyílászárók
- Monolit vasbeton födém
- Terrán Zenit Max Carbon tetőcserép
- 15 cm homlokzati hőszigetelés, korszerű energetikai besorolással
- Hőszivattyús rendszer: mindenhol padlófűtés, nappaliban fan-coil és az emeleten mennyezeti fűtés-hűtés
- Minőségi burkolatok, térkövezett udvar
Extrák, amelyek valódi kényelmet adnak
- Okosotthon rendszer
- Elektromos redőnyök
- Kamera- és riasztórendszer előkészítés
- Videókaputelefon
- Elektromos kapu
- Öntözőrendszer
- Elektromos autótöltő kiépítése
- Garázsban temperáló fűtés + 5 cm belső szigetelés
- WPC kerítés
- Rejtett- és udvarvilágítás
- Beépített bútorok megegyezés alapján
- Teljes digitális átláthatóság az építkezés során
A PlanRadar rendszernek köszönhetően Ön:
- Valós időben követheti az építkezés minden lépését kamerán keresztül
- Kéthetente részletes, fotókkal ellátott jelentést kap
- A projekt végén minden dokumentumot digitálisan átvehet egy biztonságos felületen
Finanszírozás
Az ingatlan hitelre is megvásárolható, ügyfeleink számára díjmentes hitelügyintézéssel, minden hazai bank kínálatából.
Állami támogatások is igénybe vehetők!
Várható átadás: 2026. IV. negyedév
Ne maradjon le!
Ilyen színvonalú, modern és biztonságos otthon ritkán kerül a piacra. Kiváló választás családoknak, pároknak és mindenkinek, aki igényes, hosszú távon értékálló ingatlant keres.
Forduljon hozzám bizalommal a hét bármely napján!
Registration Number
H510918
Property Details
Sales
for sale
Legal Status
new
Character
house
Construction Method
brick
Net Size
122 m²
Gross Size
122 m²
Plot Size
231 m²
Size of Terrace / Balcony
7 m²
Garden Size
231 m²
Heating
heat pump (air-to-air)
Ceiling Height
280 cm
Number of Levels Within the Property
2
Orientation
South-West
View
city view, Green view
Condition
Excellent
Condition of Facade
Excellent
Neighborhood
quiet, good transport, green
Year of Construction
2026
Number of Bathrooms
2
Condominium Garden
yes
Garage
Included in the price
Garage Spaces
1
Water
Available
Gas
On the street
Electricity
Available
Sewer
Available
Rooms
living room
22.11 m²
dining room
3.96 m²
kitchen
6.82 m²
utility room
5.01 m²
entryway
4.29 m²
pantry
2.3 m²
staircase
2.6 m²
terrace
5.33 m²
garage
16.82 m²
room
12.86 m²
room
12.86 m²
room
12.09 m²
bathroom-toilet
5.65 m²
corridor
4.66 m²
staircase
4.97 m²
bathroom-toilet
5.46 m²
balcony
2.16 m²
Horváth Eleonóra
Credit Expert