data_sheet.details.realestate.section.main.otthonstart_flag.label
For sale family house, H509790
Tiszafüred

29,900,000 Ft

79,000 €

  • 130.9m²
  • 4 Rooms
Exclusive Contract

For sale: a three-story vacation home nearing completion in the resort area of Tiszafüred, just 500 meters from Lake Tisza!

The property is located in one of the most dynamically developing towns in Jász-Nagykun-Szolnok County, in the holiday area of Tiszafüred, close to the free beach, yet in a quiet neighborhood.
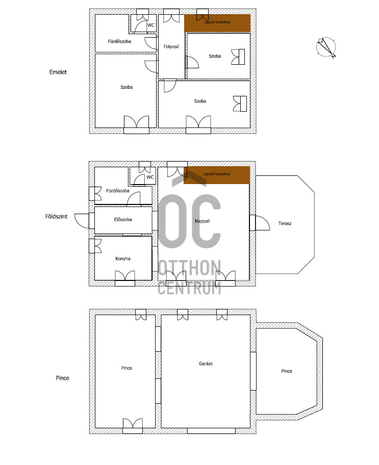
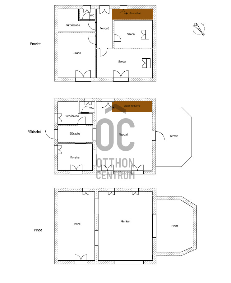
- The 130 m² three-story building is situated on a 561 m² corner plot.
- The property includes three rooms, a living room, two bathrooms, two separate toilets, and a kitchen.
- The basement features a garage suitable for car storage and two cellar rooms that can be adapted for various uses.
- The brick-built house is under a roof and in a structural state, requiring the installation of windows and mechanical elements.
- Electricity and water have been connected, while sewer and gas connections can be arranged within the plot.

The town is becoming increasingly popular as a tourist center:
- The Tisza Lake can be completely cycled around, with a new bike path extending to Poroszló.
- A renewed thermal beach, a free water beach, and a cycling center.
- Excellent restaurants and services nearby.

Additional advantages:
- Free, bank-independent loan mediation.
- Sales service available even on weekends!

Registration Number

H509790

Property Details

Sales
for sale
Legal Status
used
Character
house
Construction Method
brick
Net Size
130.9 m²
Gross Size
150 m²
Plot Size
561 m²
Size of Terrace / Balcony
15 m²
Heating
stove (coal)
Ceiling Height
270 cm
Number of Levels Within the Property
3
Orientation
North-East
Condition
To be renovated
Condition of Facade
Below average
Basement
Independent
Neighborhood
quiet, green
Year of Construction
1999
Number of Bathrooms
2
Garage
Included in the price
Garage Spaces
1
Water
Available
Electricity
Available
Distance to Waterfront
500 meters

Rooms

room
12.41 m²
room
12.06 m²
room
7.92 m²
living room
28.8 m²
kitchen
6.9 m²
bathroom
4.6 m²
bathroom
4.9 m²
toilet
1.26 m²
toilet
1.26 m²
entryway
4.2 m²
entryway
4.76 m²
garage
28.74 m²
cellar
19.8 m²
cellar
14 m²
Pomaházi Pál
Pomaházi Pál

Credit Expert

From Our Office Listings - Tiszafüred

for sale family house

Index image
data_sheet.details.realestate.section.main.otthonstart_flag.label
19

for sale agricultural property

Index image
4

for sale family house

Index image
data_sheet.details.realestate.section.main.otthonstart_flag.label
19

for sale family house

Index image
data_sheet.details.realestate.section.main.otthonstart_flag.label
18

for sale family house

Index image
data_sheet.details.realestate.section.main.otthonstart_flag.label
38

for sale family house

Index image
data_sheet.details.realestate.section.main.otthonstart_flag.label
9

for sale family house

Index image
data_sheet.details.realestate.section.main.otthonstart_flag.label
18

for sale family house

Index image
data_sheet.details.realestate.section.main.otthonstart_flag.label
15

for sale family house

Index image
data_sheet.details.realestate.section.main.otthonstart_flag.label
20

for sale family house

Index image
data_sheet.details.realestate.section.main.otthonstart_flag.label
16

for sale vacation home

Index image
14