169,000,000 Ft
431,000 €
- 170m²
- 5 Rooms




















Szentendre egyik legkedveltebb részén 200 méterre a Duna-parttól a Czóbel park és a Japánkert közelében eladó egy 170 m²-es, kétszintes, 5 szobás felújítandó családi ház.
A ház 618 nm-es telken fekszik, ami jól kihasználható: virágos kert, árnyas pihenősarok és hangulatos grillsarok kialakítására.
Csendes, rendezett utcában helyezkedik el, néhány perc sétára az óváros hangulatos utcáitól és kávézóitól.
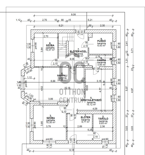
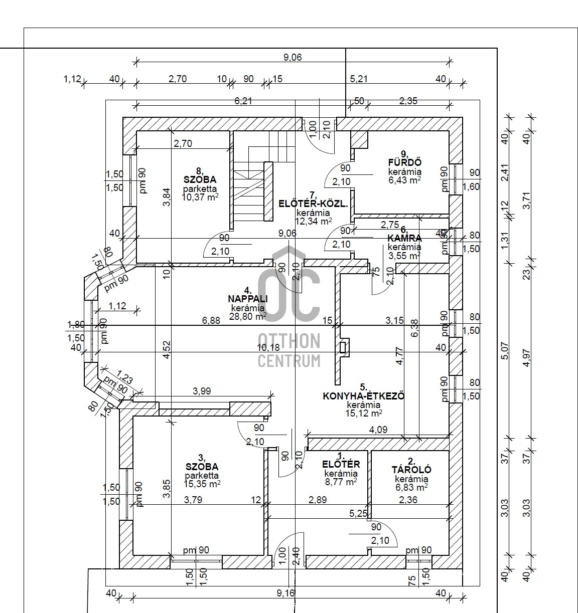
A földszinten tágas nappali, konyha- étkezővel, két hálószoba és egy fürdőszoba kapott helyet, az emeleten pedig további két hálószoba és egy második fürdőszoba található. Jelenlegi műszaki tartalom: gázkazán, cserépkályha, villanybojler.
Az udvarban fedett gépkocsi-beálló biztosít kényelmes parkolási lehetőséget.
A ház szerkezeti adottságai és elrendezése kiváló alapot ad egy modern, egyedi otthon vagy akár kétgenerációs ház kialakításához. Felújítás után magas presztízsű ingatlanná válhat, amely értékálló befektetést képvisel Szentendre egyik legvonzóbb lokációjában.
A Duna-part közelsége, a parkok és a történelmi városrész közvetlen elérhetősége különleges életminőséget és stabil piaci értéket biztosít a leendő tulajdonos számára.
Közelben: pékség, cukrászda, Spar.
További információért keressen bizalommal.
A ház 618 nm-es telken fekszik, ami jól kihasználható: virágos kert, árnyas pihenősarok és hangulatos grillsarok kialakítására.
Csendes, rendezett utcában helyezkedik el, néhány perc sétára az óváros hangulatos utcáitól és kávézóitól.
A földszinten tágas nappali, konyha- étkezővel, két hálószoba és egy fürdőszoba kapott helyet, az emeleten pedig további két hálószoba és egy második fürdőszoba található. Jelenlegi műszaki tartalom: gázkazán, cserépkályha, villanybojler.
Az udvarban fedett gépkocsi-beálló biztosít kényelmes parkolási lehetőséget.
A ház szerkezeti adottságai és elrendezése kiváló alapot ad egy modern, egyedi otthon vagy akár kétgenerációs ház kialakításához. Felújítás után magas presztízsű ingatlanná válhat, amely értékálló befektetést képvisel Szentendre egyik legvonzóbb lokációjában.
A Duna-part közelsége, a parkok és a történelmi városrész közvetlen elérhetősége különleges életminőséget és stabil piaci értéket biztosít a leendő tulajdonos számára.
Közelben: pékség, cukrászda, Spar.
További információért keressen bizalommal.
Registration Number
H508379
Property Details
Sales
for sale
Legal Status
used
Character
house
Construction Method
brick
Net Size
170 m²
Gross Size
170 m²
Plot Size
618 m²
Size of Terrace / Balcony
30 m²
Heating
gas boiler
Ceiling Height
300 cm
Number of Levels Within the Property
1
Orientation
South-West
View
Green view
Condition
To be renovated
Condition of Facade
Good
Basement
Independent
Neighborhood
quiet, green
Year of Construction
1995
Number of Bathrooms
2
Number of Covered Parking Spots
1
Water
Available
Gas
Available
Electricity
Available
Sewer
Available
Distance to Waterfront
200 meters
Rooms
living room
28.8 m²
open-plan kitchen and dining room
15.12 m²
room
15.35 m²
room
10.37 m²
bathroom-toilet
6.43 m²
entryway
8.77 m²
utility room
6.83 m²
room
23.72 m²
room
15.38 m²
bathroom-toilet
2.27 m²
corridor
17.45 m²
utility room
4.45 m²

Németh István
Credit Expert