data_sheet.details.realestate.section.main.otthonstart_flag.label
For sale panel apartment, H508089
Paks, Lakótelep

42,000,000 Ft

108,000 €

  • 52m²
  • 2 Rooms
  • 2nd floor

Pakson 2. emeleti 2 erkélyes lakás eladó

Pakson 2. emeleti lakás eladó
Pakson eladó sorba került ez a 2. emeleti, 2 erkélyes, 2 szobás 52nm-es panel lakás.
A fűtés távfűtés, a tömb felújítása elkészült, a nyílászárók kicserélésre kerültek.
A földszinten közös tároló tartozik hozzá.
A környék rendezett, iskola ,óvoda, boltok a közelben. H508089

Amennyiben felkeltettem érdeklődését, megtekintené az ingatlant, kérem keressen a megadott telefonszámon.

Teljes körű pénzügyi megoldások ügyintézése díjmentesen.
Minden élethelyzetre végzünk pénzügyi elemzést - ha vásárolni szeretnél, segítünk, hogy ezt a legjobb feltételek mellett tedd; ha eladni szeretnéd ingatlanod, nézzük meg, hátha érdemes meglévő hiteledet átváltani.

Keress bizalommal, szakértők vagyunk..

Registration Number

H508089

Property Details

Sales
for sale
Legal Status
used
Character
apartment
Construction Method
panel
Net Size
52 m²
Gross Size
52 m²
Size of Terrace / Balcony
4 m²
Heating
district heating
Ceiling Height
260 cm
Orientation
East
Staircase Type
enclosed staircase
Condition
To be renovated
Condition of Facade
Good
Condition of Staircase
Good
Year of Construction
1982
Number of Bathrooms
1
Position
street-facing
Water
Available
Electricity
Available
Sewer
Available
Storage
Shared

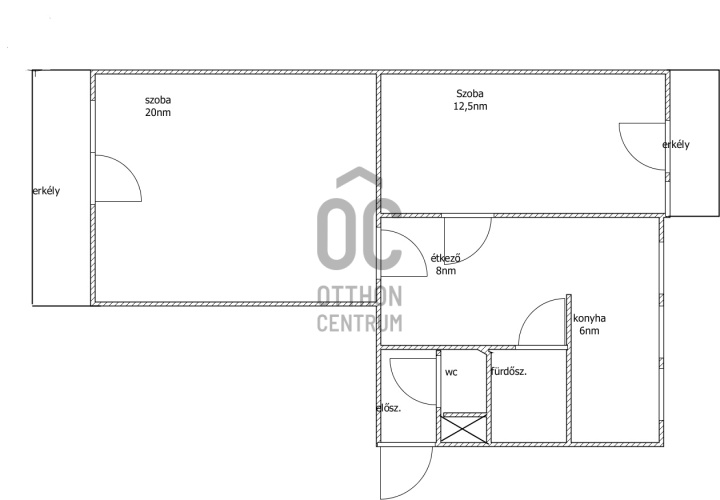
Rooms

room
20 m²
room
12.5 m²
kitchen
6 m²
dining room
8 m²
bathroom
3 m²
toilet
0.9 m²
corridor
2 m²
balcony
4 m²
Fábián Sándorné
Fábián Sándorné

Credit Expert

From Our Office Listings - Paks

for sale panel apartment

Index image
data_sheet.details.realestate.section.main.otthonstart_flag.label
12

for sale new construction apartment

Index image
data_sheet.details.realestate.section.main.otthonstart_flag.label
9

for sale family house

Index image
data_sheet.details.realestate.section.main.otthonstart_flag.label
13

for sale new construction apartment

Index image
10

for sale new construction apartment

Index image
data_sheet.details.realestate.section.main.otthonstart_flag.label
8

for sale new construction apartment

Index image
data_sheet.details.realestate.section.main.otthonstart_flag.label
8

for sale family house

Index image
data_sheet.details.realestate.section.main.otthonstart_flag.label
8