data_sheet.details.realestate.section.main.otthonstart_flag.label
For sale family house,
H507221
Nógrád
58,000,000 Ft
148,000 €
- 83m²
- 4 Rooms



















Közel és mégis távol a város zajától, Nógrádi családi ház ELADÓ!
Eladásra kínálok egy 1965-ben épült, vályog és tégla építésű családi ház Nógrád községben!
A ház jó állapotban van, két utcáról is megközelíthető, összközműves, fa födémes cserépfedésű tetővel, fa nyílászárókkal.
A gondozott kertben többféle gyümölcsfa és szőlő található, valamint egy működő gyűrűs kút.
A házhoz tartozik egy különálló nyári konyha vagy tároló, pince, fedett autóbeálló.
Az ingatlan villanyhálózata 16 A-es főkapcsolattal és éjszakai árammal van ellátva. A meleg vízről villanybojler gondoskodik. Fűtését gázkonvektor és két cserépkályha biztosítja, ez utóbbiak alternatív fűtési lehetőségként szolgálnak.
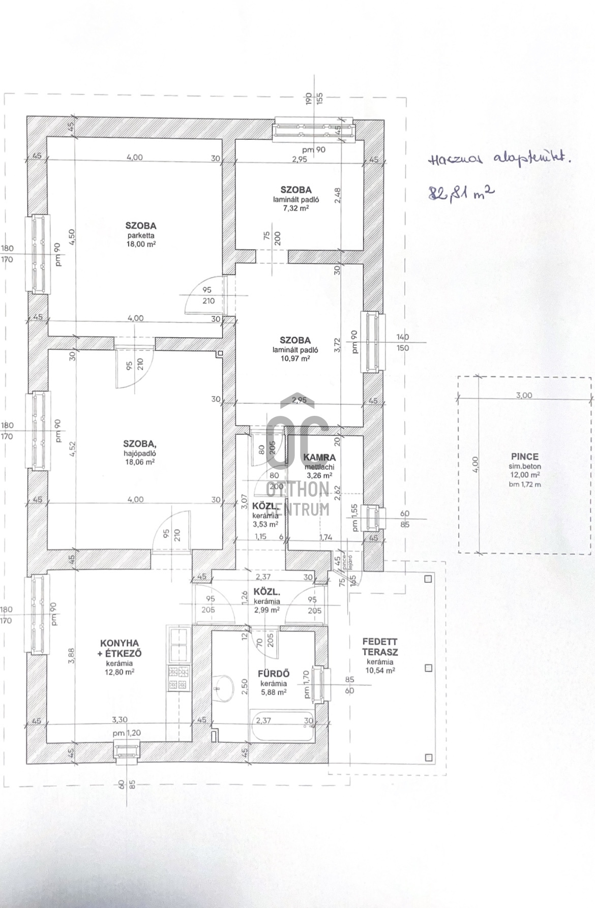
A ház belső elrendezése magában foglal 3,5 szobát, konyhát, fürdőszobát WC-vel, közlekedőt valamint előszobát. A terasz nagy, kertre néző kilátással rendelkezik.
A településen elérhető iskola, óvoda, üzletek, orvosi rendelő és gyógyszertár is. A falu legfőbb nevezetessége a Nógrádi vár, emellett számos kirándulási lehetőség kínálkozik a környéken, például a háztól pár perc sétára található vadaspark.
Közlekedés szempontjából az ingatlantól mindössze 200 méterre található a kisvasút és a buszmegálló, a Nógrádi vár pedig csak 10-15 perc sétára van.
Budapestre autóval körülbelül 60 perc alatt eljuthatunk.
Ez az ingatlan ideális lehetőség azok számára, akik vidéki környezetben keresnek jó állapotú, jól felszerelt családi házat, közel a természethez és a kulturális látnivalókhoz.
Amivel segítjük az Ön ingatlanvásárlását:
-ingyenes, bankfüggetlen hitelügyintézés (CSOK és Babaváró, Otthon Start Hitel ügyintézése is.)
-jogi háttér
-földhivatali ügyintézés
-energetikai tanúsítvány elkészítése
-biztosítás
További információkért, illetve megtekintéssel kapcsolatban keressen bizalommal a megadott telefonszámon!
A ház jó állapotban van, két utcáról is megközelíthető, összközműves, fa födémes cserépfedésű tetővel, fa nyílászárókkal.
A gondozott kertben többféle gyümölcsfa és szőlő található, valamint egy működő gyűrűs kút.
A házhoz tartozik egy különálló nyári konyha vagy tároló, pince, fedett autóbeálló.
Az ingatlan villanyhálózata 16 A-es főkapcsolattal és éjszakai árammal van ellátva. A meleg vízről villanybojler gondoskodik. Fűtését gázkonvektor és két cserépkályha biztosítja, ez utóbbiak alternatív fűtési lehetőségként szolgálnak.
A ház belső elrendezése magában foglal 3,5 szobát, konyhát, fürdőszobát WC-vel, közlekedőt valamint előszobát. A terasz nagy, kertre néző kilátással rendelkezik.
A településen elérhető iskola, óvoda, üzletek, orvosi rendelő és gyógyszertár is. A falu legfőbb nevezetessége a Nógrádi vár, emellett számos kirándulási lehetőség kínálkozik a környéken, például a háztól pár perc sétára található vadaspark.
Közlekedés szempontjából az ingatlantól mindössze 200 méterre található a kisvasút és a buszmegálló, a Nógrádi vár pedig csak 10-15 perc sétára van.
Budapestre autóval körülbelül 60 perc alatt eljuthatunk.
Ez az ingatlan ideális lehetőség azok számára, akik vidéki környezetben keresnek jó állapotú, jól felszerelt családi házat, közel a természethez és a kulturális látnivalókhoz.
Amivel segítjük az Ön ingatlanvásárlását:
-ingyenes, bankfüggetlen hitelügyintézés (CSOK és Babaváró, Otthon Start Hitel ügyintézése is.)
-jogi háttér
-földhivatali ügyintézés
-energetikai tanúsítvány elkészítése
-biztosítás
További információkért, illetve megtekintéssel kapcsolatban keressen bizalommal a megadott telefonszámon!
Registration Number
H507221
Property Details
Sales
for sale
Legal Status
used
Character
house
Construction Method
brick
Net Size
83 m²
Gross Size
93 m²
Plot Size
984 m²
Size of Terrace / Balcony
10.5 m²
Heating
gas convector
Ceiling Height
260 cm
Orientation
North-East
View
Green view
Condition
Average
Condition of Facade
Average
Basement
Independent
Neighborhood
quiet, good transport, green
Year of Construction
1965
Number of Bathrooms
1
Condominium Garden
yes
Water
Available
Gas
Available
Electricity
Available
Sewer
Available
Storage
Independent
Rooms
room
18 m²
room
18 m²
open-plan kitchen and dining room
12.8 m²
bathroom-toilet
5.88 m²
corridor
2.99 m²
corridor
3.53 m²
pantry
3.26 m²
study
10.97 m²
half room
7.32 m²
terrace
10.54 m²
cellar
12 m²

Bán Marianna
Credit Expert