data_sheet.details.realestate.section.main.otthonstart_flag.label
For sale family house,
H506386
Leányfalu, Kilátók útja
128,000,000 Ft
330,000 €
- 127m²
- 4 Rooms
































Eladó ez a bájos és modern családi ház Leányfalun!
Amennyiben a képek, az ingatlan adatai felkeltették érdeklődését, akkor várom szeretettel egy megtekintésre.
Még néhány fontos információ előtte:
- A fűtést gázcirkó biztosítja, amit 2016-ban helyeztek el. Hatékony és gazdaságos megoldást kínál a hidegebb hónapokban is.
- A ház téglaépítésű és 10 cm szigetelést kapott melynek köszönhetően az otthon melege és hangulata minden évszakban megmarad.
- A belső felújítás 2020-ban kezdődött és a mai napig szépítik és fejlesztik a házat jelenlegi tulajdonosai
Mit is jelent ez:
- villany, fűtés, víz, csatorna, azaz minden fel lett újítva
- az áram esetében: van éjszakai áram, 3*16 Amper, elektromos autó töltési lehetőség teljeskörűen kialakítva
- az összes burkolat új színt és hangulatot adott a háznak.
- kialakításra került az elektromos kapu
- az okosotthon rendszer ami kiterjed mindenre. Fűtés, redőnyök, kapu, kamera, fűnyíró, stb.
- a megújult gyönyörű kert öntözőrendszert kapott
Adottságok, lokáció:
- A ház közel 500 nm-es kertje remek helyszínt biztosít a kertészkedésre vagy akár egy kellemes nyári esti baráti összejövetel helyszinéül.
- Fontos, hogy a fák, a kerítés pedig megadja azt az intimitást amit elvárunk egy háztól.
- A garászba 1 autó a fedett beállóra 2 autó is kényelmesen elfér
- A ház melletti kb 40 nm-es melléképület akár külön is használható tárolásra vagy egy különálló lakrészre.
- És ha lesétálunk a patakpartjához a saját kertünkből akkor egy 4 nm-es borospincét is tudunk használni.
Rengeteget tudnék még mondani róla, de javaslom jöjjön és nézze meg velem együtt!
Még néhány fontos információ előtte:
- A fűtést gázcirkó biztosítja, amit 2016-ban helyeztek el. Hatékony és gazdaságos megoldást kínál a hidegebb hónapokban is.
- A ház téglaépítésű és 10 cm szigetelést kapott melynek köszönhetően az otthon melege és hangulata minden évszakban megmarad.
- A belső felújítás 2020-ban kezdődött és a mai napig szépítik és fejlesztik a házat jelenlegi tulajdonosai
Mit is jelent ez:
- villany, fűtés, víz, csatorna, azaz minden fel lett újítva
- az áram esetében: van éjszakai áram, 3*16 Amper, elektromos autó töltési lehetőség teljeskörűen kialakítva
- az összes burkolat új színt és hangulatot adott a háznak.
- kialakításra került az elektromos kapu
- az okosotthon rendszer ami kiterjed mindenre. Fűtés, redőnyök, kapu, kamera, fűnyíró, stb.
- a megújult gyönyörű kert öntözőrendszert kapott
Adottságok, lokáció:
- A ház közel 500 nm-es kertje remek helyszínt biztosít a kertészkedésre vagy akár egy kellemes nyári esti baráti összejövetel helyszinéül.
- Fontos, hogy a fák, a kerítés pedig megadja azt az intimitást amit elvárunk egy háztól.
- A garászba 1 autó a fedett beállóra 2 autó is kényelmesen elfér
- A ház melletti kb 40 nm-es melléképület akár külön is használható tárolásra vagy egy különálló lakrészre.
- És ha lesétálunk a patakpartjához a saját kertünkből akkor egy 4 nm-es borospincét is tudunk használni.
Rengeteget tudnék még mondani róla, de javaslom jöjjön és nézze meg velem együtt!
Registration Number
H506386
Property Details
Sales
for sale
Legal Status
used
Character
house
Construction Method
brick
Net Size
127 m²
Gross Size
127 m²
Plot Size
568 m²
Size of Terrace / Balcony
7.6 m²
Heating
Gas circulator
Ceiling Height
240 cm
Number of Levels Within the Property
3
Orientation
South-East
Condition
Excellent
Condition of Facade
Excellent
Year of Construction
1986
Number of Bathrooms
1
Garage
Included in the price
Garage Spaces
1
Number of Covered Parking Spots
2
Water
Available
Gas
Available
Electricity
Available
Sewer
Available
Storage
Independent
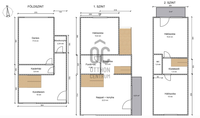
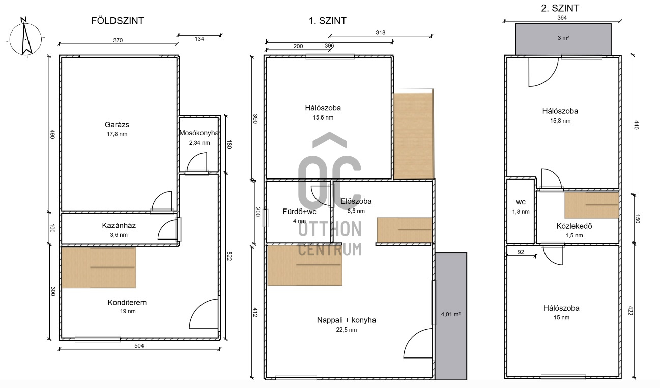
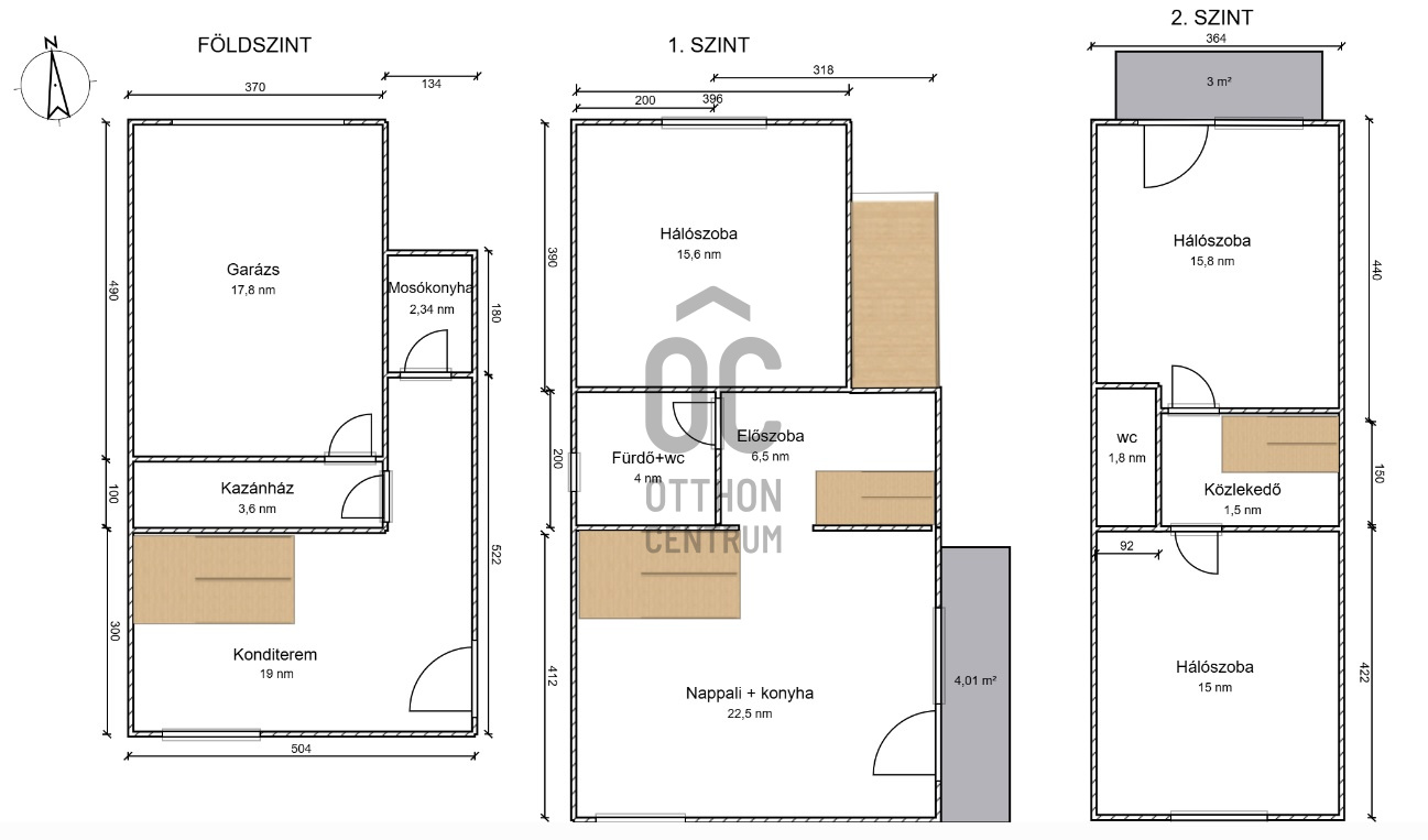
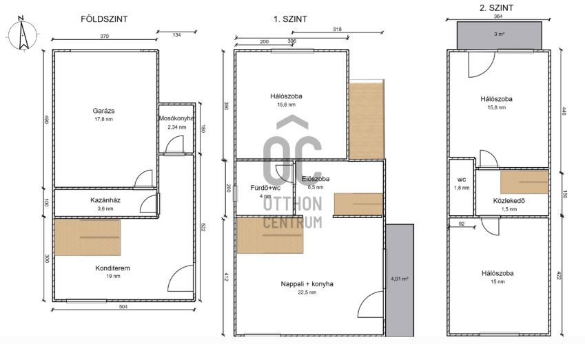
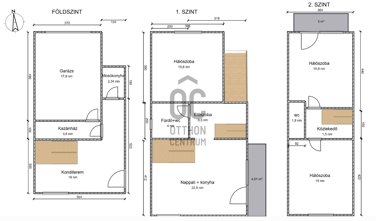
Rooms
open-plan kitchen and living room
22.5 m²
corridor
6.5 m²
room
15.6 m²
bathroom-toilet
4 m²
terrace
4 m²
bedroom
15.8 m²
bedroom
15 m²
corridor
1.5 m²
toilet
1.8 m²
balcony
3.6 m²
garage
17.8 m²
boiler room
3.6 m²
laundry room
2.34 m²
other room
19 m²
wine cellar
3 m²
storage
40 m²
wine cellar
4 m²