380,000,000 Ft
975,000 €
- 478m²
- 13 Rooms

























The Repository of Opportunities.
I am offering a property with immense potential in a popular area of Alsórákos. It could be a perfect choice for investors or families looking to cohabit. But if you simply want to generate extra income from your own residence, that is also possible, as the property has enormous potential. Here, your imagination can soar. The building is very bright, filled with numerous windows. It is sunlit from multiple sides and adorned with green plants. The property has 13+1 rooms and is situated on two levels. There is a romantic barbecue area on the ground floor and a cozy balcony on the upper floor. If someone feels like playing the piano or billiards in front of a larger group, they can do so here, as the space allows for it. From a transportation perspective, it is also ideal, as several vehicles stop in the area. Tram: 3, 62, 62A, 69 Bus: 32, 5, 973, 973A Trolleybus: 82 and 82A Everything you need is nearby: grocery store, pharmacy, medical office, bakery, optical shop, market, and pastry shop.
Registration Number
H503387
Property Details
Sales
for sale
Legal Status
used
Character
house
Construction Method
brick
Net Size
478 m²
Gross Size
478 m²
Plot Size
546 m²
Size of Terrace / Balcony
35 m²
Heating
Gas circulator
Ceiling Height
300 cm
Number of Levels Within the Property
1
Orientation
North-East
View
Green view
Condition
Average
Condition of Facade
Good
Neighborhood
quiet, green
Year of Construction
1938
Number of Bathrooms
4
Water
Available
Gas
Available
Electricity
Available
Sewer
Available
Multi-Generational
yes
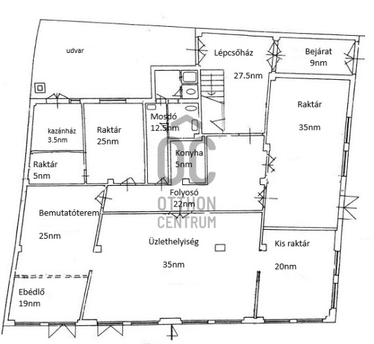
Rooms
showroom
25 m²
shop
35 m²
dining room
19 m²
warehouse
5 m²
warehouse
25 m²
boiler room
3.5 m²
entryway
22 m²
kitchen
5 m²
staircase
27.5 m²
warehouse
35 m²
warehouse
20 m²
staircase
14 m²
kitchen
4.5 m²
bathroom
2 m²
room
14.5 m²
room
10.5 m²
kitchen
14.5 m²
room
23 m²
room
20 m²
study
8 m²
other room
15 m²
living room
69.8 m²
room
23.5 m²
bathroom
12.5 m²
other
7.5 m²
balcony
10 m²
washroom
12.5 m²

Hazay Melinda
Credit Expert