269,000,000 Ft
691,000 €
- 239m²
- 4 Rooms


































PRÉMIUM OKOS OTTHON HÉVÍZ KEDVELT UTCÁJÁBAN – LUXUS ÉS KÉNYELEM EGY HELYEN!
CSAK AZ OTTHON CENTRUM KIEMELT KÍNÁLATÁBAN!
Modern technológia, exkluzív kivitelezés, kompromisszumok nélkül!
Eladásra kínálom ezt az exkluzív okos otthont , amely magas minőségben épült ,építészmérnöki precizitással , kiemelkedő műszaki tartalommal , és a legapróbb részletekig átgondolt . Az ingatlan újszerű állapotban, frissen festve, igény szerint átalakítva kerül átadásra új tulajdonosának.
Ideális választás minden korosztály számára , legyen szó állandó otthonról vagy akár nyaralóként használva is jól funkciónál.
Ár euroban : 672.500€
AZ INGATLAN FŐBB JELLEMZŐI:
✅ Építés éve: 2016
✅ Kiváló lokáció Hévíz egyik legkedveltebb utcájában
✅ Monolit vasbeton födém
✅ 180°-os panoráma – lélegzetelállító kilátás minden nap
✅ Teljes okos otthon rendszer – vezérelhető fűtés, világítás, redőnyök, garázskapu és még sok más
✅ Hővisszanyerő szellőztetőrendszer – mindig friss levegő, energiatakarékosan
✅ 18 kW-os napelemes rendszer (szaldós elszámolással) – garantáltan 0 Ft rezsi!
✅ BWT vízlágyító és Electrolux központi porszívó – prémium komfort
✅ Zajmentes, külső motoros páraleszívó – csendes és hatékony konyhai megoldás
✅ 22 kW-os elektromos autótöltő – gyors és kényelmes töltés otthon
✅ 10 m³-es esővízgyűjtő rendszer – fenntartható vízgazdálkodás
✅ 10m² sósvizes, fűthető medence – egész éves wellness élmény
✅ 24 m² motorosan mozgatható terasztető – tökéletes árnyékolás minden időben
✅ INOX kültéri konyha (Green Egg, hűtő, mosogató) – profi grillezés a saját kertjében
✅ ACO beépített lábtörlő esővíz elvezetéssel – prémium részletek mindenhol
✅ Hűtés : 4 db klíma
✅ 67 m² -es garázs
✅ 190 m² lakófelület + 130,44 m² terasz +31,31 m² erkély + 5,35 m² erkély
A teraszon egy új medence építése zajlik, amelynek befejezése az ár részét képezi!
EXTRA LEHETŐSÉG:
A ház utcafronti részén egy 110 m²-es, teljesen különálló lakás található, amely saját helyrajzi számmal, külön bejárattal, saját mérőórákkal és napelem rendszerrel rendelkezik. Külön megvásárolható, a főépülettel összevonható vagy akár kiadásra is tökéletes befektetés!
Ha egy igazán különleges, exkluzív otthonra vágyik Hévíz egyik legjobb részén, amely ötvözi a modern technológiát, az energiatakarékosságot és a kényelmet, ne hagyja ki ezt a lehetőséget, forduljon hozzám bizalommal !
Modern technológia, exkluzív kivitelezés, kompromisszumok nélkül!
Eladásra kínálom ezt az exkluzív okos otthont , amely magas minőségben épült ,építészmérnöki precizitással , kiemelkedő műszaki tartalommal , és a legapróbb részletekig átgondolt . Az ingatlan újszerű állapotban, frissen festve, igény szerint átalakítva kerül átadásra új tulajdonosának.
Ideális választás minden korosztály számára , legyen szó állandó otthonról vagy akár nyaralóként használva is jól funkciónál.
Ár euroban : 672.500€
AZ INGATLAN FŐBB JELLEMZŐI:
✅ Építés éve: 2016
✅ Kiváló lokáció Hévíz egyik legkedveltebb utcájában
✅ Monolit vasbeton födém
✅ 180°-os panoráma – lélegzetelállító kilátás minden nap
✅ Teljes okos otthon rendszer – vezérelhető fűtés, világítás, redőnyök, garázskapu és még sok más
✅ Hővisszanyerő szellőztetőrendszer – mindig friss levegő, energiatakarékosan
✅ 18 kW-os napelemes rendszer (szaldós elszámolással) – garantáltan 0 Ft rezsi!
✅ BWT vízlágyító és Electrolux központi porszívó – prémium komfort
✅ Zajmentes, külső motoros páraleszívó – csendes és hatékony konyhai megoldás
✅ 22 kW-os elektromos autótöltő – gyors és kényelmes töltés otthon
✅ 10 m³-es esővízgyűjtő rendszer – fenntartható vízgazdálkodás
✅ 10m² sósvizes, fűthető medence – egész éves wellness élmény
✅ 24 m² motorosan mozgatható terasztető – tökéletes árnyékolás minden időben
✅ INOX kültéri konyha (Green Egg, hűtő, mosogató) – profi grillezés a saját kertjében
✅ ACO beépített lábtörlő esővíz elvezetéssel – prémium részletek mindenhol
✅ Hűtés : 4 db klíma
✅ 67 m² -es garázs
✅ 190 m² lakófelület + 130,44 m² terasz +31,31 m² erkély + 5,35 m² erkély
A teraszon egy új medence építése zajlik, amelynek befejezése az ár részét képezi!
EXTRA LEHETŐSÉG:
A ház utcafronti részén egy 110 m²-es, teljesen különálló lakás található, amely saját helyrajzi számmal, külön bejárattal, saját mérőórákkal és napelem rendszerrel rendelkezik. Külön megvásárolható, a főépülettel összevonható vagy akár kiadásra is tökéletes befektetés!
Ha egy igazán különleges, exkluzív otthonra vágyik Hévíz egyik legjobb részén, amely ötvözi a modern technológiát, az energiatakarékosságot és a kényelmet, ne hagyja ki ezt a lehetőséget, forduljon hozzám bizalommal !
Registration Number
H499280
Property Details
Sales
for sale
Legal Status
used
Character
house
Construction Method
brick
Net Size
239 m²
Gross Size
250 m²
Plot Size
400 m²
Size of Terrace / Balcony
161.7 m²
Heating
other
Ceiling Height
270 cm
Number of Levels Within the Property
2
Orientation
South-West
Condition
Excellent
Condition of Facade
Excellent
Year of Construction
2016
Number of Bathrooms
2
Garage
Included in the price
Garage Spaces
3
Water
Available
Gas
On the street
Electricity
Available
Sewer
Available
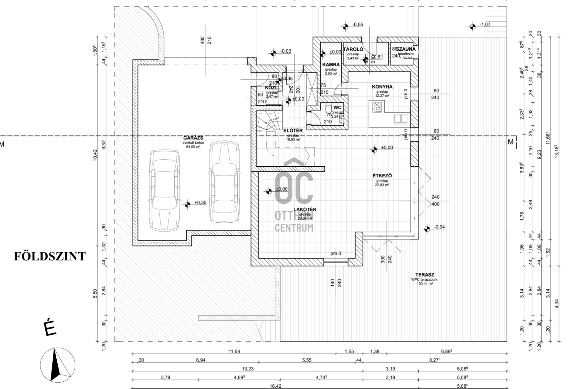
Rooms
garage
64.99 m²
corridor
2.47 m²
entryway
16.58 m²
toilet-washbasin
2.24 m²
dining room
22.83 m²
kitchen
12.37 m²
pantry
3.93 m²
living room
28.06 m²
terrace
130.44 m²
sauna
1.89 m²
storage
3.43 m²
corridor
11.96 m²
room
16.74 m²
wardrobe
4.34 m²
bathroom
8.96 m²
room
14.85 m²
bathroom-toilet
5.87 m²
room
12.75 m²
laundry room
3.11 m²
toilet-washbasin
1.38 m²
balcony
5.35 m²
balcony
31.31 m²